Prodej domu 4+1 • 155 m² bez realitky, Dolní Sasko
, Dolní SaskoMHD 2 minuty pěšky • Parkování • GarážProdáváme s těžkým srdcem náš dům z pracovních důvodů mého muže.
Všechno je na jedné úrovni, kromě hostinského pokoje, který se nachází v podkroví.
Náš udržovaný a okouzlující rodinný dům se nachází na prostorném pozemku o rozloze cca 5 200 m² v klidné rezidenční oblasti Jade.
Podle informací ze stavebního úřadu je na zadní části pozemku možná další výstavba. To zde představuje vzácnou příležitost pro rodiny, investory nebo developery získat atraktivní bytovou nemovitost s možností rozšíření.
Samotný dům oslní svou solidní konstrukcí a prostornou zahradou, která nabízí mnoho možností úprav.
Je ideální pro soběstačné obyvatele nebo pro chov zvířat.
Zvláštnosti:
• Velký pozemek o celkové rozloze cca 5 200 m²
• Druhý stavební pozemek o cca 1 000 m², který je podle stavebního úřadu ze zásadního hlediska zástavba schopen
– Příjezdová cesta k němu je k dispozici, je však nutné ji ještě zpevnit (např. dlažbou), pokud to bude potřeba.
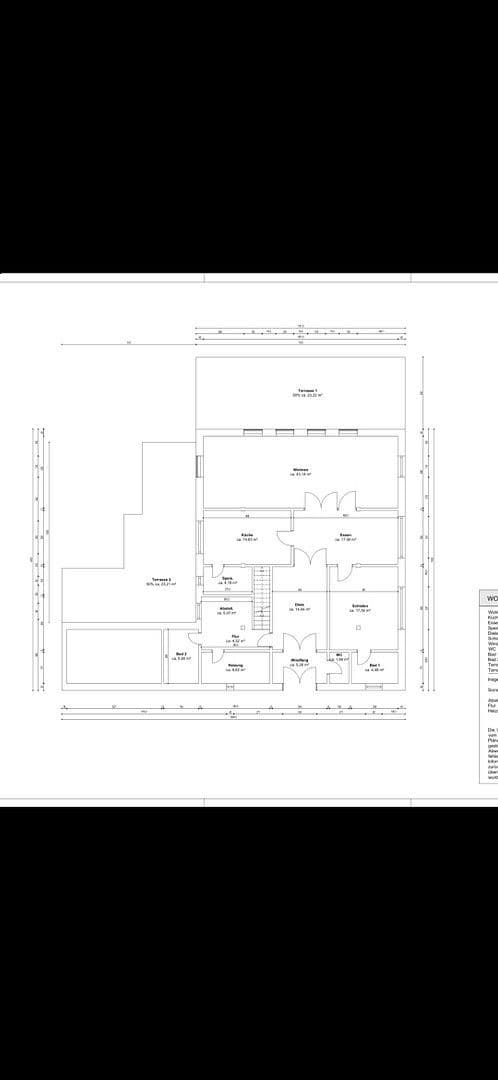
Rozdělení:
Přízemí 130 m²:
– Kuchyně
– 2 koupelny, nové zrcadlové skříňky
– Technická místnost (HWR)
– Skladová místnost
– Hostinské WC
– Ložnice
– 2 velké chodby
– Velký otevřený obývací prostor s obývacím pokojem a jídelnou (samotný obývací pokoj má 40 m², lze jej však snadno dále rozdělit)
V přízemí je částečně instalováno podlahové topení.
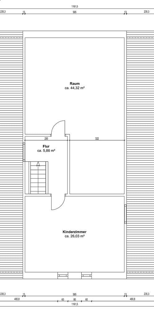
Podkroví 75 m²:
– Hostinský pokoj / dětský pokoj (25 m²)
– Velká půda, která je již izolovaná (2024)
Dalších cca 50 m² půdního prostoru je dále rozšiřitelných.
Na boku domu se nachází velká přístavba dílny, ideální pro kola apod.
Venkovní prostor:
• 2 terasy – jedna s zimní zahradou (2024) a jedna krytá
• Zimní zahrada (2024)
• Grilovací místo
• Malá chatka s podzemní čerpadlem, ideální pro zavlažování zahrady apod.
• Kovový technický objekt (2023)
• Velký skleník (2023)
• Garáž
• Dvojitý přístřešek pro auta (2025)
NOVINKY:
– Terasa
– Rybníková plocha
– Grilovací místo
– Zimní zahrada
– Dvojitý přístřešek pro auta
– Půda izolovaná
– 2× nová střešní okna
– Nová velká vestavěná kuchyně značky Nolte
– Nová koupelna s vanou vybavenou whirlpoolem
– V roce 2023 byly kompletně zrekonstruovány podlahy i stěny
– Byl položen optický kabel
– 3 nová skleněná posuvná dveře
Plynové topení bylo nedávno servisováno. Podle topenářského technika je v velmi dobrém stavu a vydrží ještě mnoho let.
Na velkém pozemku se nachází malý lesík a občas tam můžete potkat srnky nebo zajíce.
Rádi zašleme další fotografie, případně je možné domluvit si prohlídku.
Náš dům se nachází v klidné části Jaderbergu. V obci jsou pekárna, Edeka, Netto, lékárna, kadeřnictví i lékaři.
Dům byl v roce 2023 kompletně zrekonstruován uvnitř.
Terasa
Rybníková plocha
Grilovací místo
Zimní zahrada
Dvojitý přístřešek pro auta
Půda izolovaná
2× nová střešní okna
Nová velká vestavěná kuchyně značky Nolte
Nová koupelna s vanou vybavenou whirlpoolem
V roce 2023 byly kompletně zrekonstruovány podlahy i stěny
Byl položen optický kabel
3 nová skleněná posuvná dveře
V okolí nemovitosti najdete
Stále hledáte to pravé?
Nastavte si hlídacího psa. Nabídky vybrané na míru dostanete souhrnně 1× denně e-mailem. S Premium profilem máte k ruce hlídačů rovnou 5 a když se něco objeví, informují vás obratem.

















