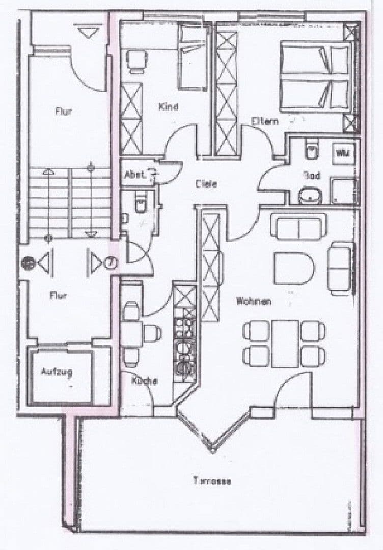
Prodej bytu 3+1 • 72 m² bez realitky, Porýní-Falc
, Porýní-FalcMHD 1 minuta pěšky • Výtah • GarážNabízí se jedinečný vlastnický byt s vysoce kvalitním vybavením, velkou terasou a neomezeným výhledem na Rýn.
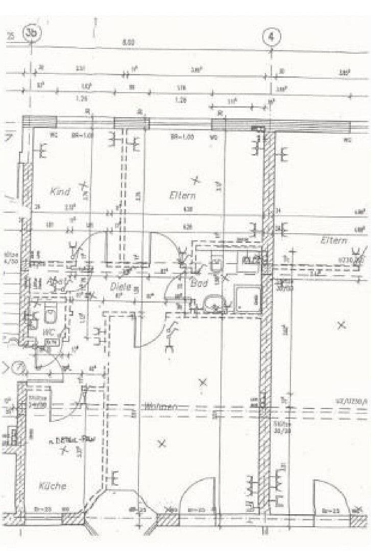
Nabízená nemovitost není jen obyčejný byt – je to skutečný domov pro ty, kdo si cení luxusního bydlení! Tento třípokojový byt z roku 1994 o rozloze 82 m² byl v roce 2015 kompletně zrekonstruován. Byla instalována nová, vysoce kvalitní vestavěná kuchyň značky Nolte, kompletní elektroinstalace byla obnovena/rozšířena, takže nyní naleznete zásuvky a kabelové přípojky všude. Na podlahu byl položen nový parket z masivního dřeva, který svou jemnou strukturou a teplem pod nohama vytváří útulnou atmosféru.
Všechny dveře v bytě byly vyměněny za nové bílé, takže interiér působí nadčasově moderně. Všechna okna jsou opatřena elektricky ovládanými roletami, z nichž některé jsou časově řízené. Také hlavní koupelna byla kompletně zrekonstruována a nyní se prezentuje v moderních odstínech antracitu a bílé – s téměř bezprahovou dešťovou sprchou, ohřívačem ručníků a armaturami od IdealStandard resp. Hansgrohe.
Na začátku roku 2025 byla instalována nová okna s trojitým zasklením, která jsou částečně opatřena sluneční ochranou a částečně bezpečnostními prvky proti vloupání, čímž splňují ty nejvyšší standardy, umožňují bydlení přizpůsobené budoucnosti a výrazně snižují náklady na energii. Také vchodová vrata a zámek byly začátkem tohoto roku vyměněny za verze s antivandalní a zvukotěsnou ochranou.
Navíc existuje možnost vybudovat na téměř 24 m² velké terase pevnou (částečně) zastřešení, abyste mohli venkovní prostory využívat jak při slunečném počasí, tak i během deště, a abyste mohli bez omezení využívat nádhernou jižní orientaci s výhledem na Rýn. Pro snížení nákladů na elektřinu je zde také možnost, po dohodě, převzít komunitně schválený systém solární energie na balkon. Celkově tato rozlehlá terasa s výhledem a těmito jedinečnými možnostmi představuje opravdu výjimečné privilegium.
Ve vašem novém domově naleznete kromě obývacího pokoje a kuchyně dvě ložnice nebo ložnici a pracovnu, což dělá byt ideálním pro páry či malé rodiny, ale také perfektně vhodným pro jednotlivce, kteří potřebují více prostoru. Dále zde naleznete malou komůrku a prostornou sklepní místnost. Aby vám nic nechybělo, byt kromě hlavní koupelny zahrnuje také malé hostinské WC.
Kromě samotného bytu máte možnost za příplatek převzít místo v podzemní garáži, díky čemuž se v zimě můžete vždy suchou nohou dostat přímo z bytu do příjemně vytopeného vozidla – a tak se vyhnete škrábání, chladu či jakémukoli riziku.
Máte-li o tuto nabídku zájem, budu se těšit na váš dotaz. Nemovitost je prodávána soukromě, bez provize. O poptávkách makléřů prosím žádám, abyste se zdrželi.
Nabízená nemovitost se nachází ve velmi oblíbené nadmořské výšce ve Vallandaru. Zde naleznete absolutní klid a fantastický výhled na Rýn a do krajiny, který vás okouzlí. Obchody běžné potřeby i řada volnočasových aktivit (bazén, tenis, sportoviště, kanoistika, cyklistika či pěší túry) jsou vzdáleny jen několik minut chůze.
Město Vallandar, ležící na pravém břehu Rýna v okrese Mayen-Koblenz, se vyznačuje vynikající infrastrukturou s přímými autobusovými spoji do Koblenzu, Bendorfu, Neuwiedu a disponuje také železniční stanicí. V řádu několika minut autem máte přístup k dálnicím A48, A3 a A61 a i k silnicím B42, B9 a dalším. Centrum Koblenzu dojedete za méně než 10 minut a Neuwied je vzdálené nepřes 15 minut!
V místě naleznete veškeré zázemí pro každodenní život, školy, mateřské školy a také zdravotnická zařízení.
Atraktivní obytné prostředí, blízkost ke Koblenzu a neuvěřitelně krásný výhled na Rýn dělají z tohoto místa opravdu vyhledávané místo k životu!
Není tedy divu, že je Vallandar jako lokalita mimořádně žádaný.
Vybavení bytu je nadčasově moderní a téměř všechny klíčové prvky byly nedávno obnovy:
• 2006 – obnova centrálního topení
• 2015 – kompletní rekonstrukce bytu s novou koupelnou, novou kuchyní, novou elektro- a kabelovou instalací (resp. rozšířením), novým parketovým podlahovým krytem z masivního dřeva, elektrickými roletami a novými dveřmi
• 2023 – nový nátěr fasády
• 2025 – nová plastová okna s trojitým zasklením
V okolí nemovitosti najdete
Stále hledáte to pravé?
Nastavte si hlídacího psa. Nabídky vybrané na míru dostanete souhrnně 1× denně e-mailem. S Premium profilem máte k ruce hlídačů rovnou 5 a když se něco objeví, informují vás obratem.











