Pronájem bytu 4+1 • 150 m² bez realitky, Bavorsko
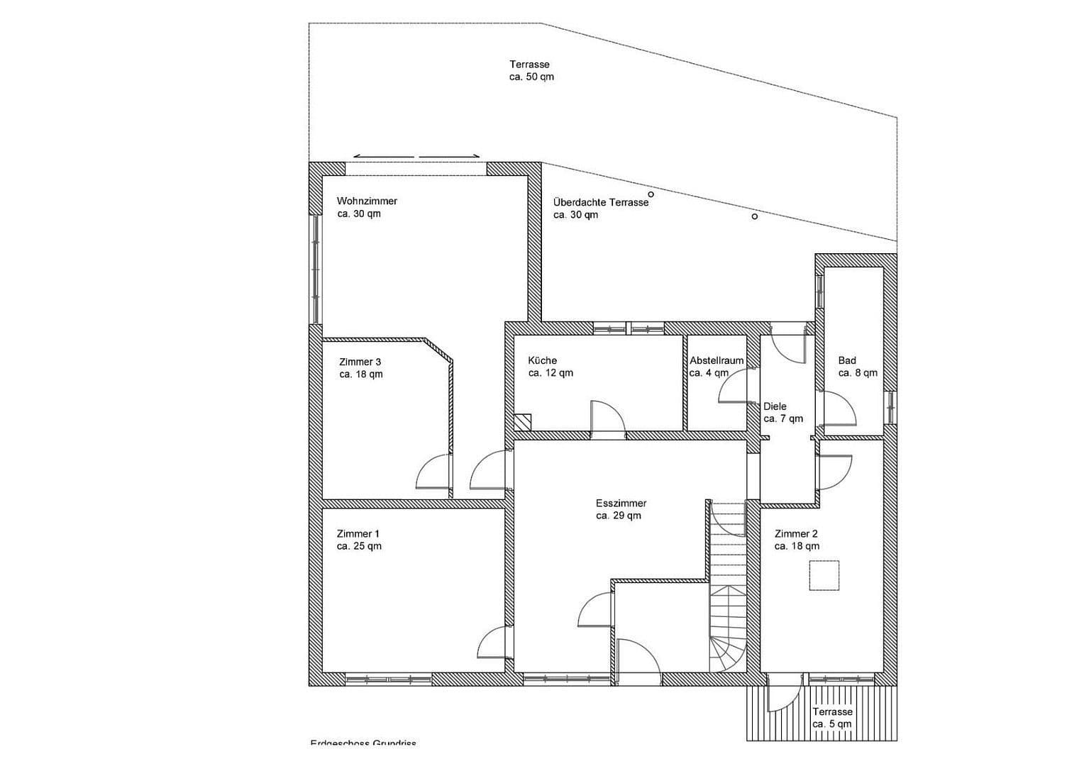
, BavorskoMHD 4 minuty pěškyExkluzivní prostorný 4-pokojový byt v přízemí architektonicky navrženého domu s přibližně 45 m² sklepního prostoru, přístupného z bytu, a také s 80 m² velkou terasou na jihozápadní straně – z toho 30 m² je kryto – s výhledem do přírody, vynikajícím dispozicím a s 270 cm výškou místností. Rekonstruováno v roce 2020. Veškeré denní potřeby, jako jsou supermarkety, stavebniny, historické náměstí, lékařské centrum, nákupní centra, kavárny, pivovarská zahrada, restaurace, školy apod., jsou dostupné za cca 5 až 10 minut chůze nebo na kole. Přímo před domem je k dispozici dostatek veřejných parkovacích míst. Na zvláštní přání lze rovněž pronajmout velkou vyhřívanou garáž s dalším parkovacím místem před garážovými vraty za 100 € měsíčně. Ideálně vhodné také pro bydlení a práci pod jednou střechou.
V okolí nemovitosti najdete
Stále hledáte to pravé?
Nastavte si hlídacího psa. Nabídky vybrané na míru dostanete souhrnně 1× denně e-mailem. S Premium profilem máte k ruce hlídačů rovnou 5 a když se něco objeví, informují vás obratem.










