Prodej bytu 1+1 • 21 m² bez realitkyBahnhofstrasse 79 Nürnberg Marienvorstadt Bayern 90402
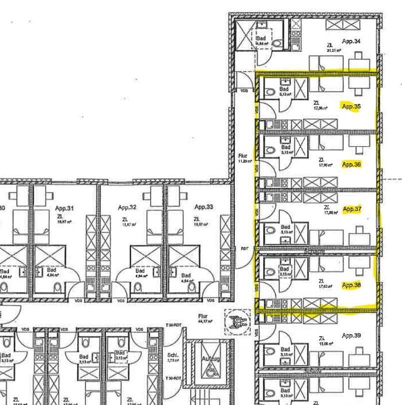
Bahnhofstrasse 79 Nürnberg Marienvorstadt Bayern 90402MHD 1 minuta pěšky • VýtahČtyři velmi centrálně situované a slunné 1-pokojové apartmány (každý o rozloze 21 m²) v 1. patře centrálního studentského domu jsou k prodeji.
Budova apartmánů se nachází přímo vedle Wöhrder Wiese a Wöhrder See, přičemž centrum Norimberku je dosažitelné pěšky za 10 minut. Bezprostředně vedle se nachází Technická vysoká škola Georg-Simon-Ohm. V blízkém okolí najdete menzu, ústřední knihovnu, studentský servis a různé další fakulty Univerzity Friedrich-Alexander.
Před domem jezdí tramvajové linky 5 a 11 a také autobusy č. 36 a 94. Do stanice S-Bahn je to cca 200 m, hlavní nádraží je vzdáleno asi 10 minut chůze.
V domě je k dispozici výtah, prádelna s mincovými pračkami a sušičkami, samostatná sušárna a dva sklepní prostory pro kola.
Apartmány jsou vybaveny malou kuchyňskou koutem včetně lednice a dvouzónové varné desky. Koupelny jsou obkladové v přízemí, každá se sprchovým koutem, umyvadlem, toaletou a ručníčkovým ohřívačem. Ke každému apartmánu náleží malý sklepní kóje.
Jako energeticky účinný dům třídy 55 a díky slunnému jižnímu orientování lze náklady na vytápění udržet na velmi nízké úrovni.
V domě se navíc nachází pobočka pekárny.
Bytový komplex se nachází velmi centrálně, vedle či v těsné blízkosti Technické vysoké školy Georg-Simon-Ohm. Norimberské centrum a hlavní nádraží jsou dosažitelné pěšky během několika minut. Stanice S-Bahn „Gleißbühl“ a tramvajové spoje směřující do Tiergartenu a centra jsou v bezprostřední blízkosti.
Rekreační oblast „Wöhrder Wiese“ s pivní zahrádkou a Wöhrder See s písčitou pláží zvou k relaxaci, setkávání s přáteli a sportovním aktivitám. Podél řeky Pegnitz si můžete vychutnat pěkné procházky nebo cyklistické výlety směrem do centra i mimo něj.
Na kole nebo hromadnou dopravou se rychle dostanete na norimberskou veletržní plochu, norimberský stadion či do areny Nürnberg, kde se konají sportovní a hudební akce. V bezprostřední blízkosti, u Dutzendteich a Luitpoldhain, můžete kráčet po stopách novější norimberské historie a zúčastnit se dvou lidových slavností i četných kulturních akcí.
Z norimberského hradu máte nádherný výhled na historické centrum Norimberku a Reichswald.
V každém apartmánu jsou vestavěné kuchyně a obytné prostory jsou vybaveny odolnou vinylovou podlahou v imitaci dřeva.
Každý apartmán disponuje řízeným přívodem a odvodněním s rekuperací tepla jako samostatným zařízením.
Měřiče spotřeby vody a topení jsou digitálně sledovány pomocí rádiového systému.
Všechny apartmány jsou v současné době pronajaty. Využití je omezeno na studenty a učně.
V okolí nemovitosti najdete
Stále hledáte to pravé?
Nastavte si hlídacího psa. Nabídky vybrané na míru dostanete souhrnně 1× denně e-mailem. S Premium profilem máte k ruce hlídačů rovnou 5 a když se něco objeví, informují vás obratem.







