Prodej bytu 3+kk • 110 m² bez realitkySchwartauer Allee 121a Lübeck Holstentor Nord Schleswig-Holstein 23554
Schwartauer Allee 121a Lübeck Holstentor Nord Schleswig-Holstein 23554MHD do minuty pěškyVINTAGE-VIBES & GARTENFREUDEN – VELKÝ STARÝ BYT PRO SVOBODNÉ DUŠE:
Se svými 4 světlými, samostatnými pokoji, koupelnou s oknem, novou vestavěnou kuchyní, starou, prostornou společnou zahradou a vlastním sklepem je nabízená nemovitost opravdovým všestranným řešením!
Tento světlem naplněný byt o rozloze 110 m² se hodí jak jako ateliér či umělecké spolubydlení, tak i pro rodiny nebo studenty. Jako investice pak nemovitost nabízí bezpečný výnos.
Podkrovní byt se nachází v udržovaném starém domě v charakteristickém hanza stylu s červenými cihlemi z roku 1900 – s celkem 11 jednotkami.
Prostorná a chráněná společná zahrada s nádherným stromovým porostem a starou cihlovou zdí jako bezpečným ohraničením nabízí zejména malým dětem možnost volně a bezpečně se protálet.
Byt byl čerstvě zrenovován a nyní disponuje zbrusu novou vestavěnou kuchyní. Disponuje také řadou romantických detailů staré budovy, jako jsou okna v podkroví, dřevěné podlahy a dřevěné dveře.
Kromě toho byla před několika měsíci instalována nová plynová kondenzační kotel (rok výroby 2025) značky Vaillant. (Teplá voda je řešena samostatně.)
Měsíční poplatek za bydlení činí 300,00 €
Kupní cena: 349.000 € (bez provize)
V bezprostřední blízkosti se nacházejí veškeré možnosti pro každodenní nákupy; školky a školy jsou pak dosažitelné pěšky či rychle veřejnou dopravou.
Lübeck je staré, dobře zachovalé hanza město, nacházející se pouhých přibližně 65 kilometrů od Hamburku. Jeho kouzelná stará čtvrť, ležící na ostrově u řeky Trave, patří k památkám UNESCO. Kromě toho Lübeck nabízí bohaté a pestré kulturní vyžití a proslavil se také svým Buddenbrookhovým domem v ulici Mengestraße 4 a tradiční Niederegger-Marzipánovou manufakturou, jež je světově známá.
• čerstvě zrenovováno
• nová vestavěná kuchyně
• nová plynová kondenzační kotel značky Vaillant
• dřevěné podlahy a dlaždice
• bílá koupelna s oknem
• romantická společná zahrada
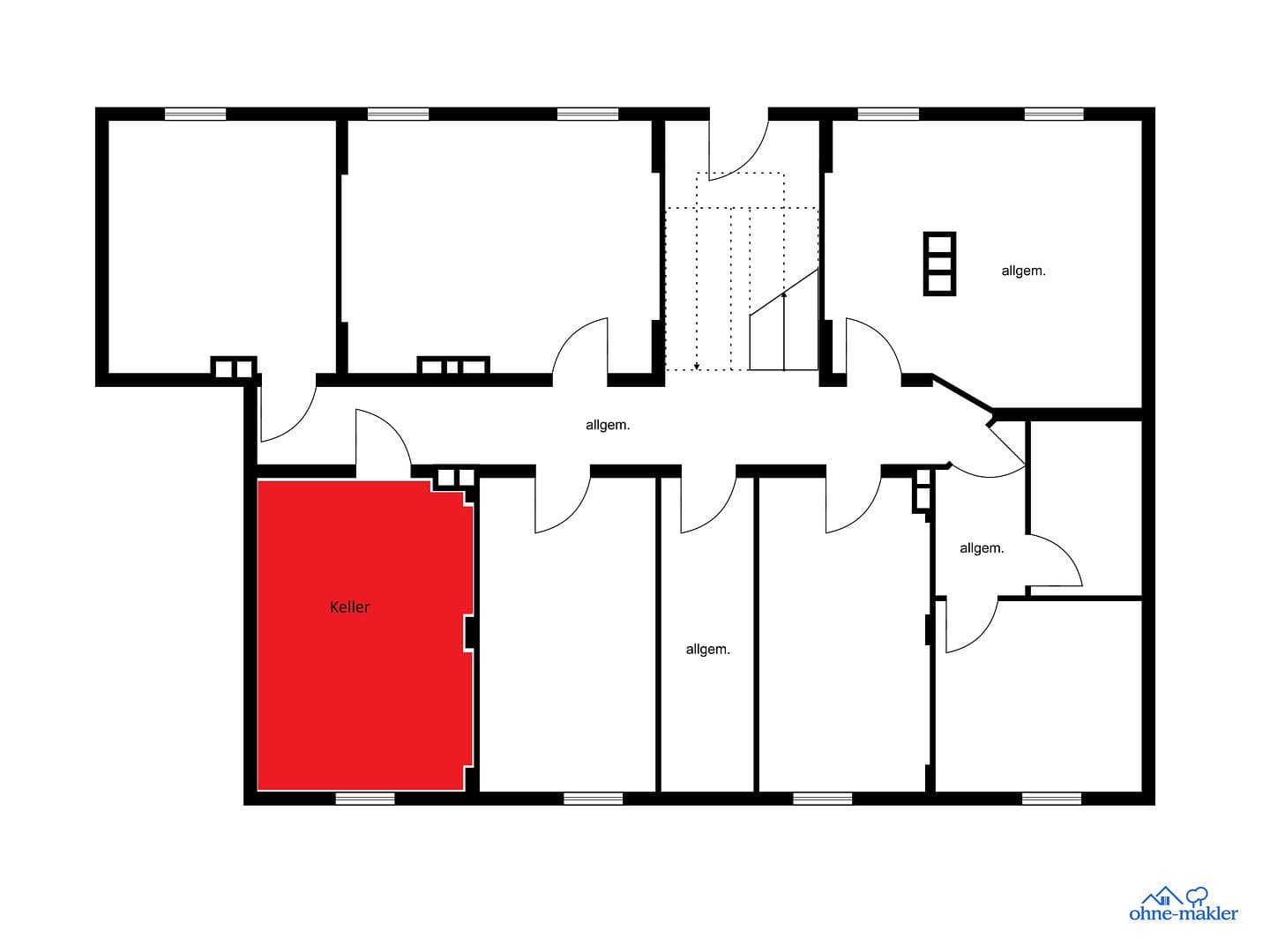
• vlastní sklep
HAFERKAMP GMBH
Strandallee 11
23683 Scharbeutz (Haffkrug)
Telefon: 04563 / 423998-0
Fax: 04563 / 423998-9
E-mail: info(at)haferkamp-grundbesitz.de
Ředitel: Jens-Hendrik Haferkamp
Okresní soud Lübeck HRB 23030 HL
DIČ: DE304113136
Haferkamp Grundbesitz je obchodní značka společnosti Haferkamp GmbH.
Povolená činnost dle § 34c odst. 1 živnostenského zákona
Dozorčí úřad:
Obec Scharbeutz (úřad pro podnikání) · Am Bürgerhaus 2, 23683 Scharbeutz
Haferkamp Grundbesitz je obchodní značka společnosti Haferkamp GmbH
Osobně odpovědná osoba podle § 6 MDStV:
Jens-Hendrik Haferkamp
Dotazy od makléřů nejsou vítány! Podle § 7 UWG jsou nevyžádané kontaktování ze strany makléřů bez výslovného souhlasu adresáta zakázány!
V okolí nemovitosti najdete
Stále hledáte to pravé?
Nastavte si hlídacího psa. Nabídky vybrané na míru dostanete souhrnně 1× denně e-mailem. S Premium profilem máte k ruce hlídačů rovnou 5 a když se něco objeví, informují vás obratem.








