Prodej bytu 3+1 • 65 m² bez realitkyMarka Marků, Lanškroun - Lanškroun, Pardubický kraj
Tato nemovitost již od 12 895 Kč měsíčně s roční úrokovou sazbou od 4,19 %.
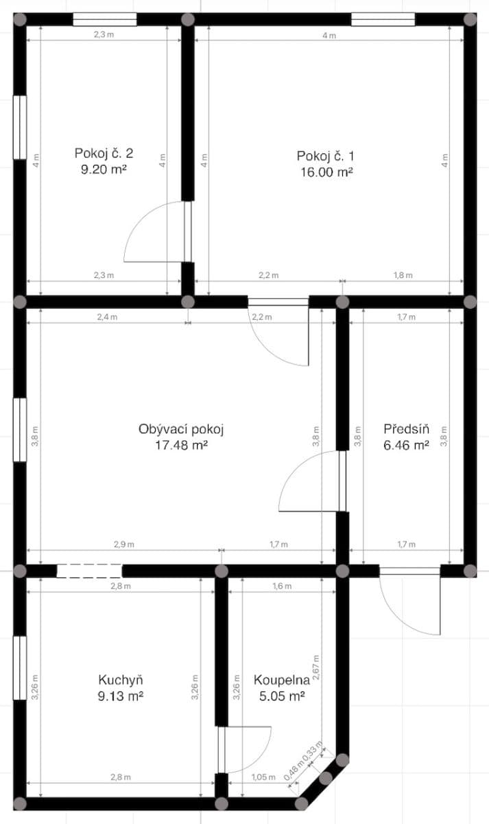
Nabízíme k prodeji byt 3+1 o ploše 65 m², umístěný v 1. nadzemním podlaží domu přímo u lanškrounského náměstí.
Byt prošel částečnou rekonstrukcí – vyměněná okna, podlahy, všechny dveře i kuchyňská linku se spotřebiči. Dispozice nabízí tři samostatné pokoje, kuchyň a prostornou předsíň, která poskytuje dostatek místa pro šatní skříně a botník.
K domu náleží společná zahrada s možností posezení a "kůlnou" pro úschovu kol nebo zahradního vybavení. Vlastní parkovací stání je přímo u domu.
Okna bytu jsou orientována na západ a nabízejí výhled na Lanškroun a Pivovarské náměstí.
Parametry nemovitosti
| Dostupné od | 9. 11. 2025 |
|---|---|
| Konstrukce budovy | Cihla |
| Vybaveno | Částečně |
| Vytápění | Plynové |
| Vlastnictví | Osobní |
| Umístění | Centrum |
| Rizika | Prověřit » |
| Stav | Velmi dobrý |
|---|---|
| Dispozice | 3+1 |
| Podlaží | 1. podlaží z 2 |
| Číslo inzerátu | 963364 |
| PENB | G - Mimořádně nehospodárná |
| Užitná plocha | 65 m² |
| Cena za jednotku | 50 769 Kč / m2 |
Co tato nemovitost nabízí?
| MHD 3 minuty pěšky |
| Parkování |
V okolí nemovitosti najdete
Tato nemovitost již od 12 895 Kč měsíčně s roční úrokovou sazbou od 4,19 %.
Stále hledáte to pravé?
Nastavte si hlídacího psa. Nabídky vybrané na míru dostanete souhrnně 1× denně e-mailem. S Premium profilem máte k ruce hlídačů rovnou 5 a když se něco objeví, informují vás obratem.













