
Prodej bytu 3+kk • 55 m² bez realitkyRumburská, Praha - Prosek
Využít program Bydlím hned, koupím později
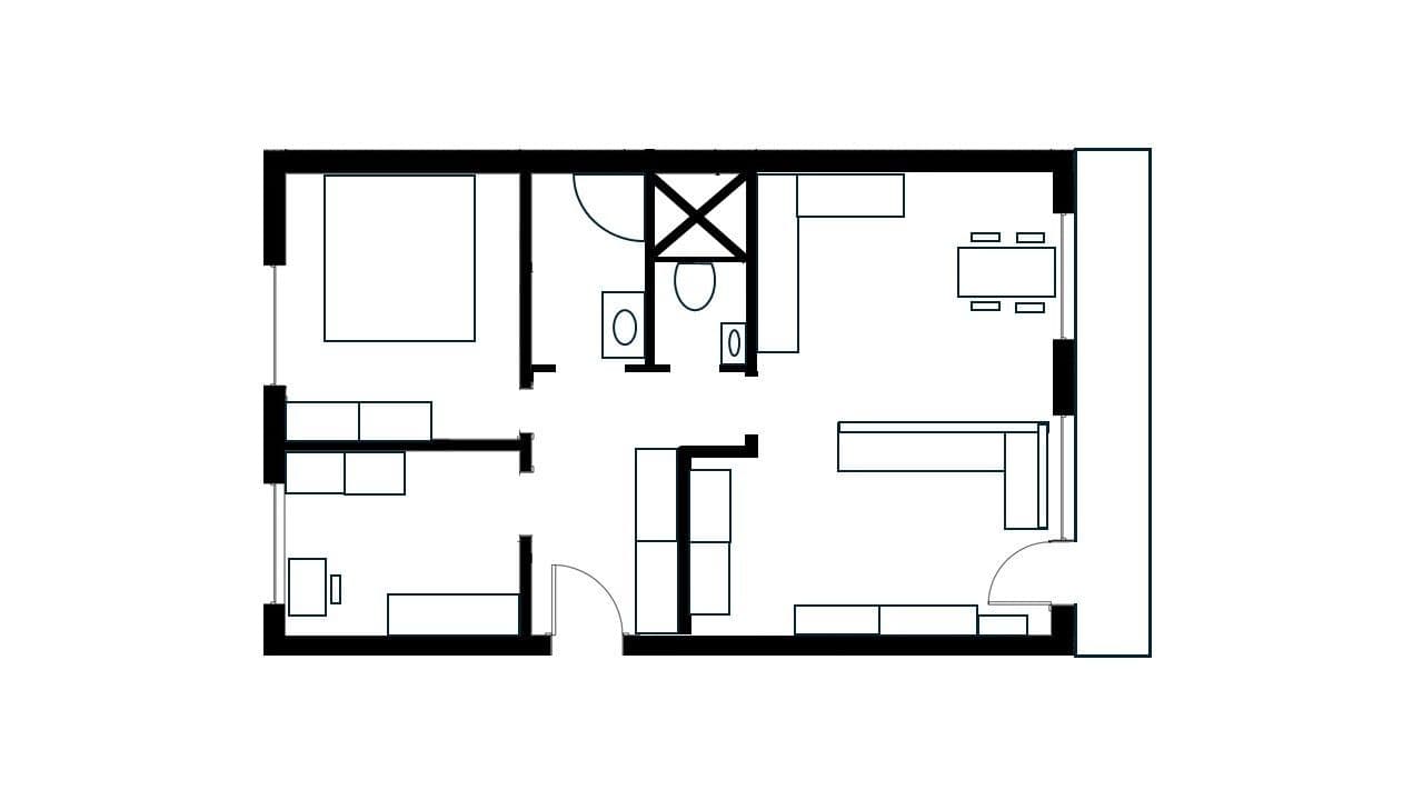
Nabízím k prodeji krásný světlý byt po kompletní rekonstrukci o dispozici 3+kk a podlahové ploše 55 m2, k tomu lodžie 6 m2 a komora na chodbě 1 m2., Byt se nachází v bytovém domě v ul. Rumburská ve 4. patře z celkových sedmi. Byt je dispozičně velmi dobře řešen - nabízí obývací pokoj s kuchyní vybavenou spotřebiči Electrolux (vestavěná chladnička s mrazákem, myčka, indukční deska, trouba, digestoř), vstup na lodžii s orientací na jih, což zajišťuje dostatek světla po celý den, dále ložnici a dětský pokoj s orientací na sever a prostornou koupelnu se sprchovým koutem a samostatné WC. V chodbě je k dispozici vestavěná skříň. Na zemi je položena kvalitní vinylová podlaha. Naproti vstupu do bytu se nachází komora s policemi. Dům je obklopen vzrostlými stromy v klidné ulici s dostatkem parkovacích míst, je po kompletní rekonstrukci, udržovaný a vedený skvěle fungujícím společenstvím vlastníků.
Obrovskou výhodou této lokality je kompletní občanská vybavenost – přímo u domu je mateřská škola, v docházkové vzdálenosti další školy, obchody, zdravotnické zařízení i sportovní areály a na vycházky ideální park Přátelství. Stanice metra C Střížkov se nachází pouhých 5 minut pěšky, stejně jako supermarket Lidl a zastávky MHD. Do centra města trvá cesta pouhých 15 minut.
Parametry nemovitosti
| Dostupné od | 9. 11. 2025 |
|---|---|
| Konstrukce budovy | Panel |
| Vybaveno | Nevybaveno |
| Číslo inzerátu | 963389 |
| PENB | G - Mimořádně nehospodárná |
| Užitná plocha | 55 m² |
| Cena za jednotku | 145 273 Kč / m2 |
| Stav | Velmi dobrý |
|---|---|
| Dispozice | 3+kk |
| Podlaží | 5. podlaží z 8 |
| Vlastnictví | Osobní |
| Umístění | Sídliště |
| Rizika | Prověřit » |
Co tato nemovitost nabízí?
| Sklep 1 m² | |
| Lodžie 6 m² |
| Parkování |
V okolí nemovitosti najdete
Využít program Bydlím hned, koupím později
Stále hledáte to pravé?
Nastavte si hlídacího psa. Nabídky vybrané na míru dostanete souhrnně 1× denně e-mailem. S Premium profilem máte k ruce hlídačů rovnou 5 a když se něco objeví, informují vás obratem.
























