Prodej domu 4+1 • 78 m² bez realitkyBamberger Str. 15, , Bavorsko
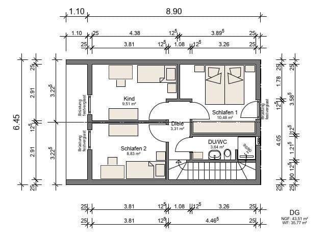
Tento nový stavební projekt zahrnuje celkem 13 moderních řadových domů vybudovaných udržitelnou dřevěnou metodou. Každý dům nabízí obytnou plochu 77,66 m² (bez zahrnutí terasy) a disponuje 4 pokoji, které se vyznačují efektivním dispozicím. Při realizaci se využívají pouze prvotřídní materiály, aby bylo zajištěno vytvoření trvalého a pohodlného domova.
Projekt je realizován dle standardu KfW 40 QNG, čímž splňuje nejpřísnější požadavky na energetickou účinnost a udržitelnost. Rodiny navíc mají možnost čerpat atraktivní podporu prostřednictvím programu KfW 300 Vlastnictví domova pro rodiny – novostavba, s možností financování již od 0,01 % a podpůrnými částkami až do výše 270 000 €.
https://www.kfw.de/inlandsfoerderung/Privatpersonen/Neubau/F%C3%B6rderprodukte/Wohneigentum-f%C3%BCr-Familien-(300)/
Pozemkové plochy činí přibližně 250 m² a nabízejí dostatek prostoru pro individuální úpravy. Exteriéry si mohou majitelé upravit podle vlastních představ; pouze přístupové cesty, které spadají do společného vlastnictví, jsou zajišťovány deweloperem. Veškeré další náklady, jako je přípojka, domiciliární připojení a zemní práce, jsou již zahrnuty v kupní ceně.
Navíc od vás není vyžadováno provádění žádných dodatečných prací, jako jsou malířské práce, pokládka podlah nebo obdobné služby – domy budou předány plně připravené k nastěhování. Stačí se jen nastěhovat a cítit se jako doma.
Dokončení je plánováno na rok 2026, přičemž se projekt aktuálně nachází ještě v plánovací fázi. Rezervujte si své místo již nyní!
Obec Stegaurach s přibližně 6 900 obyvateli se nachází v okrese Bamberg v Horním Francku a patří do metropolitní oblasti Norimberk. Leží idylicky v údolí řeky Aurach u podnoží Altenburgu a je charakteristická loukami, vodními toky a rybníky – prostředí, které nabízí propojení s přírodou a možnosti odpočinku přímo na dosah domova.
Parkovací místo: 5 000,00 €
V okolí nemovitosti najdete
Stále hledáte to pravé?
Nastavte si hlídacího psa. Nabídky vybrané na míru dostanete souhrnně 1× denně e-mailem. S Premium profilem máte k ruce hlídačů rovnou 5 a když se něco objeví, informují vás obratem.


