Prodej domu 5+1 • 105 m² bez realitkySteinweg, Lage-Billinghausen, , Severní Porýní-Vestfálsko
Steinweg, Lage-Billinghausen, , Severní Porýní-VestfálskoMHD 3 minuty pěšky • ParkováníNabízíme k prodeji 3 řadové domy v novém developerském území v Lage-Billinghausenu (Steinweg), klíčové hotové. Domy jsou stavěny podle standardu Efektivního domu 40 (možné financování prostřednictvím KfW).
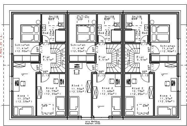
Obytná plocha činí přibližně 105 m².
Cena je uvedena včetně pozemku:
Dům 1 (vlevo): 349.800 € (rezervován)
Dům 2 (uprostřed): 319.800 €
Dům 3 (vpravo): 342.900 €
Přesnou polohu pozemků naleznete na přiložených obrázcích a v dokumentech.
Těšíme se na Vaši reakci a rádi Vám poskytneme další informace.
Billinghausen je čtvrť města Lage v okrese Lippe, Severní Porýní-Vestfálsko, a leží přibližně 4,5 km jihozápadně od centra Lage. Okolí je charakterizováno harmonickou kombinací venkovské idylky a dobré infrastruktury. S přibližně 1 900 obyvateli Billinghausen nabízí klidné, rodinně přátelské bydlení s vesnickým charakterem a vyvinutou sousedskou komunitou.
Čtvrť je obklopena poli, malými lesy a typickou lippskou krajinou. Výstavba se skládá z rodinných a vícegeneračních domů, historických usedlostí a novějších obytných oblastí, zejména v Billinghauser Heide. V centru obce se nachází několik starých hospodářství, která se pyšní bohatou historií. Billinghausen je dopravně dobře napojen: Pomocí nedaleké silnice B66 a B239 se rychle dostanete do okolních měst jako Lage, Detmold, Lemgo nebo Bad Salzuflen. Městská hromadná doprava pak pravidelně spojuje Billinghausen s centrem Lage a dalšími čtvrtěmi.
V obci samotné se nachází mateřská škola, základní škola a různé spolky, které ovlivňují komunitní život. Nákupní možnosti, lékaři, střední školy a všechny důležité služby jsou k dispozici v nedalekém centru Lage. Zelené okolí zve k procházkám, cyklistickým výletům a různým volnočasovým aktivitám.
Billinghausen spojuje výhody bydlení blízko přírody a klidného obytného prostředí s dobrou dostupností městských služeb – ideální pro rodiny, milovníky přírody a všechny, kteří hledají uvolněné prostředí pro život.
V okolí nemovitosti najdete
Stále hledáte to pravé?
Nastavte si hlídacího psa. Nabídky vybrané na míru dostanete souhrnně 1× denně e-mailem. S Premium profilem máte k ruce hlídačů rovnou 5 a když se něco objeví, informují vás obratem.





