Prodej domu 7+1 • 173 m² bez realitky, Porýní-Falc
, Porýní-FalcMHD do minuty pěšky • Parkování • GarážIdylicky situovaný dům v Rockenhausen-Marienthal; dům postavený v roce 1960 má obytnou plochu 173 m², pozemek má 7000 m²; v roce 2005 byl dům kompletně zrekonstruován, v roce 2021 byly v suterénu vytvořeny další 2 ložnice; v roce 2014 bylo instalováno nové topení; celá nemovitost je velmi upravená; pozemek je ohraničen potokem: V Rockenhausen, cca 3 km, se nacházejí možnosti nákupu, základní i střední škola a další; zahrada, upravená do podoby parku, láká k posezení, ale je zde možný i chov zvířat (koně);
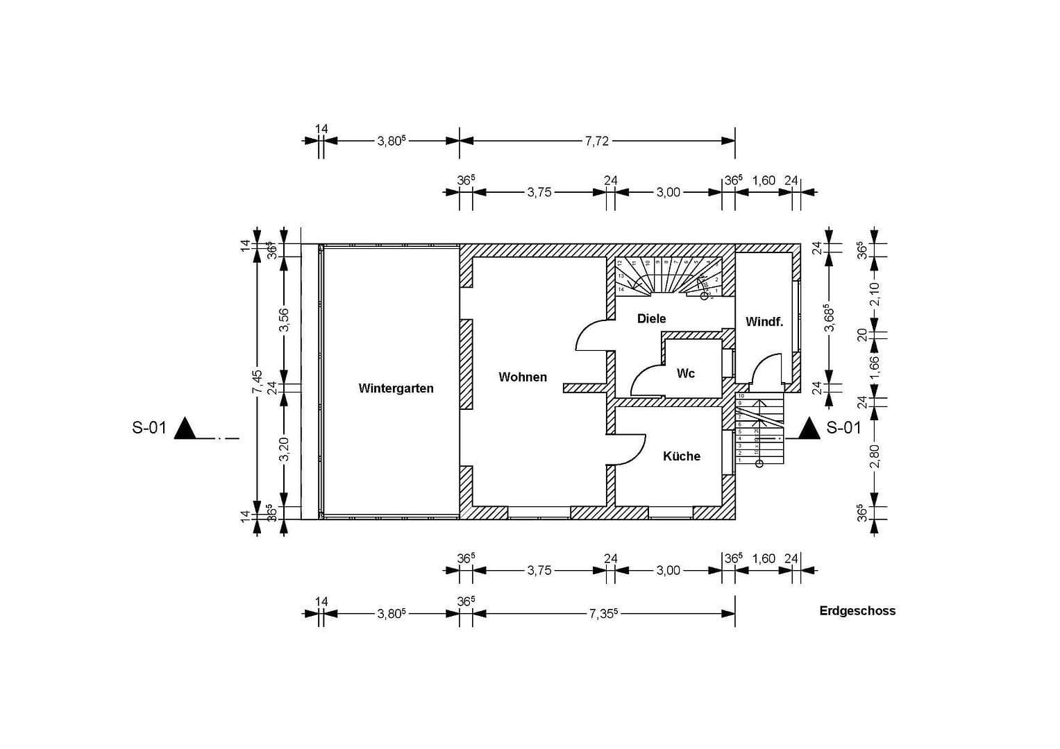
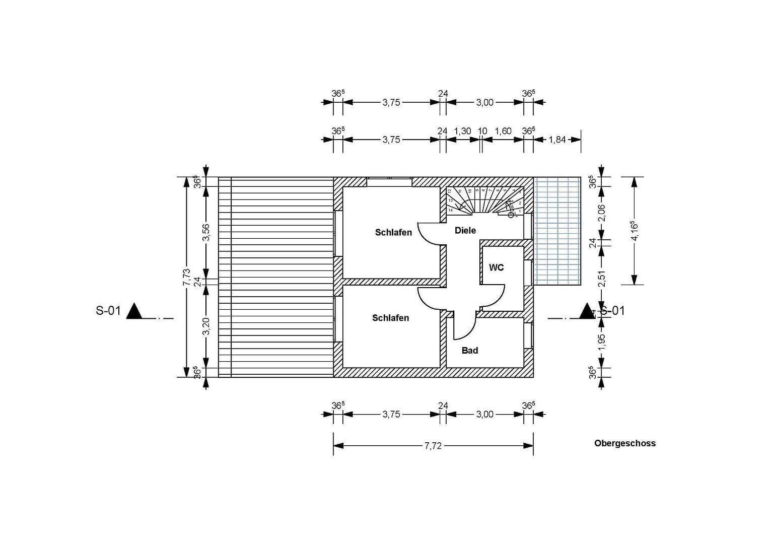
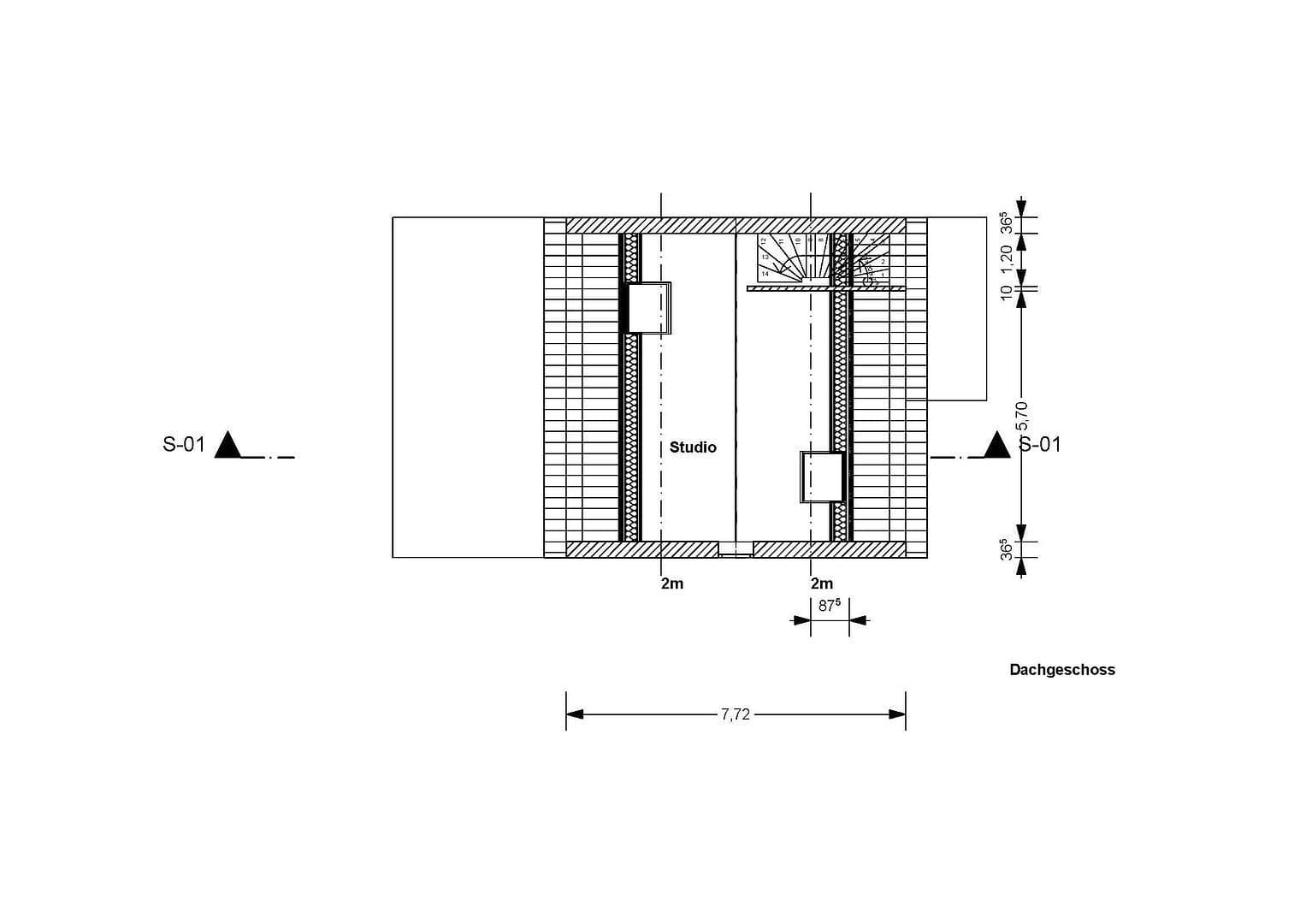
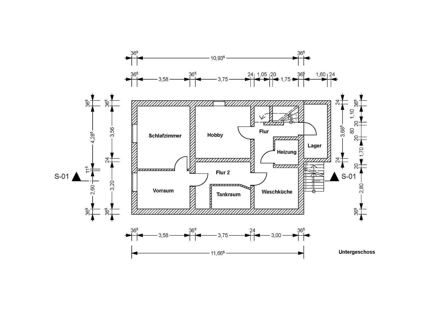
ROZDĚLENÍ:
Přízemí: obývací-jídelna, zimní zahrada, kuchyň, hostinská toaleta
1. patro: ložnice, dětský pokoj, koupelna
Podkroví: studio
Suterén: 2 ložnice
VYBAVENÍ: plastová a dřevěná tepelná izolační skla, olejové centrální topení, ohřev vody přes topení, koupelna s vanou, sprchou, oknem v koupelně, podlahy obkládané dlaždicemi a dřevěnými parketami, terasa, úložný prostor, prádelna/sušárna, satelitní zařízení, 3 garáže, 2 parkovací místa, zahrada s rybníkem a potokem, zahradní osvětlení, zahradní domek, volné posezení, vestavěná kuchyň; dům je volný dle dohody;
Provize kupujícího: 2,3 % včetně DPH.
Poznámka k provizi: Makléř jedná také na pokyn prodávajícího. Ten platí provizi nejméně v odpovídající výši provize kupujícího. Dohodnuta je celková provize ve výši 4,60 % včetně DPH. Dohodnutá provize je vydělána a splatná po notariálním zápisu kupní smlouvy a počítá se z celkové kupní ceny.
Inzerce probíhá jménem:
Immobilien-Hahn, Inh. Ursula Tups e.K
Jakob-Osterspey-Straße 6
67227 Frankenthal
Obchodní povolení dle §34c GewO bylo uděleno městem Frankenthal (Pfalz)
Dozorčí orgán: obchodní úřad Frankenthal
Obchodní rejstřík: Ludwigshafen
Číslo v obchodním rejstříku: HRA 60041
DIČ: DE213932738
Otevírací doba:
Po–Pá od 08:30 do 19:30 hodin
So od 08:30 do 17:00 hodin
V okolí nemovitosti najdete
Stále hledáte to pravé?
Nastavte si hlídacího psa. Nabídky vybrané na míru dostanete souhrnně 1× denně e-mailem. S Premium profilem máte k ruce hlídačů rovnou 5 a když se něco objeví, informují vás obratem.





















