Prodej domu 4+1 • 100 m² bez realitkyŽandov - Radeč u Horní Police, Liberecký kraj
Žandov - Radeč u Horní Police, Liberecký krajParkování • Sklep 10 m² • Terasa 30 m²Tato nemovitost již od 21 100 Kč měsíčně s roční úrokovou sazbou od 4,19 %.
Dobrý den, jako přímý vlastník prodám rodinný dům v CHKO České středohoří na adrese Radeč 50 (Radeč u Horní Police).
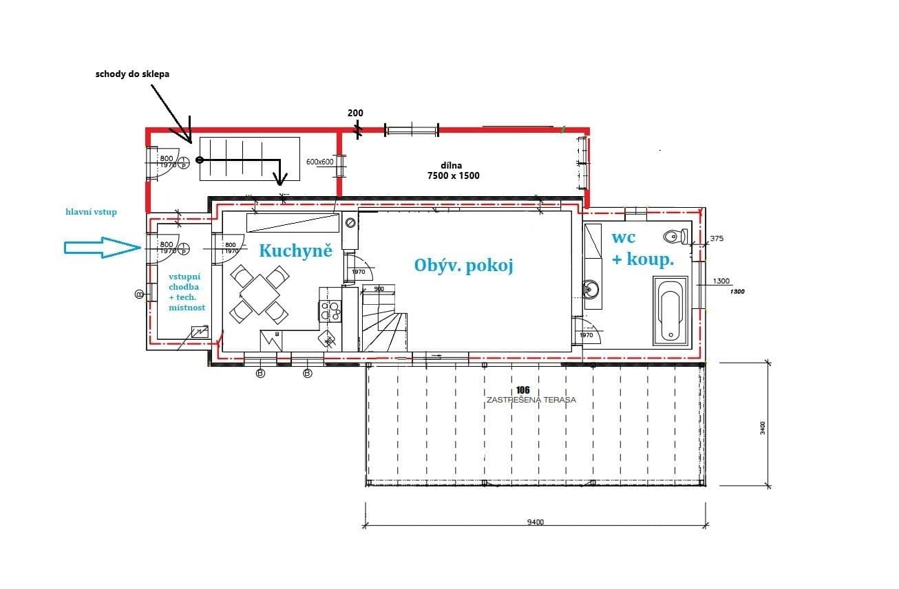
Jedná se o stavbu kolaudovanou v roce 2020 (nedokončená rekonstrukce). Zděná poctivá stavba z Ytongu 375, okna Vekra, střešní pálené tašky Tondach. Dům o užitné podlahové ploše 100m² + 25m² kolna + krásná zastřešená terasa 30m² + cca 10m² sklep. Dispozice domu viz. přiložené půdorysy.
Nádherná zahrada orientovaná na jih – slunce po celý den, velikost parcely 2200m2, která je celá stavební. V domě nové rozvody elektřiny. Vnitřek je potřeba kompletně dokončit (rozvody, topení, schodiště, omítky). Je potřeba také instalovat novou jímku a dodělat fasádu. Vše si tak můžete přizpůsobit vašemu vkusu.
Na zahradě jsou vzrostlé duby, ovocné stromy a keře, kompostér a zahradní domek s vodou a elektřinou (umístěn také bojler, vana ke koupání atd.). Bezproblémový příjezd z přilehlé cesty i obecního pozemku.
Jedná se o klidné místo v naprosté přírodě, bez světelného znečištění s pohodovými sousedy.
Obec Radeč je od České Lípy asi 10 min jízdy autem, do Prahy pak něco přes hodinu. V České Lípě je veškerá občanská vybavenost (nákupní centrum je na okraji České Lípy blíž k Radči, nemusíte proto vůbec zajíždět do města). Radeč spadá pod město Žandov, kde naleznete vše potřebné: pošta, škola, obchody, úřad, restaurace atd. Asi 2 km od domu je v Horní Polici přírodní koupaliště.
V blízkém okolí je Národní park České Švýcarsko, CHKO Kokořínsko, hrad Sloup, pohádkové Varhany a mnoho dalšího. Nedaleko je také Máchovo jezero.
V případě zájmu o bližší informace mne kontaktuje.
Parametry nemovitosti
| Dostupné od | 11. 11. 2025 |
|---|---|
| Konstrukce budovy | Cihla |
| Vybaveno | Nevybaveno |
| Vlastnictví | Osobní |
| Poloha domu | Samostatný |
| Plocha pozemku | 2 200 m² |
| Cena za jednotku | 54 000 Kč / m2 |
| Stav | Novostavba |
|---|---|
| Dispozice | 4+1 |
| Číslo inzerátu | 964040 |
| PENB | C - Úsporná |
| Užitná plocha | 100 m² |
| Rizika | Prověřit » |
Co tato nemovitost nabízí?
| Sklep 10 m² | |
| Parkování |
| Terasa 30 m² |
V okolí nemovitosti najdete
Tato nemovitost již od 21 100 Kč měsíčně s roční úrokovou sazbou od 4,19 %.
Stále hledáte to pravé?
Nastavte si hlídacího psa. Nabídky vybrané na míru dostanete souhrnně 1× denně e-mailem. S Premium profilem máte k ruce hlídačů rovnou 5 a když se něco objeví, informují vás obratem.













