
Pronájem bytu 2+1 • 71 m² bez realitkyBräuhausgasse 8 Wien 5. Bezirk Wien 1050
Bräuhausgasse 8 Wien 5. Bezirk Wien 1050MHD 1 minuta pěšky • Výtah71,40 m² obytné plochy + 4,33 m² balkon | Novostavba | Klimatizace | Fotovoltaická smlouva o energii | Maisonette přes dvě úrovně
Bydlení s architektonickým charakterem
V přední části ulice Bräuhausgasse, v srdci Margareten, vznikla vysoce kvalitní podkrovní přestavba, která spojuje design, energetickou efektivitu a světelnou architekturu.
Celý dům byl v rámci přestavby kompletně zrekonstruován – včetně výtahu, fasád a schodišť.
Tento maisonette byt zaujme svou zajímavou dispozicí, prosklením od podlahy ke stropu a charakteristickou skleněnou podlahou mezi úrovněmi.
Dispozice & Hlavní přednosti
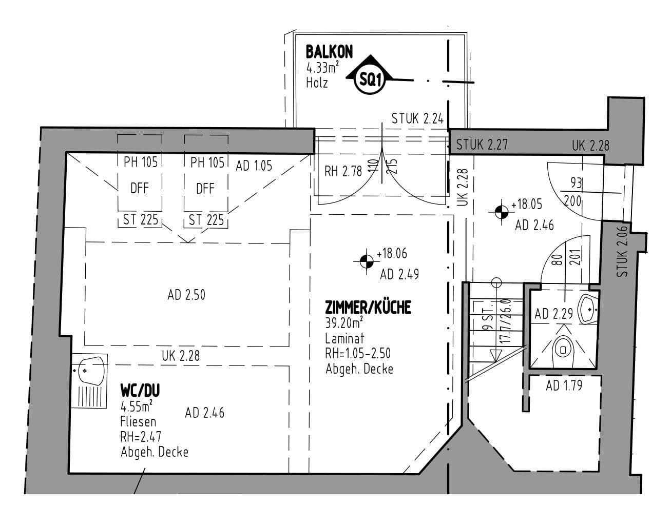
Byt se rozkládá na dvou úrovních s celkovou obytnou plochou 71,4 m² a balkónem orientovaným na sever (4,33 m²).
1. podkroví
• Štědrá předsíň se skleněným oddělením – vytváří průhlednost a zajišťuje vizuální kontakt s obytným prostorem
• Otevřený obývací a jídelní prostor s dubovým parketovým podlahovým krytím, velkými střešními okny a moderní designovou kuchyní včetně kuchyňského ostrova
• Samostatná toaleta v předsíni
2. podkroví
• Ložnice s okny od podlahy ke stropu a úžasným výhledem
• Místnost zaujme skleněnou podlahou spojující s nižší úrovní, která vytváří výjimečnou hru světel a pocit otevřeného prostoru
• Koupelna s vanou, umyvadlem a světlíkem, elegantně zařízená v jemných přírodních tónech
Balkón & Orientace
Balkón o rozloze 4,33 m² je přístupný z obývacího pokoje v nižším patře a je orientován na sever – ideální pro tiché letní večery s výhledem na Vídeň a Kahlenberg.
Dům se nachází v klidné, ale přesto centrální oblasti ve 5. městské části – mezi Margaretenplatz, Naschmarkt a Pilgramgasse.
Infrastruktura je vynikající, základní služby a veřejná doprava jsou dosažitelné během několika minut.
V bezprostřední okolí:
• Billa a Spar: 2–4 minuty pěšky
• Margaretenplatz & Schlossquadrat: cca 5 minut
• U4 Pilgramgasse: 6 minut pěšky
• Autobusové linky 13A, 59A, 14A: 3 minuty chůze
• Scheupark: 1 minuta pěšky
• Centrum/Naschmarkt: 10–15 minut na kole
Další vybavení:
• Podlahové vytápění ve všech místnostech
• Klimatizace
• Dubové parkety a velkoformátové keramické dlaždice
• Kuchyně se zařízeními značky Siemens
• Bezzdvořové dveře, trojitě zasklená okna
• Designové koupelnové vybavení a kvalitní armatury
• Sklepní kóje a místnost pro kola v domě
Udržitelná budovová technika
Vytápění i chlazení probíhá přes dvě tepelná čerpadla, poháněná fotovoltaickou elektrárnou na střeše.
Nájemce tak získává elektřinu prostřednictvím vlastní dodávkové smlouvy přímo od pronajímatele – za výrazně výhodnější cenu než na trhu.
Budova byla v rámci podkrovní přestavby kompletně zmodernizována.
Nové výtahy, zrekonstruovaná schodiště a tepelně izolované fasády zajišťují vysoký komfort bydlení.
Každý byt má vlastní sklep a v domě je k dispozici společná místnost pro kola.
Tato maisonette je architektonickým prohlášením:
Světlé místnosti, výjimečné osvětlení v rámci dvou úrovní a výrazná skleněná podlaha z ní činí domov pro všechny, kteří oceňují design a působivý prostorový efekt – ideální pro single nebo páry s citem pro architekturu a kvalitu.
Další byty v domě – od kompaktních jednotek až po prostorné podkrovní byty – jsou také k dispozici.
V okolí nemovitosti najdete
Stále hledáte to pravé?
Nastavte si hlídacího psa. Nabídky vybrané na míru dostanete souhrnně 1× denně e-mailem. S Premium profilem máte k ruce hlídačů rovnou 5 a když se něco objeví, informují vás obratem.































