Pronájem kanceláře • 620 m² bez realitkyIndustriestrasse 48, , Severní Porýní-Vestfálsko
Industriestrasse 48, , Severní Porýní-VestfálskoMHD 6 minut pěšky • GarážV velmi udržovaném objektu, postaveném v roce 1996, se nachází:
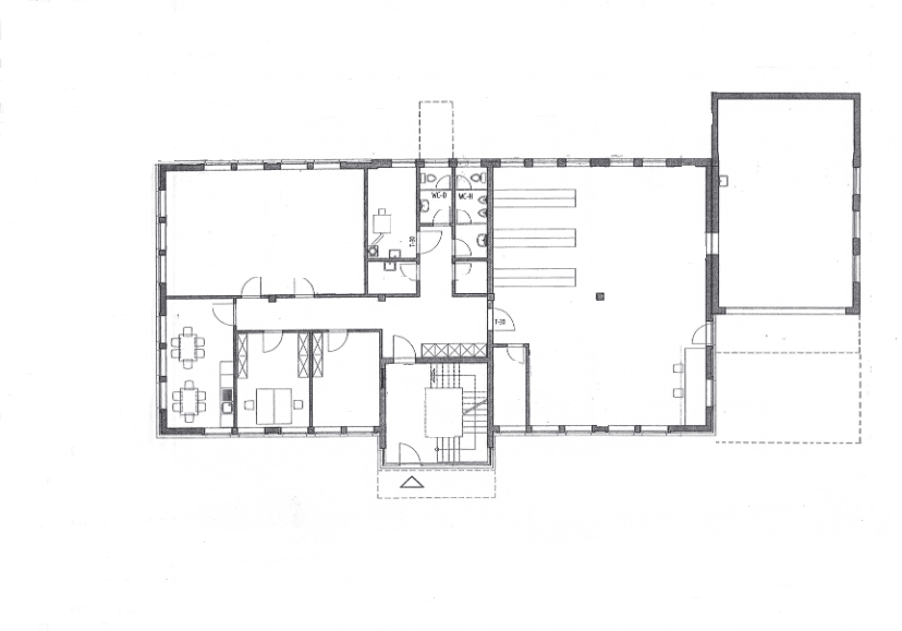
V přízemí (EG) o přibližně 280 m²:
• 2 montážní místnosti / skladové haly
• 2 kanceláře
• Kuchyně
• 2 WC
• 2 malé skladové místnosti
• Zásobovací místnost
• Vstup s proskleným schodištěm
Hala je dlaždicově obložená, vytápěná (radiátory), s výškou stropu haly cca 2,8 m a s průjezdovou výškou jinde cca 3,2 m, přičemž přístup je možný z přízemí budovy a pomocí rolovacích vrat o rozměrech 5,6 m na šířku x 2,8 m na výšku. Předhalová plocha haly je zastřešená sklem (viz obrázky).
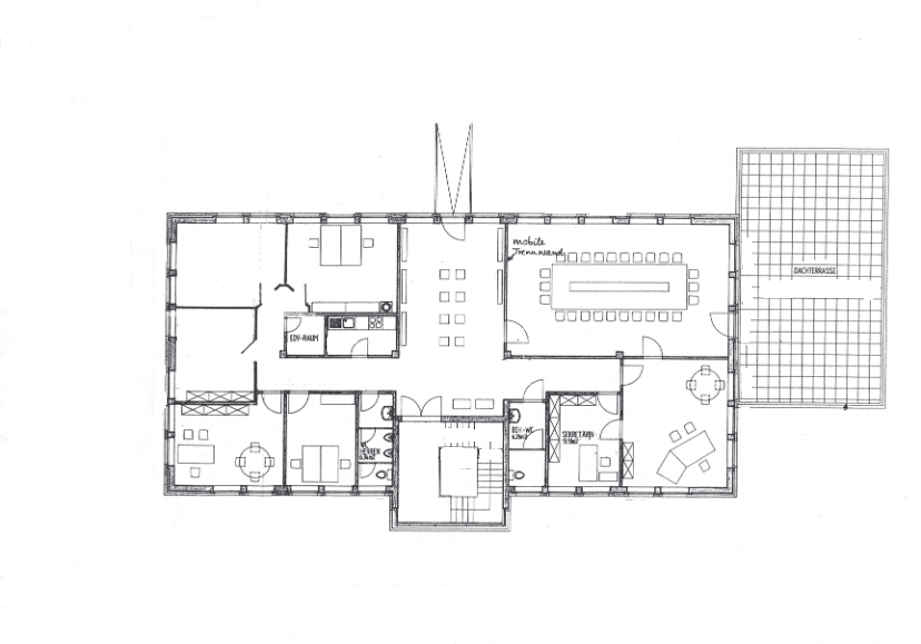
V horním patře (OG) o přibližně 280 m²:
• Velká zasedací místnost s nastavitelnou stenou (předsíň lze využít navíc)
• 7 kanceláří
• Kuchyně
• 2 WC
• Klimatizovaná serverovna
• Přístup/vstup do parkoviště přes most
• Prosklené schodiště
K dispozici je řada parkovacích míst v exteriéru.
Přímo před budovou je dlažba a v zadní části štěrkovaná plocha.
(Tato místa lze pronajmout dle potřeby.)
Objekt je k dispozici od 1. května 2026.
Čistý nájem bez provozních nákladů (NK), topení, vody a elektřiny činí 6 385 EUR netto.
Parkovací místa a venkovní prostory lze rovněž pronajmout dle potřeby.
Objekt se nachází centrálně v průmyslové zóně 51399 Burscheid.
Jako okrajový pozemek je objekt situován v podobně upravené ploše jako park.
Dopravní spojení na dálnici A1 (odbočka Burscheid) a na dálnici A3 (odbočka Kreuz Leverkusen) je dosaženo přibližně za 10 minut.
Centra měst Leverkusen (cca 10 km), Köln (cca 20 km) a Düsseldorf (cca 40 km) jsou taktéž rychle dosažitelná.
Letiště Köln/Bonn a Düsseldorf jsou dosažitelná za 30–40 minut.
Letiště Frankfurt je vzdálené přibližně 180 km.
Obchody pro každodenní potřeby (Lidl, Aldi, …), občerstvení s denně se měnícími teplými obědy a fitness centrum jsou dosažitelné pěšky.
Na jaře 2024 byla instalována nová kondenzační plynová centrální topení (značka Wolf).
Optické připojení (fiber) je k dispozici od léta 2025.
Všechna venkovní okna jsou vybavena elektrickými žaluziemi.
Parametry nemovitosti
| Stáří | Nad 50 let |
|---|---|
| Stav | Dobrý |
| Číslo inzerátu | 964222 |
| Cena za jednotku | 10 € / m2 |
| Dostupné od | 1. 5. 2026 |
|---|---|
| Podlaží | 1. podlaží z 2 |
| Plocha kanceláře | 620 m² |
Co tato nemovitost nabízí?
| Garáž | |
| MHD 6 minut pěšky |
V okolí nemovitosti najdete
Stále hledáte to pravé?
Nastavte si hlídacího psa. Nabídky vybrané na míru dostanete souhrnně 1× denně e-mailem. S Premium profilem máte k ruce hlídačů rovnou 5 a když se něco objeví, informují vás obratem.











































