Pronájem domu 5+1 • 141 m² bez realitkyBussardstr. 6d Ingolstadt Gerolfing Bayern 85049
Bussardstr. 6d Ingolstadt Gerolfing Bayern 85049MHD 2 minuty pěšky • Parkování • GarážKrásná řadová koncová vila s velkým obytným prostorem k pronájmu v Ingolstadtu-Gerolfingu.
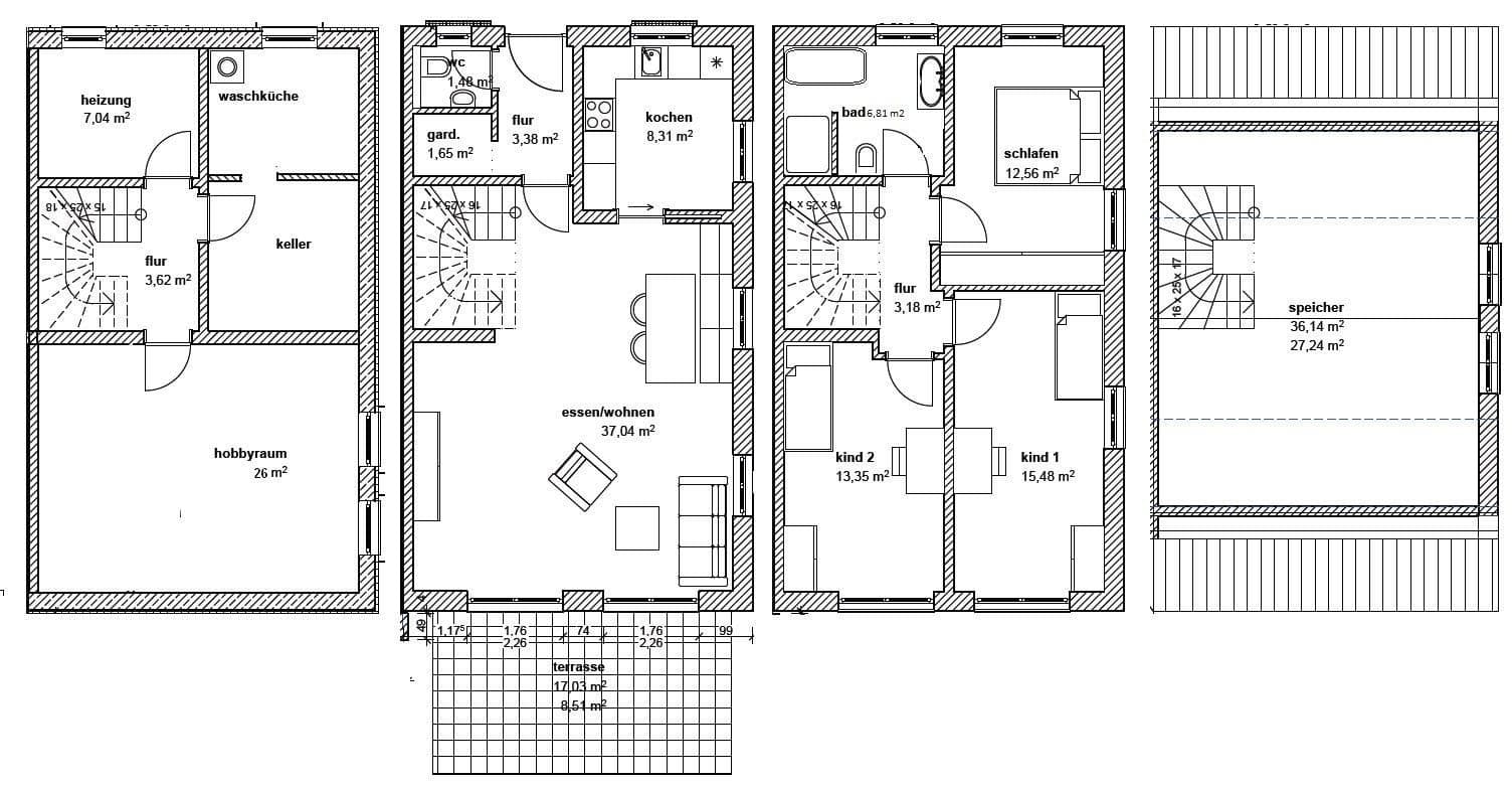
V přízemí vstoupíte nejprve do chodby. Nachází se zde také hostinská toaleta, velký světlý obývací pokoj a hezká vestavěná kuchyň (s malým poplatkem za převzetí).
V patře najdete tři ložnice s velkými okny a rodinnou koupelnu. Jako vrchol má střešní podkroví velký pokoj s útulnou viditelnou krovu.
Terasa směřující na jih s rozlehlou klidnou zahradou a přístřešek pro kola a/nebo zahradní nářadí nabízejí příjemné posezení venku.
Dům má kompletní sklep, který zahrnuje další hobby místnost o rozloze 26 m². Nachází se zde rovněž plynové topení, jež je podpořeno tepelným solárním systémem.
Do pronájmu je zahrnuta uzamykatelná garáž a další parkovací místo.
Část města Gerolfing se nachází na západ od Ingolstadtu a nabízí veškerou potřebnou infrastrukturu, jako je mateřská škola, základní škola, možnosti nákupu a zdravotní péče. Místní aktivní společenský život poskytuje mnoho příležitostí a okolí s dunajskými lužními oblastmi zve ke procházkám nebo k osvěžení při koupání na místním rybníku.
Velcí zaměstnavatelé, jako například Audi nebo klinika, jsou téměř za rohem.
Řadový dům byl postaven s vysoce kvalitní vybaveností interiérů. Díky kvalitní stavbě a solárně podporovanému ohřevu vody lze provozní náklady udržovat na nízké úrovni.
Energetický průkaz z roku 2013 vykazuje hodnotu 61,5 kWh/m²*a (zelená kategorie). Právě prochází aktualizací.
Před prohlídkou požadujeme, aby zájemci o pronájem předložili informace o sobě, včetně počtu osob, které se nastěhují, údajů o zaměstnavateli a příjmech, případně také informace o předchozím nájemním vztahu.
V okolí nemovitosti najdete
Stále hledáte to pravé?
Nastavte si hlídacího psa. Nabídky vybrané na míru dostanete souhrnně 1× denně e-mailem. S Premium profilem máte k ruce hlídačů rovnou 5 a když se něco objeví, informují vás obratem.








