Prodej domu • 245 m² bez realitkyWilhelmsburg Wilhelmsburg Niederösterreich 3150
Wilhelmsburg Wilhelmsburg Niederösterreich 3150MHD 1 minuta pěšky • ParkováníNa prodej je okouzlující a udržovaný rodinný dům s více samostatně využitelnými obr. jednotkami (celkem 4) v centrální části města Wilhelmsburg, jižně od St. Pölten. Nemovitost kombinuje historický charakter s moderním komfortem bydlení a je vhodná jak jako atraktivní investiční objekt, tak i pro vlastní bydlení – například pro vícigenerační bydlení či kombinaci bydlení a pronájmu. Nachází se jen 40 minut od lyžařského střediska Annaberg.
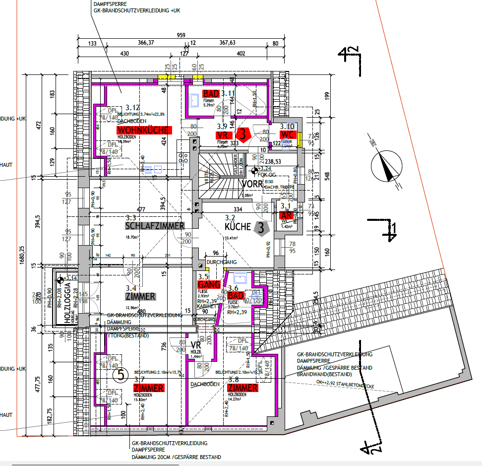
Dům pochází z let 1905–1910, byl však v posledních letech důkladně zrekonstruován a modernizován. Zvláštní pozornost si zaslouží kvalitně zrekonstruovaná půda z roku 2023, která poskytuje dodatečný obytný prostor s jedinečným šarmem.
Topení je zajišťováno centrálním novým peletovým kotlem, který efektivně a ekologicky vytápí prostor. Během posledních pěti let byla kontinuálně investována do zlepšení konstrukce a vybavení domu:
• Střecha byla kompletně nově překrytá
• Fasáda byla zrenovována
• Vjezdová cesta byla nově dlažena
• Půda byla zrekonstruována do obytného prostoru
• Podél silnice byl postaven nový plot
Tato nemovitost nabízí jedinečnou příležitost koupit univerzální obytný objekt s pevným potenciálem růstu hodnoty – v oblasti s dobrou infrastrukturou a vysokou kvalitou života.
Základní údaje:
• Kupní cena: 745 000 €
• Celková obytná plocha: cca 225 m²
• Rozloha pozemku: cca 489 m²
• Počet místností: 16
• Ložnice: 6
• Koupelny: 4
• Parkovací místa: 2 před domem (na veřejném pozemku) + další vnitřním dvoře
• Topení: centrální peletové topení (rok výstavby 2020)
• Sklep: cca 9 m²
• Zvláštnosti: dřevěný zimní balkon, tepelná izolace, klidná lokalita, dobré veřejné spojení
• Internet: k dispozici optické připojení
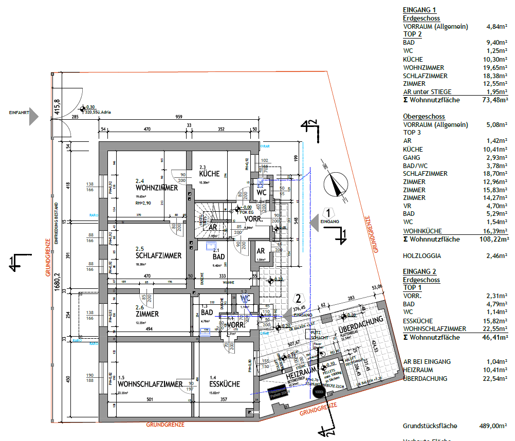
Rozložení bytů:
• Byt 1 (přízemí, cca 73 m²): kuchyň, obývací pokoj, 2 ložnice, koupelna, WC
• Byt 2 (přízemí, cca 46 m²): kuchyň, ložnice, koupelna, WC
• Byt 3 (půda, cca 80 m²): kuchyň, obývací pokoj, 2 ložnice, koupelna/WC, kancelář, balkon, úložná místnost
• Byt 4 (půda, cca 28 m²): studio s otevřenou kuchyní/obytným prostorem, koupelna/WC
Dva nerekonstruované byty v přízemí jsou momentálně dočasně pronajaty a velký byt na půdě je aktuálně obýván mou rodinou, takže byt 4 je volný.
Lokalita a infrastruktura:
Nemovitost se nachází v Wilhelmsburgu, klidném maloměstě s vynikající infrastrukturou:
• Přístup k dálnici, vlakové nádraží a autobusová zastávka jsou dosažitelné do 10 minut
• Obchody, lékaři a školy jsou dostupné pěšky
• Přírodní prostředí s dobrou dostupností průmyslových zón – ideální pro nájemce i dojíždějící
V roce 2015 došlo v jednom bytě k vodní škodě, která byla v následujících letech rovněž zrekonstruována. Podrobnosti jsou k dispozici na vyžádání. Vedlejší budova domu byla v roce 2018 postižena požárem a následně v letech 2019 a 2020 důkladně renovována. Půda byla dokončena v roce 2023. Energetický štítek je k dispozici.
Parametry nemovitosti
| Stáří | Nad 50 let |
|---|---|
| Podlaží | Přízemí |
| PENB | B - Velmi úsporná |
| Plocha pozemku | 489 m² |
| Stav | Dobrý |
|---|---|
| Číslo inzerátu | 964574 |
| Užitná plocha | 245 m² |
| Cena za jednotku | 3 041 € / m2 |
Co tato nemovitost nabízí?
| Balkón | |
| MHD 1 minuta pěšky |
| Sklep | |
| Parkování | |
| Terasa |
V okolí nemovitosti najdete
Stále hledáte to pravé?
Nastavte si hlídacího psa. Nabídky vybrané na míru dostanete souhrnně 1× denně e-mailem. S Premium profilem máte k ruce hlídačů rovnou 5 a když se něco objeví, informují vás obratem.



















