Prodej domu • 263 m² bez realitkyWildschapbachstraße 6, , Bádensko-Württembersko
Wildschapbachstraße 6, , Bádensko-WürttemberskoMHD 6 minut pěšky • Parkování • GarážKRIZOVĚ BEZPEČNÉ A SOBĚSTAČNÉ DO BUDOUCNOSTI
Zapomeňte na titulky o výpadcích proudu, kolapsech elektrických sítí a dalších katastrofách a s nimi spojenými důsledky, jako je selhání nejdůležitějšího základního zdroje potravy – vody. Byty zůstanou chladné, protože bez elektřiny nefungují ani moderní topení, a tím pádem je ohrožena i dodávka potravin.
S touto nemovitostí můžete klidně čelit všem těm latentním katastrofám a jejich scénářům. Navíc v době korony se lidé učili žít mimo omezení malého bydlení – v prostoru s dostatkem místa a přírody.
ZAJIŠTĚNÉ DODÁVKY VODY
Dodávka vody je vždy zajištěna, protože je realizována přes studnu, která funguje bez jakéhokoli energetického zdroje díky fyzikálním silám. Navíc za vodu ve švýcarské (černozemské) kvalitě bez chloru neplatíte ani korunu.
ELEKTROENERGETIKA
Částečná dodávka elektřiny je zajištěna prostřednictvím 9 kV fotovoltaické elektrárny. Generátor doplňuje vznikající mezery, čímž je alespoň zajištěno vytápění staré ropné kotle instalované v roce 2017.
TEPLÝ BYT – TEPLÉ JÍDLO
Každý byt v tomto domě pro dvě rodiny je vybaven dřevěným kamenem, oba byly 13. 6. 2025 schváleny a potvrzeny. Přízemní byt navíc disponuje starožitným kamenným vařičem s troubou a vodním polívkovým systémem a to nejlepší na konec – potřebné dřevo se nachází přímo před vašimi dveřmi a je k tomu zdarma. Obyvatelé tak mají vždy teplé jídlo místo studené konzervy ravioli.
SOBĚSTAČNOST
Díky veliké zahradě a pozemku o rozloze 1,7 ha lze zabezpečit základní zásoby potravin. Na pozemku se nachází i několik ovocných a hospodářských stromů, jako jsou dva velké kaštanovníky, ořechovník, mirabelky, kydle, jabloně a další ovocné stromy. Kromě ovocných stromů se počítá i s vlastnictvím kousku lesa. Součástí pozemku je také rozlehlá louka, ohraničená divokou říčkou, na které lze chovat i zvířata.
PŘÍRODA V ČISTÉ PODOBĚ + OSAMOCENÁ LOKALITA
Tento dům v osamělé lokalitě se vyznačuje klidem a čistou přírodou, a sousedé jsou mimo dosah vašeho pohledu.
Představte si, že ráno vstáváte na balkónu či terase, vychutnáváte si kávu nebo čaj a dýcháte průzračný čerstvý vzduch. Nasloucháte přírodě, slunce obzřívá vaši kůži, a co slyšíte? Nic – jen šum divoké říčky pod vašimi nohama narušuje tuto absolutní ticho.
Večer, když nastane temnota, se opět postavíte na terasu a díváte se na noční oblohu. Při průzračném vzduchu a bez rušivých světelných zdrojů pozorujete hvězdnou oblohu. A když se vaše oči pomalu přizpůsobí tmě, uvidíte drobné tečky naší galaxie, Mléčné dráhy, s jejími miliardami hvězd a nebeskými tělesy, tak jasně, jak jste tento fascinující pohled možná dosud nikdy neviděli.
CENA
Cena tohoto čerstvě zrenovovaného domu je na nejnižší úrovni dle odhadů a porovnání a je značně pod uvedeným maximem.
PRODEJNÍ ARGUMENT
Možná se nyní ptáte, proč se takový dům se všemi těmito jedinečnými vlastnostmi prodává? Odpověď je jednoduchá – prodává se proto, že čas neokrášluje dům, ale vlastníka – tedy inzerenta. Nakonec se vždy zeptáme, kdy je ten pravý čas k prodeji – a ten je teď. Nemovitost je ve špičkovém stavu a je proto právě teď tou pravou dobou ji předat do rukou mladších majitelů, kteří srdcem i rozumem doprovodí nemovitost do budoucnosti.
NEMOVITOST – BEZ PROVIZE REALITNÍMU AGENTU
Nemovitost se nachází v přírodním parku Černý les se všemi jeho možnostmi.
Tento výjimečný a v roce 2025 kompletně zrenovovaný a zmodernizovaný dům pro dvě rodiny, umístěný v osamělé lokalitě s 1,73 ha lesů a luk u divoké říčky, se studnou pro zásobování vodou, fotovoltaickou soustavou a moderním, úsporným ropným topením (energetický štítek C), vám nabízí všechny výše zmíněné možnosti. A to bez dalších nákladů na realitní agenty nebo jiné zprostředkovatelské poplatky.
BYTY – NOVÝ NÁVSTUP PO RENOVACI
Budoucí majitelé se mohou těšit vedle skvělé přírody na dva světlé, prostorné byty s moderním komfortem nejnovější technologie, nejlepším stavebním a komfortním klimatem tradičně postaveného domu, s mnoha užitkovými prostory, garážemi, přístřešky pro auta, parkovacími místy, velkou zahradou a přesto se vynikající infrastrukturou, a to i přes veškerou odlehlost.
PRO INVESTORY
Oba samostatné byty lze bez větších úprav rozdělit do čtyř jednotek. Každý byt má přitom vždy jednu koupelnu nebo sprchu. Nedostatek bytů v tomto regionu často vede ke krachu obsazení volných a nabízených míst.
INFRASTRUKTURA A OKOLÍ
Banky, pošta, restaurace, obchody, školy (školní autobus má zastávku přímo před domem), nabídka volnočasových a sportovních aktivit a vyhřívaná koupací říčka, financovaná podpůrným spolkem, se nachází v bezprostřední blízkosti. Navíc je světově známý medvědí a vlčí park vzdálen jen několik kilometrů.
Lyžařské vleky jsou pro zimní sportovce dosažitelné za pouhých 20 minut. Turisté a cyklisté na horských kolech zde najdou nespočet možností, jak region prozkoumat a "poznat".
Lékařská péče od praktického lékaře až po nemocnici je zaručena.
V regionu se nachází několik dolů na těžbu vzácných zemin. Některé doly je možné i navštívit.
V blízkosti dolů se nachází oblast bohatá na minerály, otevřená pro návštěvníky, kde si můžete vyzkoušet hledání minerálů – oblíbená volnočasová aktivita pro rodiče i děti.
Spousta firem, včetně několika světově uznávaných, sídlí v regionu a nabízí řadu pracovních míst. Firmy si stěžují, že nedostatek bydlení brání obsazení nabízených pracovních míst.
V blízkosti se nachází Matematický institut, který podporuje výzkum, mezinárodní vědeckou spolupráci a další vzdělávání v oboru matematiky a jejích příbuzných disciplín.
Pravidelně jezdí autobusové linky do Freudenstadtu, do sousedních obcí nebo do Offenburgu. Evropský metropolitní region Štrasburk s jeho francouzským šarmem je autem dosažitelný přibližně za 1 hodinu.
STRUČNÝ PŘEHLED – SUMÁŘ
Dům pro dvě rodiny – renovovaný v roce 2025 za akční cenu se dvěma oddělenými a samostatně přístupnými byty:
• Přízemní byt o rozloze 163 m²
• Horní byt o rozloze 100 m²
• Nový nástup po renovaci
• Osamělá lokalita – spousta přírody – klid – průzračný vzduch – čistá voda
• Kvalitní a komplexní renovace a modernizace
• Použití velmi kvalitních stavebních materiálů ve stávající budově
• Dvě oddělené bytové jednotky – možnost rozdělení do čtyř jednotek
• Všechna okna a vstupní dveře jsou opatřena roletami nebo okenicemi
• Téměř nová kondenzační centrální topení na olej – instalováno v červenci 2017
• Energetický štítek C
• 9 kV fotovoltaická elektrárna pro udržitelnou výrobu elektřiny
• Dvoupodlažní garáž (ovládaná na dálku), přístřešek pro auto a několik parkovacích míst
• Dodávka vody ze studny v excelentní kvalitě zdarma – bez chloru
• Mnoho užitkových prostorů – sklep, klenba, bývalé stáje
• Velká zahrada
• Několik chatek a skleníků
• Rozsáhlé zařízení (dálkově ovládaný sekačka, drtič, rozličné přečerpávací stroje)
• Prodej přímo od vlastníka – žádné provize realitním agentům ani zprostředkovatelům!
• Okamžitě k nastěhování a bez nájemníků
KOMPLEXNĚ RENOVOVANÉ A MODERNIZOVANÉ VNITŘNÍ PROSTORY
• Všechny místnosti a chodby nově omítnuté a natřené
-> Místnosti s hladkým omítáním
-> Chodba s drsným omítáním
• Nové energeticky úsporné radiátory
• Elektronicky řízené radiátory
• Nová WC v koupelnách či sprchách
• Nové umyvadla a armatury v koupelnách či sprchách
• Nová koupelnová zrcadla s LED osvětlením a proti zamlžení
• Obnova sprchy v přízemí – bez prahů a s kvalitními armaturami
• Nové dveře
• Nové parapety
• Částečně nová okna
• Obnovené zásuvky a vypínače
• Kvalitná parketová podlaha – zrenovovaná a impregnovaná
• Podlahové vytápění ve sprchách a koupelnách
RENOVACE A MODERNIZACE VENKOVNÍCH PROSTORŮ
• Nové dveře a okna (dvojitá zateplená skla)
-> Např. v kotelně
-> V klenbovém sklepě
• Obnova vstupních dveří
• Renovace a částečná obnova balkónu
• Renovace a částečná obnova teras
BYTOVÁ KULTURA
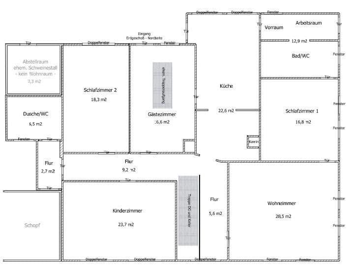
Dva oddělené byty s celkovou rozlohou 263 m² prostorných, světlých a vzdušných obytných prostor:
• 4 koupelny či sprchové kouty (dvě na byt)
-> S podlahovým vytápěním a radiátory
• 10 místností
• Prostorná kuchyně v přízemí s historickým kamenným kamenem
• V obývacím pokoji v horním patře kamín na dřevo (švédský typ)
-> Oba kameny byly 13. 6. 2025 schváleny a potvrzeny
• Všechna okna a skleněné dveře s dvojitým izolovaným zasklením
• Okna s roletami (částečně elektrickými) nebo s okenicemi
• Kvalitní parket v několika obytných místnostech
• Údržbě odolné kamenné podlahy ve vstupní hale a chodbách
• Dlaždice v koupelnách
• Laminát v hostinských a dětských pokojích
POVOLENÍ A KOMFORT
• Videa interkomová vstupní koncová jednotka pro dům pro dvě rodiny
• Řada dveří a oken s elektricky ovládanými roletami
• Osvětlení v domě a kolem domu s pohybovými senzory
• WLAN pokrytí po celém domě a přilehlém okolí
• Příjem televizního signálu přes WLAN
• Dálkové ovládání garážových vrat
• Elektronické regulátory a řízení jednotlivých radiátorů
-> Možnost individuálního nastavení teploty a času u každého radiátoru
• Dodávka vody ze studny – voda je zdarma
INVESTICE DO BUDOUCNOSTI
• Cenný stromový porost – ořechy, kaštany, dřevo k hospodářskému využití!!
-> Dřevo pro oba kameny je k dispozici v nadbytku – zdarma!
• Dálkově ovládaná sekačka
ENERGETICKÁ TECHNIKA A EFFICIENCE
• Energetický štítek s hodnocením C
• 9 kV fotovoltaická elektrárna – instalována v roce 2015
• Moderní ropné topení – instalováno v červenci 2017
-> Každé zvlášť spínatelné – topení odděleně od teplé vody
• Nové efektivní radiátory
-> Elektronické regulátory s individuálním nastavením u každého radiátoru
• Navíc dřevěné/tuhé palivo pro topení v každém bytě (schváleno 13. 6. 2025)
• Zdarma dřevo z vlastního lesa
BEZ REALITNÍHO AGENTA
Ušetříte si poplatky realitním agentům či zprostředkovatelům, které mohou činit přes 20 000 eur, jelikož se prodej organizuje soukromě.
NOVÝ NÁVSTUP PO RENOVACI
OKAMŽITĚ K DISPOZICI
Nabízená nemovitost je připravená k nastěhování a bez nájemníků, takže po vyřízení formalit se můžete ihned nastěhovat.
POŽADAVKY A KONTAKT S REALITNÍMI AGENTY NENÍ VÍTÁNY
--------------------------------------------------
Tento překlad zachovává původní strukturu i obsah textu s důrazem na zachování sdělení a klíčových informací.
Parametry nemovitosti
| Stáří | Nad 50 let |
|---|---|
| Číslo inzerátu | 965243 |
| Užitná plocha | 263 m² |
| Celkem podlaží | 2 |
| Stav | Po rekonstrukci |
|---|---|
| PENB | C - Úsporná |
| Plocha pozemku | 17 301 m² |
| Cena za jednotku | 2 049 € / m2 |
Co tato nemovitost nabízí?
| Balkón | |
| Garáž | |
| Parkování | |
| Terasa |
| Sklep | |
| MHD 6 minut pěšky |
V okolí nemovitosti najdete
Stále hledáte to pravé?
Nastavte si hlídacího psa. Nabídky vybrané na míru dostanete souhrnně 1× denně e-mailem. S Premium profilem máte k ruce hlídačů rovnou 5 a když se něco objeví, informují vás obratem.




















































