Prodej domu • 215 m² bez realitkySmiřických, Náchod - Náchod, Královéhradecký kraj
Smiřických, Náchod - Náchod, Královéhradecký krajČástečně vybaveno • ParkováníTato nemovitost již od 30 448 Kč měsíčně s roční úrokovou sazbou od 4,29 %.
Rodinný dům s investičním potenciálem v centru Náchoda.
Nabízíme k prodeji rodinný dům situovaný ve vilové čtvrti na zámeckém kopci v Náchodě. Nachází se v klidné odbočce ulice Smiřických, přesto je centrum města vzdáleno pouhých 5 minut chůze. Ideální kombinace klidu a skvělé městské dostupnosti.
Klíčové parametry a dispozice
• Celková plocha pozemku: 430 m²
• Terasovitá zahrada o rozloze 315 m² poskytuje soukromí a prostor pro relaxaci
• Soukromé parkovací stání pro 3 automobily přímo před domem
• Potenciál 3 bytových jednotek. Současná dispozice je ideální pro velkou rodinu, mezigenerační bydlení nebo kombinaci bydlení a pronájmu
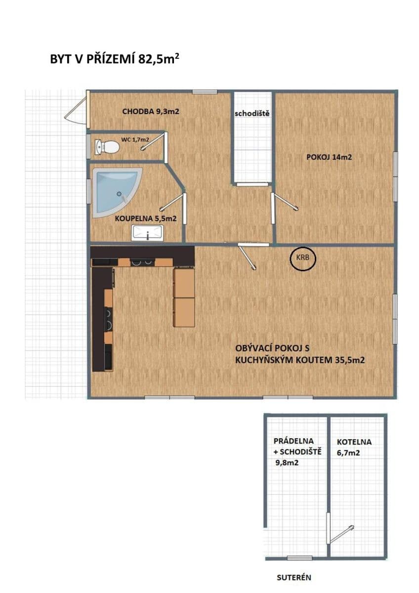
o Přízemí: 2+kk 82,5 m² s prádelnou a kotelnou, po rekonstrukci v roce 2021
o Suterén: 2+1 58,3 m² se samostatným vchodem
o Půdní prostor: 74 m² se započatou rekonstrukcí (střešní krytina Bramac, částečná nadkrokevní izolace, nová okna, elektroinstalace a vyvložkovaný komín). Tento prostor je připraven k dokončení jako další samostatná bytová jednotka nebo k velkorysému rozšíření bytu v přízemí.
Technické vybavení
• Kombinované vytápění: horkovod doplněný o krbová kamna s výměníkem napojeným na radiátory. Na zahradě je přístřešek na dřevo.
• Internet: Vysokorychlostní připojení realizované optickým vláknem (včetně TV), zajišťující bezproblémovou práci z domova i zábavu.
Město Náchod má veškerou občanskou vybavenost i nádherné okolí. Z oken domu je vidět na Dobrošov a rozlehlé louky kolem. Zámecký park, alej s oborou a les jsou takřka za domem. Autem jste v Hradci Králové za 35 minut.
Bonus pro kupujícího: K dispozici je projekt se stavebním povolením (nutno prodloužit) pro výstavbu garážového stání se sklepem, saunou a dílnou. Dále dodáme i původní stavební dokumentaci k rodinnému domu.
Cena: 7.700.000,- Kč
Pro více informací a sjednání prohlídky mě neváhejte kontaktovat:
Čejp Stanislav – tel. 603 904633, scejp@post.cz
Děkuji, že realitní kanceláře nevolají.
Parametry nemovitosti
| Dostupné od | 15. 11. 2025 |
|---|---|
| Konstrukce budovy | Cihla |
| Vybaveno | Částečně |
| Vlastnictví | Osobní |
| Poloha domu | Samostatný |
| Plocha pozemku | 430 m² |
| Cena za jednotku | 35 814 Kč / m2 |
| Stav | Dobrý |
|---|---|
| Dispozice | Ostatní |
| Číslo inzerátu | 965374 |
| PENB | D - Méně úsporná |
| Užitná plocha | 215 m² |
| Rizika | Prověřit » |
Co tato nemovitost nabízí?
| Parkování |
V okolí nemovitosti najdete
Tato nemovitost již od 30 448 Kč měsíčně s roční úrokovou sazbou od 4,29 %.
Stále hledáte to pravé?
Nastavte si hlídacího psa. Nabídky vybrané na míru dostanete souhrnně 1× denně e-mailem. S Premium profilem máte k ruce hlídačů rovnou 5 a když se něco objeví, informují vás obratem.



















