
Prodej bytu 3+kk • 78 m² bez realitkyVymazalova, Brno - Židenice, Jihomoravský kraj
Vymazalova, Brno - Židenice, Jihomoravský krajVybaveno • Balkón 3,3 m² • Sklep 3,7 m²Využít program Bydlím hned, koupím později
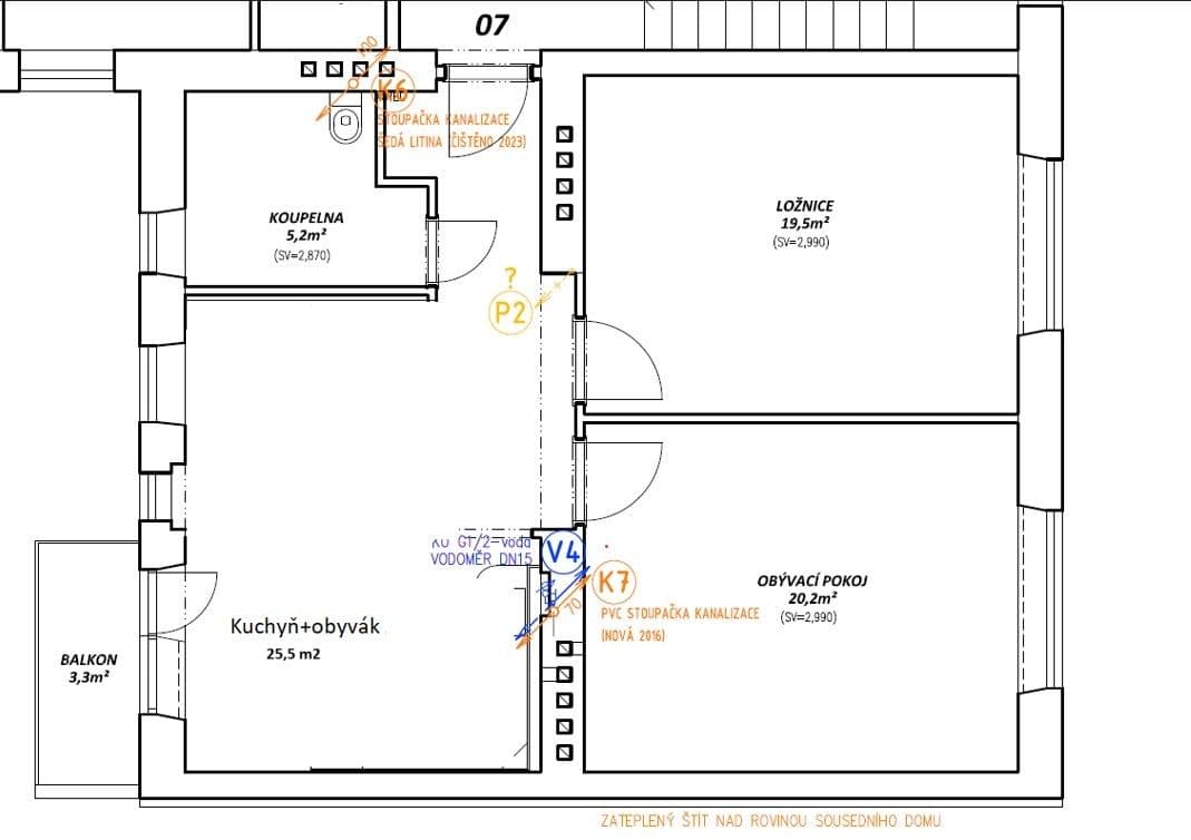
Nabízím k prodeji byt 3+kk byt 78 m2 s čistou podlahovou plochou bez příček 74 m² + 3,3 m² balkon, který se nachází v 3. poschodí cihlového bytového domu. Prošel před 6 lety kompletní rekonstrukcí včetně dispoziční úpravy tak, aby vyhovoval moderním trendům. Zachovány jsou vysoké stropy. Je vybaven klimatizací a koupelna podlahovým vytápěním. Byt se skládá z následujících dispozic:
✓ zádveří\chodba s úložnými prostory (3 m²)
✓ obývací pokoj s kuchyňským koutem (25,65 m²)
✓ ložnice (20,5 m²)
✓ pokoj (19,25 m²)
✓ koupelna s toaletou (5,6 m²)
+
✓balkon (3,3 m²)
✓ sklepní kóje (3,7 m²)
K bytu náleží podíl na společných prostorech. Nadstandardní je rozlehlá kolárna a příjemným bonusem pak společná dílna. Vše zabezpečeno alarm. systémy. Velmi útulná je i zahrádka vnitrobloku se společenským posezením. Velkou výhodou jsou oddělená měřidla energií a vody. Prostor je vytápěný novým plynovým kondenzačním kotlem. Byt je celkově velmi prosvětlený. Pokoje jsou orientovány na severozápad. Obývák s kuchyní a balkonem je orientován na jihovýchod. Balkon poskytuje krásný výhled do vnitrobloku a na nedalekou Bílou horu.
Lokalita je klidná a disponuje skvělou občanskou vybaveností. V bezprostředním okolí naleznete park Karáskovo náměstí, poštu, příjemné kavárny, restaurace, supermarkety Albert či Kaufland a dále také školy, školky, lékaře a nemocnici. Zastávka MHD Kuldova a Buzkova je jen pár minut pěšky, což zajišťuje pohodlnou dostupnost do centra do 12 minut.
Přilehlé náměstí poskytuje dostatek místa pro pohodlné parkování.
V domě je dobře fungující SVJ. (Všechny byty v domě jsou využívány přímo vlastníky, není zde Airbnb). Správa domu je řešena externí společností.
Nastavené zálohy 4400 Kč odpovídají potřebám 5. členné rodiny. (elektřina 1700, plyn 1500, voda 850, Internet 320).
Kuchyňská linka na míru. Byt bude připraven k předání dle požadavků zájemce (co bude chtít, může v bytě zůstat).
Dům je hodnocen štítkem D.
Here is the English translation:
I am offering for sale a 3+kk apartment with an area of 74 m², located on the 3rd floor of a brick residential building. It underwent a complete renovation 6 years ago, including a layout adjustment to accommodate modern trends. The high ceilings have been preserved. It is equipped with air conditioning and the bathroom features underfloor heating. The apartment consists of the following layout:
✓ Entry hall/corridor with storage spaces (2.8 m²)
✓ Living room with kitchenette (22.7 m²)
✓ Bedroom (20.2 m²)
✓ Room (19.5 m²)
✓ Bathroom with toilet (5.2 m²)
✓ Balcony (3.3 m²)
+
✓ Basement storage (3.7 m²)
The apartment includes a share in the common areas. An outstanding feature is the spacious bicycle storage and, as a pleasant bonus, a communal workshop. Everything is secured by an alarm system. There is also a very cozy inner courtyard garden with an outdoor seating area. A major advantage is the separate energy and water meters. The space is heated by a new gas condensing boiler. The apartment is overall very bright. The rooms face northwest, while the living room with the kitchen and balcony faces southeast. The balcony offers beautiful views of the inner courtyard and the nearby Bílá hora.
The location is peaceful and has excellent community amenities. In the immediate vicinity you will find Karásková Square Park, a post office, cosy cafés, restaurants, supermarkets (Albert and Kaufland), as well as schools, kindergartens, doctors, and a hospital. The Kuldova and Buzkova public transport stops are only a few minutes' walk away, ensuring convenient access to the city center in about 12 minutes. The adjacent square provides ample space for convenient parking.
The building has a well-functioning homeowners’ association. The management of the building is handled by an external company.
The set deposits of 4400 CZK correspond to the needs of a 5-member family (electricity 1700, gas 1500, water 850, Internet 320).
A custom-made kitchen and all the interior furnishings of the apartment, including storage spaces, are included in the offered price.
The building is rated with a D energy label.
Parametry nemovitosti
| Dostupné od | 1. 2. 2026 |
|---|---|
| Konstrukce budovy | Cihla |
| Vybaveno | Vybaveno |
| Číslo inzerátu | 965868 |
| PENB | D - Méně úsporná |
| Umístění | Klidná část |
| Rizika | Prověřit » |
| Stav | Dobrý |
|---|---|
| Dispozice | 3+kk |
| Podlaží | 3. podlaží z 5 |
| Vlastnictví | Osobní |
| Rekonstrukce | Kompletní |
| Užitná plocha | 78 m² |
| Cena za jednotku | 108 974 Kč / m2 |
Co tato nemovitost nabízí?
| Balkón 3,3 m² | |
| Sklep 3,7 m² |
V okolí nemovitosti najdete
Využít program Bydlím hned, koupím později

Prodej bytuPonětovická, Kobylnice - Kobylnice u Brna, Jihomoravský kraj- 3+kk
- 70 m²
7 490 000 Kč8 100 000 Kč
Ušetříte 610 000 Kč



Stále hledáte to pravé?
Nastavte si hlídacího psa. Nabídky vybrané na míru dostanete souhrnně 1× denně e-mailem. S Premium profilem máte k ruce hlídačů rovnou 5 a když se něco objeví, informují vás obratem.



















