Pronájem bytu 3+1 • 90 m² bez realitkyTegernbach Tegernbach Bayern 84104
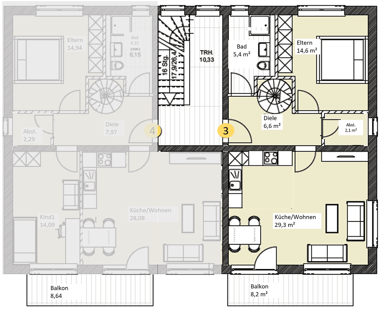
Tegernbach Tegernbach Bayern 84104MHD 1 minuta pěšky • Parkování • GarážTato atraktivní nemovitost je maisonette bytem v prvním patře čtyřdomového domu postaveného v roce 2020. Kvalitně zařízená nemovitost je tedy téměř nová. Při vstupu do bytu se vám otevře velká obytná jídelna s kuchyní, úložný prostor, jedna ložnice a koupelna – úzkým schodištěm se dostanete do podkroví, kde se nachází další ložnice a velká galerie, kterou lze využít jako kancelář. Dále zde najdete velký úložný prostor, který poskytuje dostatek místa navíc. Zvláštní pozornost si zaslouží velký jižně-západní balkon.
Vybavení na vysoké úrovni:
- Vytápění pomocí výkonných vzduchových tepelných čerpadel
- Nízké náklady na energii díky nadprůměrnému tepelnému a zvukovému izolačnímu provedení
- Podlahové vytápění s nízkou teplotou s individuálně nastavitelnými pokojovými termostaty v celém objektu
- Zařízení na změkčení vody pro celý dům – potěšení pro pokožku, vlasy, prádlo i spotřebiče
- Stanice čerstvé vody v každém bytě
- Energeticky efektivní větrání obytných prostor s rekuperací tepla
- Velmi světlé místnosti díky velkým okenním plochám se trojitým zasklením a elektrickými rolety
- Mediální přípojky v obytném prostoru a ve všech ložnicích
- Optická vlákna s možností připojení až na 1000 Mbit
- Satelitní přijímač
- Koupelny a chodby vybavené kvalitními LED stropními svítidly
- Součástí je také velká sklepní místnost
- Prostorné balkony o rozloze přes 8 m²
- Velká společná zahrada
- Velká společná prádelna s možností umístění pračky a sušičky ve zvýšené poloze
- Parkovací stání a garáže jsou vybaveny Wallboxy
Volitelně:
Vestavěná kuchyň 60 €/měsíc
Venkovní parkovací stání 20 €/měsíc
Dvojgaráž – 50 €/měsíc za parkovací místo
Idylicky a klidně situovaný Tegernbach patří k obci Rudelzhausen, která se nachází v severním okrese Freising.
Obec má celkem přibližně 3500 obyvatel, z čehož Tegernbach tvoří asi 850.
V Tegernbachu se nachází obecní mateřská škola, venkovní bazén, pekárna, řeznictví, obchod s nápoji, restaurace, pošta a pro sportovce je zde fotbalový klub, tenisový klub a také golfové hřiště Holledau, které patří mezi atrakce Tegernbachu. Okolní cyklistické a turistické stezky nabízejí mnoho možností pro volnočasové aktivity.
Základní škola se nachází v sousední obci Rudelzhausen. Další školy, lékaři, lékárny a nemocnice (Mainburg/Freising) jsou dostupné v bezprostředním okolí.
Velmi centrálně situováno mezi Mnichovem, Landshutem, Regensburkem a Ingolstadtem – všechny města jsou autem dostupné do přibližně 35 minut, stejně jako mnichovské letiště.
Tři autobusové linky MVV spojují Tegernbach s Mainburgem, Freisingem a Moosburgem. Z Freisingu a Moosburgu je možné přestoupit na S-Bahn nebo vlaky.
Čtyři dálnicové výjezdy jsou dosažitelné za přibližně 15 minut – A9 výjezd Schweitenkirchen/Pfaffenhofen, A93 výjezd Wolnzach, Mainburg a také Elsendorf.
V případě zájmu zašlete prosím výstižnou žádost/krátký životopis včetně sebeuvědomění. Až po doručení vašich podkladů může být domluven termín prohlídky.
V okolí nemovitosti najdete
Stále hledáte to pravé?
Nastavte si hlídacího psa. Nabídky vybrané na míru dostanete souhrnně 1× denně e-mailem. S Premium profilem máte k ruce hlídačů rovnou 5 a když se něco objeví, informují vás obratem.







