Prodej domu 4+1 • 186 m² bez realitkyGrünau im Almtal Grünau im Almtal Oberösterreich 4645
Grünau im Almtal Grünau im Almtal Oberösterreich 4645MHD 2 minuty pěšky • ParkováníŽádní makléři!!! Žádní zprostředkovatelé!!!
Na prodej je vysoce kvalitně vybavený rodinný dům postavený metodou dřevěné rámečkové konstrukce z masivního dřeva, realizovaný renomovanou dílnou Holzbau Bammer ve Scharnsteinu. Dům spojuje přírodní materiály, nejmodernější komfort bydlení a promyšlené dispoziční uspořádání – zasazený do okouzlující kulisy údolí Alm.
Nemovitost byla dokončena v roce 2019 s velkou péčí o každý detail. Veškerý nábytek a interiérové dveře jsou zakázkově vyrobené truhlářské práce z dubu s výraznými přírodními uzly, v kombinaci s elegantní dubovou parketovou podlahou ve všech obytných prostorách. Efektivní vzduchové tepelné čerpadlo a kvalitní kamnový sporák zajišťují útulné klima po celý rok.
Kromě toho je k dispozici prostorný carport se stylovým obložením z modřínu – ideální pro dvě vozidla a s dodatečným úložným prostorem.
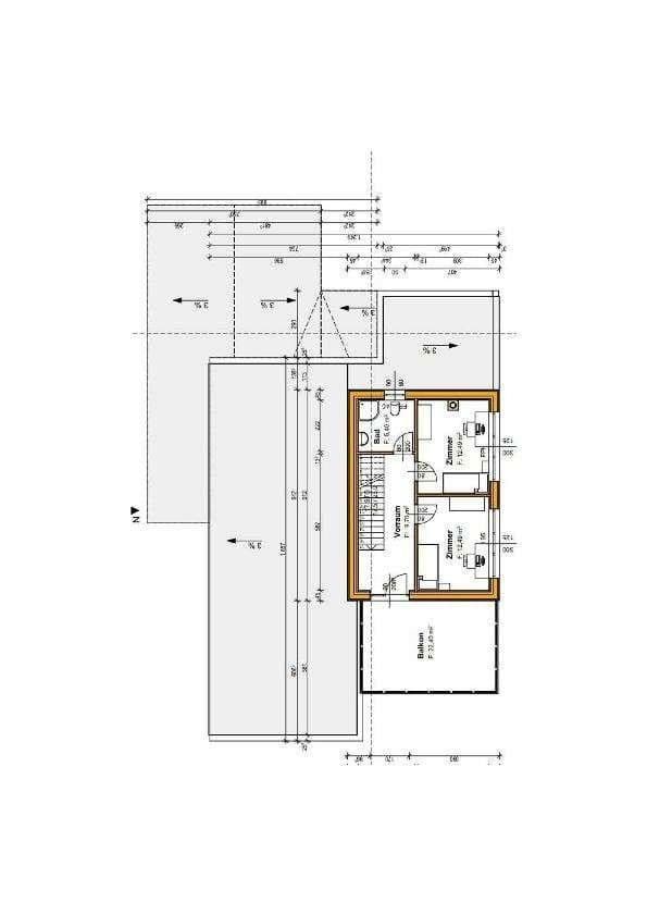
Rozložení místností:
Přízemí:
• Reprezentativní vstupní hala
• Samostatná toaleta
• Technická místnost
• Ložnice s prostornou šatní skříní (walk-in closet)
• Prostorná koupelna se sprchou a vanou
• Další pokoj (aktuálně využívaný jako dětský pokoj)
• Velká otevřená kuchyň spojená s jídelnou
• Obývací pokoj, který lze oddělit posuvnými dveřmi
Patro:
• Dva další pokoje
• Druhá koupelna
• Balkon s nádherným výhledem
Vnější prostory:
Pečlivě upravená zahrada s terasou nabízí dokonalý odpočinek, dostatek prostoru pro rodinu a volnost pro individuální návrhy. Carport se stylovým obložením z modřínu se dokonale začlení do přírodní architektury domu a chrání vaše vozidla.
Zvláštní přednosti:
• Přírodní dřevěná rámečková konstrukce
• Zakázkově vyrobený truhlářský nábytek a dveře z dubu
• Dvě koupelny
• Kamnový sporák + vzduchové tepelné čerpadlo
• Prostorný carport se stylovým obložením z modřínu
• Balkon a zahrada
• Okamžitě k nastěhování – žádný stavební stres!
• Nastěhujte se a užívejte si – tento dům je připraven, aby vám poskytl pocit domova!
Energetický štít (certifikát) může být poskytnut na vyžádání!
V případě zájmu prosím kontaktujte na čísle +436601569020
Dům se nachází v Grünau im Almtal, jedné z nejkrásnějších a nejvíce přírodními krásami obdělávaných obcí Horního Rakouska, zasazené do impozantní horské kulisy Alm. Lokalita kombinuje klid, soukromí a vysokou kvalitu života – ideální pro rodiny, milovníky přírody a všechny, kteří si cení uvolněného a harmonického obytného prostředí.
Infrastruktura je vynikající: mateřská škola, základní škola, místní obchody a gastronomie jsou v obci snadno dostupné. Okresní město Kirchdorf an der Krems se nachází jen několik minut jízdy a nabízí široké možnosti nakupování, lékaře, školy a železniční spojení.
Region je známý svými rozmanitými volnočasovými možnostmi: turistika, lyžování, koupání u Almsee, cyklistika nebo pozorování přírody v Cumberland Wildparku. Tenisové hřiště v Grünau, sportovní vyžití a četná spolky přispívají k živému společenskému životu obce.
Díky výbornému dopravnímu spojení lze během přiměřeného času dosáhnout měst Wels, Gmunden i Linz – ideální pro dojíždějící, kteří zároveň chtějí žít v přírodním prostředí.
Vysoce kvalitní truhlářské provedení v celém domě – zakázkově vyrobený vestavěný nábytek, promyšlená řešení úložných prostor a prvotřídní zpracování dřeva vytvářejí moderní a útulnou atmosféru bydlení.
V okolí nemovitosti najdete
Stále hledáte to pravé?
Nastavte si hlídacího psa. Nabídky vybrané na míru dostanete souhrnně 1× denně e-mailem. S Premium profilem máte k ruce hlídačů rovnou 5 a když se něco objeví, informují vás obratem.


















