Prodej bytu 3+1 • 70 m² bez realitkyHäfen - Bremerhaven Geestendorf Bremen 27570
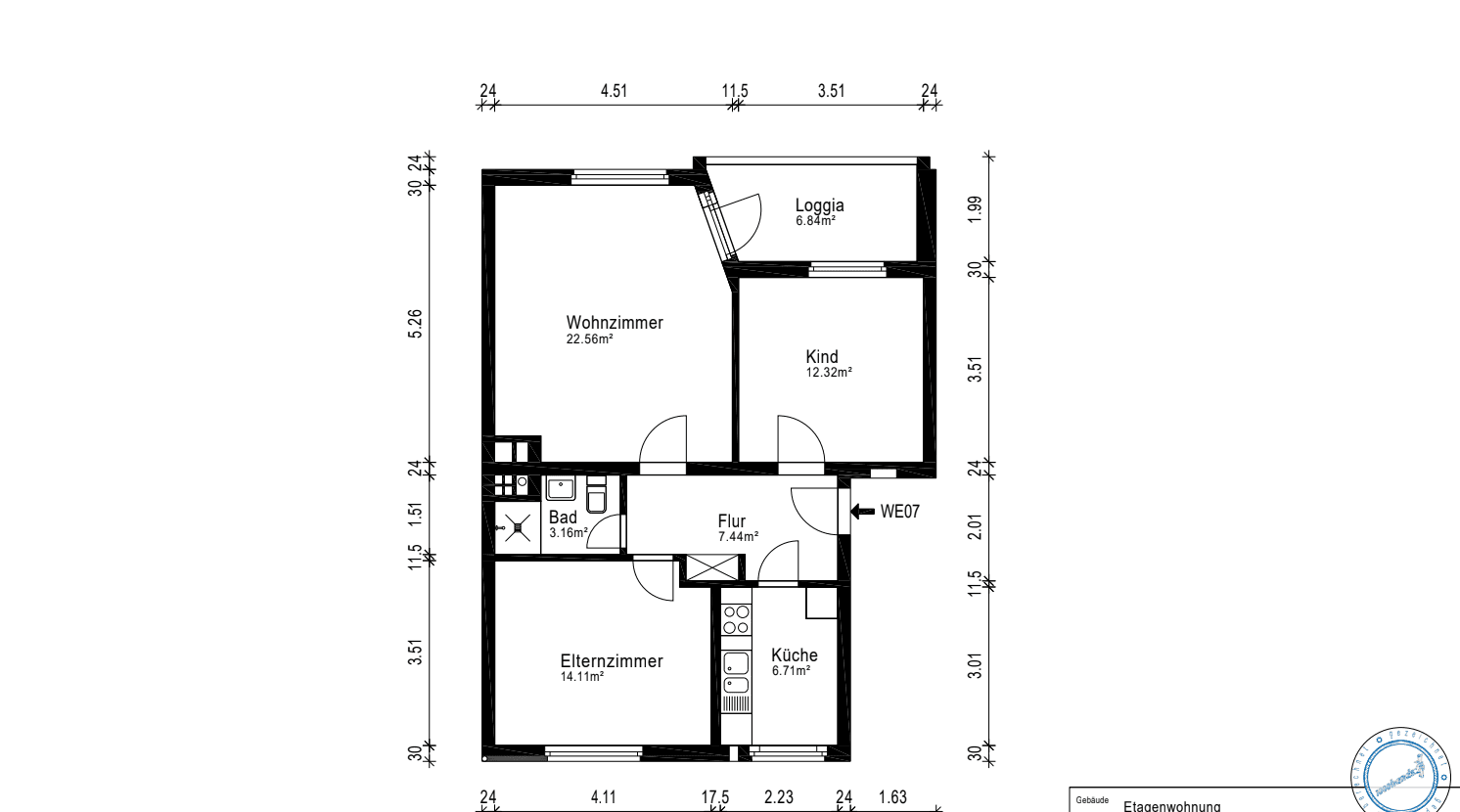
Světlý byt s 3 pokoji se nachází ve 3. patře vlevo v upraveném činžovním domě a nabízí obytnou plochu přibližně 69 m². Dispozice je klasická a efektivní: prostorný obývací pokoj, ložnice, pokoj pro děti/nebo pracovni pokoj, samostatná kuchyně, koupelna a krásná velká lodžie – ideální pro singles, páry nebo malou rodinu. Bytu náleží sklep a velké podkrovní úložiště. Dům celkem zahrnuje 8 obytných jednotek.
Nemovitost se nachází v ulici Kehdinger v oblíbené čtvrti Geestemünde v Bremerhavenu. Poloha se vyznačuje centrální a zároveň klidnou obytnou atmosférou. Dřevěný přístav, kostel i trzímístní tržiště jsou přímo za rohem.
Geestemünde nabízí vynikající infrastrukturu a dopravní napojení. Byt je umístěn centrálně mezi centrem Bremerhavenu a Bürgerparkem.
Infrastruktura a napojení:
Veřejná doprava: Hlavní nádraží Bremerhavenu je dosažitelné přibližně pěti minut chůze, což zajišťuje vynikající napojení zejména pro dojíždějící.
Individuální doprava: Dálnice A27 je dosažitelná přibližně pěti minut autem.
Občanská vybavenost: Všechny zařízení denní potřeby, jako jsou obchody, lékaři a lékárny, jsou dosažitelné pěšky.
Kombinace blízkosti k důležitým dopravním uzlům a pěší dostupnosti centra činí tuto lokalitu obyvatelům velmi atraktivní.
3-pokojový byt ve 3. patře nabízí funkční a osvědčené vybavení, které bylo nedávno kompletně zrekonstruováno:
- Kompletní elektroinstalace 2025
- Nová koupelna 2025
- Nová podlaha a stěny – čerstvě zrekonstruováno 2025
První nástup po rekonstrukci.
K bytu náleží také velké podkrovní úložiště a sklep.
Kuchyně a nábytek nejsou součástí kupní ceny.
V okolí nemovitosti najdete
Stále hledáte to pravé?
Nastavte si hlídacího psa. Nabídky vybrané na míru dostanete souhrnně 1× denně e-mailem. S Premium profilem máte k ruce hlídačů rovnou 5 a když se něco objeví, informují vás obratem.











