Pronájem bytu 4+1 • 139 m² bez realitkyGartenstraße 15, , Šlesvicko-Holštýnsko
Gartenstraße 15, , Šlesvicko-HolštýnskoMHD 3 minuty pěškyDiese 5-Zimmer-Wohnung liegt im Hochparterre eines charmanten Mehrfamilienhauses aus dem Jahr 1964.
Tento 5-pokojový byt se nachází v horním polovičním přízemí půvabného mnohostanového domu z roku 1964.
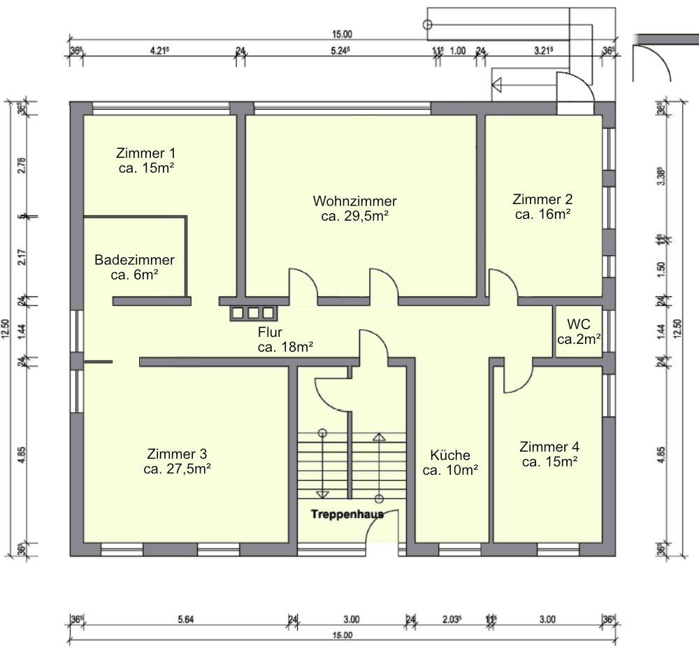
Insgesamt bietet die Wohnung eine Wohnfläche von ca. 139 m². Der Grundriss ist praktisch und gut durchdacht: Vom Flur aus erreichen Sie das geräumige Wohnzimmer, vier weitere Zimmer, die Küche, das Badezimmer sowie ein separates WC.
Celkově byt nabízí obytnou plochu přibližně 139 m². Půdorys je praktický a dobře promyšlený: Z předsíně se dostanete do prostorného obývacího pokoje, čtyř dalších místností, kuchyně, koupelny a samostatného WC.
Die Räume sind hell und großzügig geschnitten. Die Wohnung eignet sich gut für Familien oder Paare, die viel Platz und eine klare Raumaufteilung wünschen.
Místnosti jsou světlé a prostorně řešené. Byt je velmi vhodný pro rodiny či páry, které potřebují dostatek prostoru a jasné členění.
Das Wohnhaus liegt zentral in absoluter Toplage von Bad Segeberg. Von der sehr ruhig gelegenen Gartenstraße, ist es nur einen Katzensprung in die belebte Fußgängerzone mit abwechslungsreicher Gastronomie und umfangreichen Einkaufsmöglichkeiten.
Dům se nachází centrálně v naprosto špičkové lokalitě města Bad Segeberg. Z velmi klidné Gartenstraße je to jen kousek pěšky do rušné pěší zóny s pestrou nabídkou gastronomických provozoven a rozsáhlými možnostmi nákupů.
So lässt sich die Kurhausstraße zu Fuß in weniger als 5 Minuten, die beliebte Kirchstraße bzw. der Wochenmarkt in unter 10 Minuten erreichen.
Kurhausstraße je dosažitelná pěšky za méně než 5 minut, oblíbená Kirchstraße či týdenní trh pak za méně než 10 minut.
Ebenfalls in fußläufiger Nähe befinden sich verschiedene Ärzte, die Segeberger Kliniken sowie verschiedene Schulen und Kindergärten.
Také v docházkové vzdálenosti se nachází různí lékaři, nemocnice Segeberger Kliniken a různé školy a mateřské školy.
Der nur wenige Minuten entfernte große Segeberger See lädt zu Spaziergängen ein und verfügt über einen Tretbootverleih, ein Freibad und einen eigenen Segelklub.
Velké Segeberger jezero, vzdálené jen několik minut, láká k procházkám a nabízí půjčovnu pedálových člunů, venkovní bazén a vlastní jachtařský klub.
Bad Segeberg ist mit seinen über 16.000 Einwohnern die drittgrößte Stadt des Kreises Segeberg.
Bad Segeberg, se svými více než 16 000 obyvateli, je třetím největším městem okresu Segeberg.
Sie liegt bei hervorragender Autobahnanbindung im Dreieck zwischen Kiel (A21), Lübeck (A20) und Hamburg (A21).
Nachází se ve výborném spojení s dálnicemi, v trojúhelníku mezi Kiel (A21), Lübeck (A20) a Hamburkem (A21).
Nach Neumünster gelangt man mit dem Auto in einer halben Stunde über die B 205.
Do Neumünster se autem dostanete za půl hodiny po silnici B205.
Über Bad Oldesloe lassen sich Hamburg und Lübeck bequem und schnell per Bahn erreichen.
Přes Bad Oldesloe je pak Hamburk a Lübeck dostupný pohodlně a rychle vlakem.
Die Bahnanbindung nach Neumünster erfolgt sogar ohne Umsteigen.
Vlakové spojení do Neumünsteru navíc probíhá bez přestupů.
Aber nicht nur die Lage macht Bad Segeberg so attraktiv.
Avšak není to jen lokalita, která činí Bad Segeberg tak atraktivním.
Über die Stadtgrenzen hinaus ist Bad Segeberg bekannt für die jährlich stattfindenden Karl-May-Festspiele am 91 Meter hohen Kalkberg.
Mimo městské hranice je Bad Segeberg známý každoročními Karl-May-Festspielen na 91 metrovém vápenatém kopci.
Besucher wie Bewohner können sich neben den guten Einkaufsmöglichkeiten zudem an einem umfangreichen Kultur- und Freizeitangebot erfreuen.
Návštěvníci i obyvatelé se mohou kromě skvělých nákupních možností těšit také z rozsáhlé nabídky kulturních a volnočasových aktivit.
Die Fledermaus Erlebnisausstellung, das Museum Alt-Segeberger Bürgerhaus, Kalkberghöhlen und Marienkirche sind nur einige zu nennende Beispiele.
Mezi jen některé příklady patří výstava Fledermaus Erlebnisausstellung, muzeum Alt-Segeberger Bürgerhaus, vápenaté jeskyně Kalkberghöhlen a kostel Marienkirche.
Über das Jahr verteilt finden verschiedene Feste und Aktivitäten statt: etwa der Segeberger Kultursommer oder die sommerlichen Konzerte in der Freilichtbühne.
Během roku se koná řada festivalů a akcí, například Segeberger Kultursommer nebo letní koncerty v amfiteátru pod širým nebem.
Die deutschlandweit bekannte Möbel-Kraft AG hat hier ebenso ihren Hauptsitz, wie die Kassenärztliche Vereinigung und die Ärztekammer Schleswig-Holsteins.
Celostátně známá společnost Möbel-Kraft AG zde má své sídlo, stejně jako Sdružení lékařů a Lékařská komora Šlesvicko-holštýnska.
Die Stadt verfügt über verschiedene Schulen inkl. einer Volkshochschule.
Město disponuje řadou škol, včetně lidové vysoké školy.
Die Wohnung ist insgesamt in einem guten Zustand.
Byt je celkově ve velmi dobrém stavu.
Die Wände sind weiß gestrichen und die Böden bestehen überwiegend aus pflegeleichtem Laminat.
Stěny jsou natřeny bílou barvou a podlahy jsou převážně z lehce udržovatelného laminátu.
In der Küche und im Bad sind Fliesen verlegt.
V kuchyni a koupelně jsou pokládané dlaždice.
Die Küche ist komfortabel über den Flur zu erreichen.
Kuchyně je pohodlně přístupná přes předsíň.
Große Fenster sorgen für viel Tageslicht.
Velká okna zajišťují spoustu denního světla.
Die Heizungsanlage und Warmwasseranlage des Hauses wurde erst 2025 erneuert.
Topenářský systém a zařízení na ohřev vody v domě byly obnoveny až v roce 2025.
Die Wohnung ist aktuell noch an einen Pflegedienst vermietet und kann frühestens ab dem 01.01.2026 übernommen werden.
Byt je momentálně ještě pronajatý ošetřovatelské službě a může být převeden nejdříve od 1. ledna 2026.
Das vorhandene Badezimmer wird vor Einzug noch saniert und eine vollständig neue Küche eingebaut - im auf dem Grundriss eingezeichneten Raum (Küche 10m²).
Stávající koupelna bude před nastěhováním zrekonstruována a v místnosti vyznačené v půdorysu (kuchyně o rozloze 10 m²) bude instalována zcela nová kuchyň.
Die auf den Bildern abgebildete Küche ist nur eine provisorische "Büroküche" des aktuellen Mieters.
Kuchyně zobrazená na fotografiích je pouze dočasná "kancelářská kuchyň" současného nájemce.
Die Mindestmietdauer beträgt 12 Monate.
Minimální doba pronájmu je 12 měsíců.
Bei Fragen und zur Terminvereinbarung kommen Sie jederzeit gerne auf uns zu.
V případě dotazů či zájmu o domluvení termínu nás neváhejte kdykoliv kontaktovat.
Gerne können Sie uns bei Ihrer Anfragen die wichtigsten Informationen mit angeben (Einkommen, Anzahl der Bewohner, gewünschter Einzugstermin etc.), damit wir Ihre Anfrage gut bearbeiten können.
Při oslovení uveďte prosím také nejdůležitější informace (příjem, počet obyvatel, požadovaný termín nastěhování atd.), abychom mohli vaši žádost řádně vyřídit.
V okolí nemovitosti najdete
Stále hledáte to pravé?
Nastavte si hlídacího psa. Nabídky vybrané na míru dostanete souhrnně 1× denně e-mailem. S Premium profilem máte k ruce hlídačů rovnou 5 a když se něco objeví, informují vás obratem.









