Prodej bytu 2+1 • 51 m² bez realitkyFaak am See Faak am See Kärnten 9583
Dobře zavedený, turisticky pronajímaný apartmán.
Lze jej převzít jako fungující celek a dále provozovat.
Roční příjmy z nájmu po odečtení poplatků Booking a běžných provozních nákladů: 18.800 €
K dispozici také jako balíček s přímým sousedním bytem (22 m², 2–3 postele, roční příjmy: 14.340 €; pořizovací cena 279.000 €).
Na příští rok (2026) již jsou rezervace v hodnotě 10.600 €, které mohou být rovněž převzaty.
Kdo nemá zájem o turistický pronájem, může apartmán pořídit i jako rekreační nebo vedlejší bydlení. To je díky jeho určení možné. Turistické určení je totiž velmi žádané, neboť v okolí jezera již několik let není k dispozici.
PS:
Je možné také vlastního užívání a pronájem volných období prostřednictvím provozní společnosti nebo dlouhodobý pronájem (klasický investorský byt).
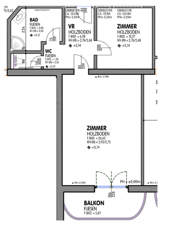
Při koupi obou bytů je bez problémů možná sloučení do bytu o rozloze přibližně 75 m² s dvěma balkony. Jedna koupelna by pak mohla být převedena na další pokoj.
Speciální bonus: koupě přímo od majitele, bez makléřského poplatku (3,6 %).
Nachází se ve Faaku u jezera.
Jižně orientovaný, slunný, světlý, s prostornými místnostmi a dřevěným stropem.
Slunečný balkon. Výhled na hory (Mittagskogel/Karawanken).
5 minut pěšky do přístupu k jezeru.
Kompletně vybavený, čerstvě zrenovovaný apartmán; při rekonstrukci v roce 2025 byla provedena nová kuchyň a instalovány elektrická vedení.
V okolí nemovitosti najdete
Stále hledáte to pravé?
Nastavte si hlídacího psa. Nabídky vybrané na míru dostanete souhrnně 1× denně e-mailem. S Premium profilem máte k ruce hlídačů rovnou 5 a když se něco objeví, informují vás obratem.






















