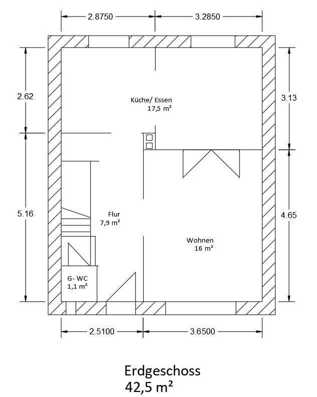
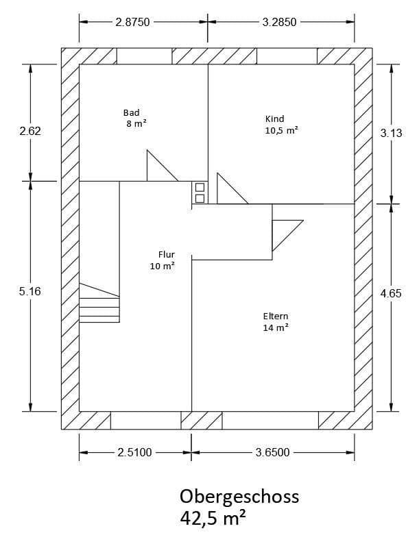
Prodej domu 4+kk • 121 m² bez realitkyBergstraße 37c, , Sasko-Anhaltsko
Dům se nachází uprostřed řadové osady na severu města Stendal. Byl postaven v roce 1958 a disponuje samostatnou garáží, která se nachází na pozemku, a zahrnuje sklep, přízemí, patro a podkroví. Prošel komplexní a kvalitní rekonstrukcí a nabízí moderní obytný komfort na vysoké úrovni.
Koupelna a hostinský záchod byly kompletně zrekonstruovány. Veškeré podlahy v domě byly vyměněny a stěny a dveře byly obnoveny. Parketová podlaha se táhne velkou částí domu, což splňuje nejvyšší nároky na moderní design.
Dům je vytápěn efektivním plynovým centrálním topením. Výrazné zlepšení energetické účinnosti bylo dosaženo zateplením vnějších stěn a podkroví.
Topenářský systém pochází z roku 2007. V roce 2025 byla částečně instalována nová, trojitě zasklená okna a dveře – což je ideální pro tepelnou a zvukovou izolaci. Elektroinstalace byla také v roce 2025 kompletně obnovena.
Terasa nabízí idylický výhled do zeleně a zve k relaxaci. Klidná poloha a kvalitní vybavení činí z tohoto domu ideální domov pro milovníky moderního designu.
Dům se nachází na severu Stendalu, v žádané rezidenční čtvrti (sever), která je výborně napojena na klíčové body města.
Nádraží Stendal Hochschule dosáhnete za přibližně 3 minuty na kole nebo 10 minut pěšky. Díky tomu je napojení na veřejnou dopravu (lokální i dálkovou) rychlé a bezproblémové.
Vzdálenost do Stendal Hochschule je jeden kilometr. Na kole jste na kampusu přibližně za 3 minuty. Tato blízkost ke škole může být výhodná zejména pro vědecký personál nebo zaměstnance vysokých škol.
V bezprostředním okolí se nachází několik obchodních možností. Nejbližší supermarket je vzdálen 400 metrů a je dosažitelný pěšky za zhruba 4 minuty. Na kole pak potřebujete přibližně 2 minuty. Další obchody a zázemí jsou rovněž v blízkém okolí.
Stendalská staré město, které je se svými historickými budovami a možnostmi volnočasových aktivit považováno za kulturní centrum města, leží 1,2 kilometru vzdálené. Tuto vzdálenost zvládnete na kole přibližně za 5 minut.
Pro lékařskou péči se nachází nemocnice 750 metrů daleko, což odpovídá jízdě na kole trvající přibližně 2–3 minuty. V okolí najdete také několik ordinací a lékáren, které jsou rovněž dobře dostupné.
Dojížďající a cestující ocení rychlé napojení na dálnici. Vjezd na budoucí odbočku A 14 Stendal-Nord A3 je vzdálen pouze 10 minut jízdy autem, takže se můžete rychle vydat směrem k Magdeburgu.
Volnočasové a rekreační možnosti nabízejí okolní zelené plochy. Zde máte možnost se projít nebo si odpočinout v klidném prostředí.
Celkově se poloha domu vyznačuje vynikající dostupností důležitých cílů a příjemnou kombinací městské infrastruktury a klidného obytného prostředí.
Lange Immoprojekt GmbH
Hof Eichenweg 14
39576 Stendal
V okolí nemovitosti najdete
Stále hledáte to pravé?
Nastavte si hlídacího psa. Nabídky vybrané na míru dostanete souhrnně 1× denně e-mailem. S Premium profilem máte k ruce hlídačů rovnou 5 a když se něco objeví, informují vás obratem.


































