
Pronájem bytu 2+kk • 82 m² bez realitky, Bádensko-Württembersko
, Bádensko-WürttemberskoMHD do minuty pěšky • VýtahHledáte domov, který spojuje moderní design a příjemnou atmosféru? Tento světlý 2,5-pokojový byt je ideální pro páry nebo pro každého, kdo ocení bydlení se stylem a komfortem!
Vybavení a vlastnosti
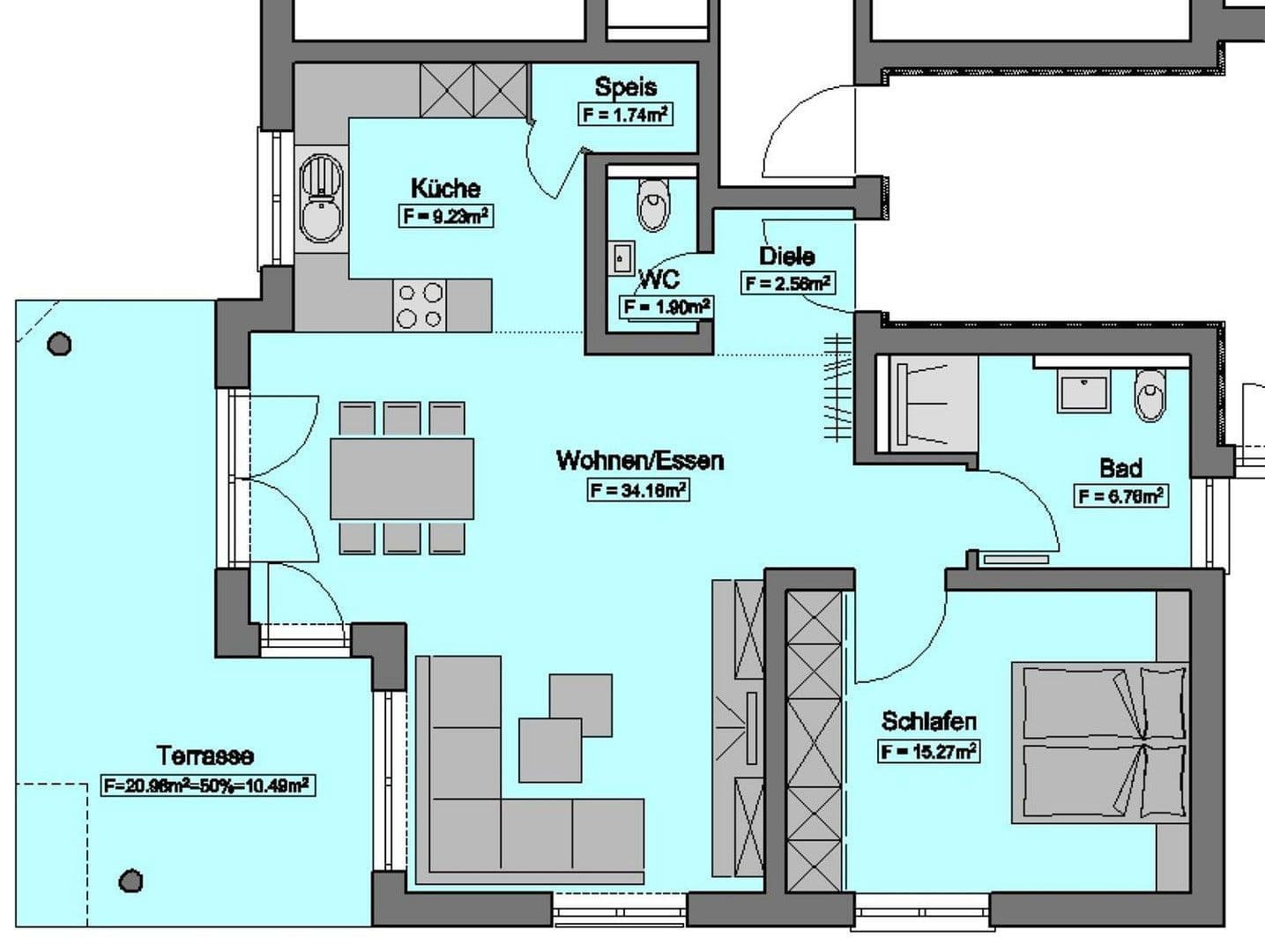
• Otevřený obývací a jídelní kout s přímým přístupem na terasu
• Prostorná kuchyňská část
• Koupelna s denním světlem a sprchou
• Samostatné hostinské WC
• Energeticky úsporné: standard KfW-55 pro nízké náklady na energie
• Podlahové topení: individuálně ovladatelné v každé místnosti
• Vysoce kvalitní materiály: vinylová podlaha, exkluzivní sanitární vybavení
• Síťová přípojka ve všech pokojích
• Parkování: k dispozici je buď parkovací místo, nebo místo v podzemní garáži, které lze také pronajmout.
Parkovací místo = 35 €/měsíc
Místo v podzemní garáži = 55 €/měsíc
Tento úchvatný byt je ihned k nastěhování a čeká, až se stane vaším novým domovem.
Kontaktujte nás pro prohlídku! Těšíme se na váš zájem a rádi vám poskytneme veškeré potřebné informace.
(podle e-mailu nebo také telefonicky)
Kontaktní osoba: pan Kopp 0176 / 2094326 // d.kopp@kopp-haus.de
Nemovitost se nachází v Horb am Neckar. V docházkové vzdálenosti naleznete několik restaurací, pekáren, supermarketů a kaváren. Je zde také nákupní centrum, základní škola a mateřská škola. V blízkém okolí najdete rovněž kvalitní zdravotní péči a různé možnosti pro odpočinek a sport (včetně několika fitness center).
Obec Bildechingen se nachází 3,5 km severovýchodně od Horb am Neckar na jihozápadním okraji horního Gäus, resp. na východním okraji Severního Schwarzwaldu, ve výšce 504 m n. m., a má přibližně 2 200 obyvatel.
• Nadstandardní vybavení
• Stavba provedená nejlepšími řemeslníky z regionu, která vám zaručí prvotřídní kvalitu a dlouhodobou hodnotu
• Vysoce kvalitní okna s trojitým zasklením / izolační okna
• Nejmodernější technologie centrálního vytápění s obnovitelnou a úspornou topnou technikou, nezávislou na ropě či plynu
• Podlahové topení s individuálním ovládáním v jednotlivých místnostech
• Sušák na ručníky v koupelnách
• Kvalitní stavební provedení
• Balkon/terasa, vana, hostinské WC, bezbariérová sprcha a mnoho dalšího...
• Prostorné výlohy
• Byty s terasou
• Přírodní kamenné obklady
• Samostatná škvírna
• Zdravé klima v obytném prostoru
• Ekologická masivní konstrukce s cihelnou z páleného jílu – vysoce kvalitní provedení dle standardu KfW Efektivhaus 55.
V okolí nemovitosti najdete
Stále hledáte to pravé?
Nastavte si hlídacího psa. Nabídky vybrané na míru dostanete souhrnně 1× denně e-mailem. S Premium profilem máte k ruce hlídačů rovnou 5 a když se něco objeví, informují vás obratem.





