
Prodej bytu 3+1 • 65 m² bez realitkyFrankfurt Höchst Hessen 65929
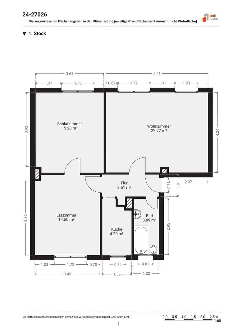
Pěkný, velmi světlý tří–čtyřpokojový byt v prvním patře udržovaného domu se šesti bytovými jednotkami. Byt je čerstvě zrenovován a ihned k nastěhování. Je však také velmi vhodný k pronájmu, například pro spolubydlení. Byla postavena sádrokartonová zeď, čímž vznikají tři ODĚLNÉ POKOJE (zatím nejsou zakresleny v půdorysu), jejichž dveře jsou dokonce vybaveny bezpečnostními zámky.
Ideální pro vlastní bydlení, rodiny nebo jako investice – vhodný také pro spolubydlení.
Byt se nachází na pozemku s věcným břemenem města Frankfurt. Věcné břemeno aktuálně platí do roku 2025 a město jej může prodloužit na dalších 99 let, pokud to všichni vlastníci schválí.
Původně měl byt čtyři pokoje – dva byly sloučeny do prostorného obývacího pokoje, ale lze je opět oddělit. Jeden z pokojů je průchozí.
Byt nabízí velmi dobrou dispozici a příjemné bydlení díky velkým okenům a spoustě denního světla.
Nachází se v centrální, přesto klidné lokalitě ve čtvrti Frankfurt-Höchst. Udržovaná bytová budova se nachází v zeleném prostředí se starým stromovým porostem a společnou zahradou, která je k dispozici všem obyvatelům.
K nádraží Höchster se spojením S-Bahn a regionální dopravou je přibližně sedm minut chůze. I přístup k dálnici je vynikající. Všechny základní provozovny – supermarkety, lékárny, školy, lékaři a restaurace – jsou pohodlně dostupné pěšky. Přestože se byt nachází v blízkosti letiště, nebyl vystaven rušivému hluku letadel.
Jedná se o zrenovovaný, světlý tří–čtyřpokojový byt s kvalitním laminátovým parketem a dlažbou, koupelnou s denním světlem a vanou, elektrickými rolety v obývacím pokoji a s vlastním plynovým podlahovým topením značky Junkers (pouze pro vlastní spotřebu). K bytu náleží velká suchá sklepní místnost (cca 12 m²) s oknem, elektřinou a ocelovými dveřmi – ideální jako hobby místnost nebo dílna. Dále jsou k dispozici společná prádelna, sklep na kola a udržovaná zahrada, kterou mohou využívat všichni obyvatelé domu. Budova neobsahuje výtah a má šikmou střechu, což snižuje náklady na údržbu. Rezervní fond společenství vlastníků činí cca 130 000 €, přičemž podíl na tento byt je cca 12 000 €, který je možné využít na opravy nebo modernizace. Náklady na věcné břemeno jsou cca 75 €/měsíc, provozní náklady včetně rezerv jsou pod 300 €/měsíc.
Prodej probíhá přímo od vlastníka – bez makléřského poplatku.
Byt je ihned k nastěhování, téměř veškerý nábytek může být v případě zájmu zdarma převeden.
Budova byla postavena kolem roku 1955. Podle energetického štítku má budova přibližně 140 kWh/(m²·rok) a energiiřídicí třídu E.
Všechny údaje jsou uvedeny podle nejlepšího vědomí – prosím, ověřte veškeré informace při prohlídce.
K bytu náleží také podíl na společném majetku (například obchodní prostor), který bude pravděpodobně prodán v roce 2026 – podíl na výtěžku zhruba 3 000 € by mohl náležet novému vlastníkovi.
Kontaktujte mě prosím přednostně e-mailem, protože telefonická dostupnost je omezená.
Na dotazy makléřů se neodpovídá.
V okolí nemovitosti najdete
Stále hledáte to pravé?
Nastavte si hlídacího psa. Nabídky vybrané na míru dostanete souhrnně 1× denně e-mailem. S Premium profilem máte k ruce hlídačů rovnou 5 a když se něco objeví, informují vás obratem.













