Prodej domu 4+1 • 124 m² bez realitkyGüssing Krottendorf Burgenland 7540
Güssing Krottendorf Burgenland 7540MHD 2 minuty pěšky • GarážKompletní a promyšlené – prostorový zázrak na malém pozemku.
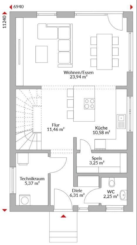
I přes omezenou podlahovou plochu splňuje tento dům všechna kritéria moderního bydlení. Kuchyň je funkčně řešená, technická místnost poskytuje dostatek prostoru pro domácí techniku a úložné prostory. Koupelna je vybavena vanou i sprchou a navíc je k dispozici i hostinská toaleta. Předsíň nabízí velkorysý prostor pro věšáky, dětský pokoj a ložnice mají dobré možnosti uskladnění. Obývací/jídelní prostor zaujme velkými okny a otevřenými přechody, které opticky zvětšují prostor.
Ideální pro všechny, kdo se chtějí zaměřit na to podstatné – aniž by se vzdali komfortu.
Na vašem pozemku nebo …
Následující pozemky můžeme aktuálně nabídnout:
Güssing: Nádherný stavební pozemek cca 2 600 m², zcela rovinatý. Rozměry pozemku a jeho poloha jsou na výběr. Velikosti od 500 m² do 1500 m².
Tyto stavební pozemky jsou opravdu třídy! V nejlepší lokalitě – 600 m do centra Güssingu, 650 m k lékařskému centru, cca 1200 m ke špitálu. 8 škol, včetně gymnázia, a kulturní akce,
přímo v termální oblasti a s úchvatným výhledem na nádherný hrad Güssing!
----------------------------------------------------------------------------
8510 Pichling u Stainzu: cca 7 500 m² stavební pozemek, rozměry a poloha pozemku dle vlastního výběru
----------------------------------------------------------------------------
8524 Kraubath v Groß St. Florian: cca 5 000 m² stavební pozemek, rozměry a poloha pozemku dle vlastního výběru
----------------------------------------------------------------------------
8530 Deutschlandsberg: cca 2180 m² stavební pozemek.
----------------------------------------------------------------------------
Mezi vlastníkem pozemku a stavitelem domu neexistuje žádné hospodářské spojení.
Rodinný dům se 4 pokoji – exkluzivní vybavení!
Dům je klíčový včetně dodávky a montáže od úrovně nad základy.
️ Střecha posílená proti sněhovým zátěžím
️ Vzduch-voda tepelné čerpadlo a podlahové vytápění
️ Větrání obytných prostor s rekuperací tepla (včetně letního chlazení)
️ Elektrické rolety v celém domě
️ Podlahové krytiny a sanitární vybavení dle vlastního výběru
️ Příprava pro fotovoltaiku
️ Balíček „všechno v jednom“ bez starostí
Pozemky o rozloze od 500 m² do 1500 m² jsou k dispozici na přání!
Možnost vlastní účasti – přesně podle vašich představ.
Poradenství a prodej:
Paní Tatjana Wyss
+43 676 553 77 47
tatjana.wyss@danwood.at
Zajistěte si nyní první konzultaci!
Další nabídky:
https://qr.scan.page/uploads/pdf/1752348182250_686ba1debcb60.pdf
Požádejte o stavební popis a katalogy!
K tomu je nutné uvést telefonní číslo, e-mailovou adresu a adresu.
Děkujeme!
V okolí nemovitosti najdete
Stále hledáte to pravé?
Nastavte si hlídacího psa. Nabídky vybrané na míru dostanete souhrnně 1× denně e-mailem. S Premium profilem máte k ruce hlídačů rovnou 5 a když se něco objeví, informují vás obratem.















