Prodej domu • 350 m² bez realitky, Dolní Sasko
, Dolní SaskoMHD 4 minuty pěšky • Parkování • GarážSháníte jedinečný dům s dostatkem místa, soukromím a potenciálem?
Tento historický dům z roku 1842 by pro vás mohl být přesně to pravé.
Vhodný také jako dům pro více generací, pro bydlení a práci pod jednou střechou a pro život se zvířaty.
Nemovitost se nachází v malé obci mezi Brémami a Bremerhavenem s velmi dobrou dostupností k dálnici (A27).
Hlavní přednosti
• Prostorný bývalý venkovský dům s přes 300 m² obytné plochy a velkou rezervou pro další využití na přibližně 6 000 m² pozemku připomínajícím park.
• Nadčasové prostředí: slaměná střecha, obložená fasáda z cihel, dřevěná okna (většinou dvojitě zasklená).
• Prosvětlené místnosti, světlá předsíň s kamínovým kamenem, pestré uspořádání místností.
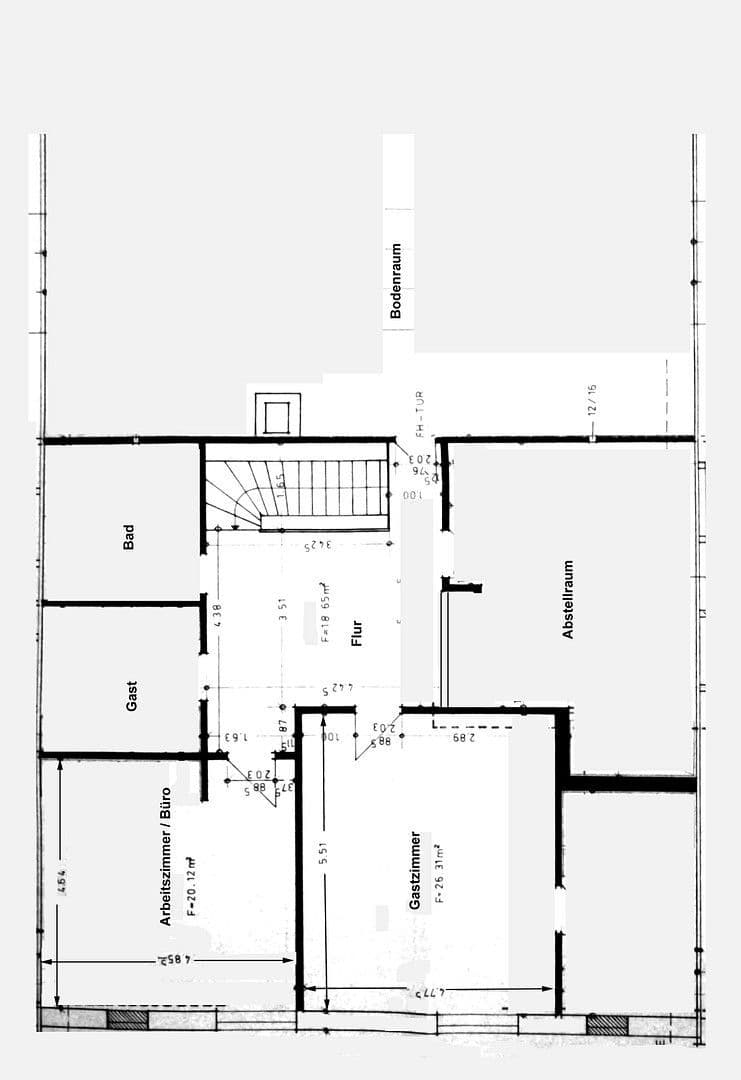
• Přízemí: obývací pokoj a jídelna s parketovou podlahou, ložnice se šatnou, koupelna (sprcha/vanová koupelna), kuchyně s jídelním koutem, hostinská toaleta, dvě další místnosti.
• Patro: pracovovna, ložnice se šatnou, dvě další místnosti (pro hosty nebo dětské pokoje), koupelna s vanou.
• Nádherné venkovní prostory se stávajícími starými stromy, udržovaným trávníkem a záhony, klidné posezení v chráněném nádvoří.
• Velká stodola (dostatek místa pro obytný vůz, loď, motocykly, firemní vybavení) s možností prostorného přizpůsobení.
• Samostatná dílna ve stodole.
• Garáž pro automobil s dalším prostorem pro zahradní nářadí, kola apod.
• Přístřešek pro náčiní, dřevo na topení nebo podobné využití.
Zvláštnosti
• Možnost vytvoření dodatečných obytných či pracovních prostor rozšířením velkého půdního prostoru.
• Prostorný pozemek se zajištěním soukromí – spíše připomíná soukromý park než klasickou zahradu.
Dům není evidován jako památkově chráněná stavba.
Tento dům je vhodný pro rodiny s vkusem, bydlení ve více generacích, pro kombinaci práce a bydlení nebo jako útočiště s individuálním designovým potenciálem.
Blízkost k řece Weser (dva přístavy v krátké vzdálenosti) nabízí možnosti pro vodní sporty.
Část slaměné střechy bude částečně nutné obnovit.
Zaujala vás nabídka?
Ráda zodpovím další dotazy (půdorysy jsou k dispozici). Samozřejmě je možná prohlídka, abyste se mohli sami přesvědčit o jedinečné atmosféře tohoto místa.
Dům se nachází v malé obci, kde převládají rodinné domy pro jednu či dvě generace, a leží v bezprostřední blízkosti Weseru.
Nachází se na velmi klidné vedlejší ulici s minimálním provozem.
V okolí jsou dva přístavy pro sportovní lodě s kotevními místy, vhodné pro plachetnice, motorová plavidla, jachty a další lodě.
Obec je situována v poklidné oblasti, ale zároveň má výbornou dostupnost k dálnici A27 – díky čemuž jsou Bremerhaven, Cuxhaven a Brémy snadno dosažitelné.
V krátké vzdálenosti se také nachází trajekt přes Weser a tunel pod řekou – místa jako Brake, Elsfleth, Nordenham či Oldenburg jsou rovněž rychle dostupná.
Nepříliš daleko se nachází obec Hagen s množstvím nákupních možností, škol, ordinací lékařů atd., přičemž v obci je právě v procesu výstavby obchod "Tante Enso".
Parametry nemovitosti
| Stáří | Nad 50 let |
|---|---|
| Číslo inzerátu | 967731 |
| Užitná plocha | 350 m² |
| Celkem podlaží | 2 |
| Stav | Dobrý |
|---|---|
| PENB | G - Mimořádně nehospodárná |
| Plocha pozemku | 6 000 m² |
| Cena za jednotku | 1 700 € / m2 |
Co tato nemovitost nabízí?
| Bezbariérový přístup | |
| MHD 4 minuty pěšky |
| Garáž | |
| Parkování | |
| Terasa |
V okolí nemovitosti najdete
Stále hledáte to pravé?
Nastavte si hlídacího psa. Nabídky vybrané na míru dostanete souhrnně 1× denně e-mailem. S Premium profilem máte k ruce hlídačů rovnou 5 a když se něco objeví, informují vás obratem.












