
Pronájem bytu 3+1 • 67 m² bez realitkyDaimlerstraße 4, , Bádensko-Württembersko
Daimlerstraße 4, , Bádensko-WürttemberskoMHD 4 minuty pěškyTento samostatný byt se zvláštním vchodem je součástí novostavby KFW55 (topení tepelným čerpadlem) z roku 2016, k nastěhování od 1. února 2026, případně i dříve.
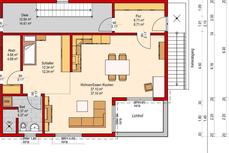
Celkem je k dispozici 67 m², z toho 12 m² užitné plochy.
Byt se nachází v suterénu (podzemním patře) novostavby z roku 2016 v boční ulici v Kiebingenu. Samotný Kiebingen má velmi dobré napojení na veřejnou dopravu – s vlakem (cca 5 minut pěšky) nebo autobusem (cca 3 minuty pěšky) existuje skvělé spojení do Tübingenu nebo Rottenburgu.
Byt je navržen v otevřeném konceptu, převážně s vinylovými podlahami (v koupelně a ve skladovacím prostoru s dlažbou) a s podlahovým vytápěním. Součástí vybavení je rovněž vestavěná kuchyň (dřez, myčka, lednice, sporák, trouba, odsávání) a kvalitní vybavení koupelny, jinak zůstává nevybaven.
Je k dispozici satelitní připojení a vysokorychlostní DSL až do 100 Mbit/s.
Chodba zobrazená na obrázku (označená šedě) není součástí pronájmu.
Domácí mazlíčci a konzumace tabákových výrobků nejsou povoleny.
Vezměte prosím v potaz půdorys a fotografie – prostor mezi obývacím a ložnicí není úplně oddělen stěnou.
Celkový nájem, který zahrnuje základní nájem, poplatek za kuchyň a uvedené zálohy, činí 950 € měsíčně, a skládá se z:
• Základní nájem: 850 €/měsíc.
• Nájem za vestavěnou kuchyň: 30 €/měsíc.
• Záloha na ohřev teplé vody a topné náklady (FBH): 30 €/měsíc.
• Příspěvek na daň z nemovitosti/pojištění budovy: 20 €/měsíc.
• Příspěvek na vodné a stočné: 10 €/měsíc.
• Paušální poplatek za renovaci: 10 €/měsíc.
• Nájemce hradí obecnou elektřinu zvlášť.
V okolí nemovitosti najdete
Stále hledáte to pravé?
Nastavte si hlídacího psa. Nabídky vybrané na míru dostanete souhrnně 1× denně e-mailem. S Premium profilem máte k ruce hlídačů rovnou 5 a když se něco objeví, informují vás obratem.














