Pronájem kanceláře • 307 m² bez realitkyAxel-Springer-Platz 2 Hamburg Neustadt Hamburg 20355
Axel-Springer-Platz 2 Hamburg Neustadt Hamburg 20355MHD 1 minuta pěškyPřátelské, velmi světlé a multifunkční prostory v centru Hamburku. Oboustranné osvětlení a skleněné zdi vytvářejí v celém objektu průhledné prostory. Podlaha z přírodního dřeva a otevřenost podporují zážitek z prostoru a celkovou pohodu.
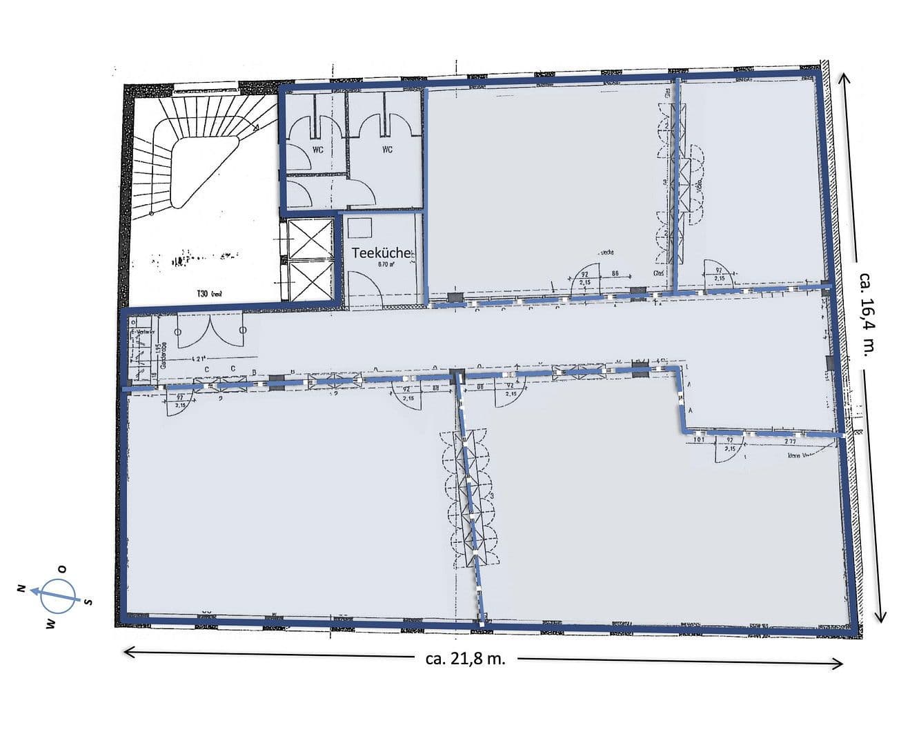
Štědrý půdorys poskytuje flexibilitu: pro tradiční i nové využití v proměnlivé kancelářské práci. Ideální pro komunikativní spolupráci v různě využitelných a příjemných prostorech. V případě potřeby lze některé místnosti rozdělit. Prostory určené pro týmovou práci, projektovou práci, task force a společné setkání – situované na vlastním patře. Výrazná stavba ve stylu umírněné moderny, druhá Gründerzeit, střed 20. století.
Prostory jsou k dispozici i jako dílčí objekty o velikostech 72 m², 117 m² a 117 m², včetně částečného využití konferenční místnosti, čajovny a prostoru pro společná setkání. Ideální pro startupy a podniky s růstovým potenciálem.
Centralita na maximum: centrum Hamburku (Neustadt), Axel-Springer-Platz. Za 5–7 minut pěšky se nachází Binnenalster, Jungfernstieg (S/U) a Neuer Wall, Rathausmarkt (U), Gänsemarkt (U), Großneumarkt, Stadthausbrücke (S) a Rödingsmarkt (U). Pět minut veřejnou dopravou od hlavního nádraží a přístavu. V bezprostřední blízkosti je řada obchodních a gastronomických zařízení. Hotely pro obchodní cestující i vyšší turistiku jsou v docházkové vzdálenosti.
Masivní dřevěná parketa, skleněné zdi a dveře, týmové místnosti, optické připojení, LAN kabeláž, kuchyně, vestavěné skříně, kompletně rekonstruovaný sanitární prostor a venkovní sluneční clony ovládané na dálku. Dva rychlé výtahy.
Prostory jsou k dispozici i jako dílčí objekty o velikostech 72 m², 117 m² a 117 m², včetně částečného využití konferenční místnosti, čajovny a prostoru pro společná setkání. Ideální pro startupy a podniky s růstovým potenciálem.
Neuhaus Handels- und Verwaltungs-GmbH, Axel-Springer-Platz 2, 20355 Hamburg
Všechny ceny jsou uvedeny bez DPH.
Parametry nemovitosti
| Stáří | Nad 50 let |
|---|---|
| Stav | Po rekonstrukci |
| Číslo inzerátu | 967938 |
| Cena za jednotku | 20 € / m2 |
| Dostupné od | 1. 1. 2026 |
|---|---|
| Podlaží | 3. podlaží |
| Plocha kanceláře | 307 m² |
Co tato nemovitost nabízí?
| MHD 1 minuta pěšky |
V okolí nemovitosti najdete
Stále hledáte to pravé?
Nastavte si hlídacího psa. Nabídky vybrané na míru dostanete souhrnně 1× denně e-mailem. S Premium profilem máte k ruce hlídačů rovnou 5 a když se něco objeví, informují vás obratem.



















