
Pronájem bytu 3+kk • 85 m² bez realitkyNienburger Straße 2 Bremen Östliche Vorstadt Bremen 28205
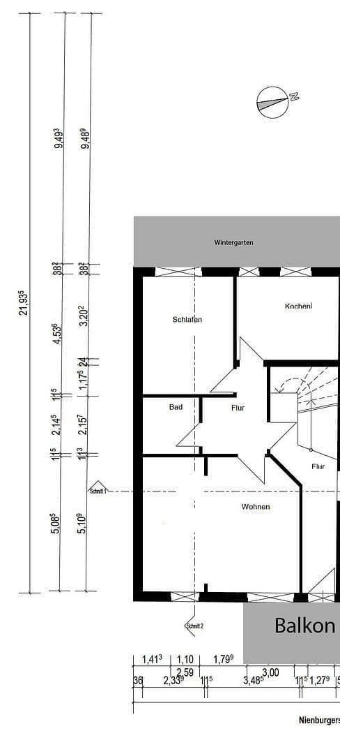
Nienburger Straße 2 Bremen Östliche Vorstadt Bremen 28205MHD 1 minuta pěškyToto přitažlivé apartmá s výškou stropu téměř 3,2 metru se vyznačuje přívětivým vnitřním vybavením a je k nastěhování od února 2026. Apartmá zahrnuje 2,5 místnosti, prostornou zimní zahradu a balkon, na kterém si můžete krásně odpočinout od každodenní rutiny. K bytu dále náleží také sklep. K dispozici je i vestavěná kuchyň.
Vícebytový dům se nachází v oblasti Peterswerder v boční ulici vedle Hamburger Straße. Díky centrální poloze se městskou hromadnou dopravou rychle dostanete do centra Bremenu, na nádraží i na univerzitu v Bremenu. Peterswerder sousedí s bremskou „čtvrtí“, kde najdete rozsáhlé možnosti nákupů, restaurace a kavárny.
Byt má velký obývací a jídelní prostor s prostornými okny a balkonem – světlý, přívětivý a tichý. Uvnitř umístěná koupelna se sprchovým koutem je moderní a světlá, s decentním obkladem.
Nemovitost se nachází ve velmi udržovaném vícebytovém domě.
Jsou zde k dispozici dobré parkovací možnosti a bezprostřední spojení s veřejnou dopravou.
V okolí nemovitosti najdete
Stále hledáte to pravé?
Nastavte si hlídacího psa. Nabídky vybrané na míru dostanete souhrnně 1× denně e-mailem. S Premium profilem máte k ruce hlídačů rovnou 5 a když se něco objeví, informují vás obratem.
















