
Prodej bytu 1+kk • 38 m² bez realitkyOvčí hájek, Praha - Stodůlky
Využít program Bydlím hned, koupím později
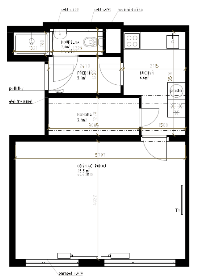
Nabízím k prodeji útulný byt typu 1+kk, který se nachází v panelovém domě. Byt je umístěn na 7. patře osmipodlažní budovy s výtahem. Nemovitost je kompletně nově zrekonstruovaná - rozvody včetně elektřiny, podlahy, zcela nová koupelna a plně vybavená kuchyň na míru, což umožňuje okamžité nastěhování bez nutnosti dalších úprav. Kuchyňský kout je oddělený dveřmi od obytné části. Byt disponuje i malou komorou.
Panelový dům je čerstvě po kompletní revitalizaci - zateplení, nová okna, nová fasáda, předokenní rolety, byt má nízké provozní náklady. S celkovou dispozicí 1+kk a plochou 38 m² je byt ideální volbou pro jednotlivce nebo mladý pár, který ocení promyšlené využití prostoru. K bytu existuje studie využití obytného prostoru v rozdělení na spací a obytnou část. Orientace bytu je na západ, s výhledem do příjemného zeleného vnitrobloku. Dopravní obslužnost zajišťuje stanice metra Nové Butovice, která je 2 min pěšky.
Byt je aktuálně pronajatý velmi solidnímu nájemci, v případě zájmu lze domluvit pokračování nájemní smlouvy. Zájemci o bližší informace nebo o prohlídku nemovitosti mě mohou kontaktovat prostřednictvím zpráv na komunikační platformě.
Parametry nemovitosti
| Dostupné od | 1. 3. 2026 |
|---|---|
| Konstrukce budovy | Panel |
| Vybaveno | Částečně |
| Číslo inzerátu | 968224 |
| PENB | B - Velmi úsporná |
| Užitná plocha | 38 m² |
| Cena za jednotku | 150 000 Kč / m2 |
| Stav | Velmi dobrý |
|---|---|
| Dispozice | 1+kk |
| Podlaží | 7. podlaží z 8 |
| Vlastnictví | Osobní |
| Umístění | Sídliště |
| Rizika | Prověřit » |
Co tato nemovitost nabízí?
| MHD 2 minuty pěšky |
| Výtah |
V okolí nemovitosti najdete
Využít program Bydlím hned, koupím později
Stále hledáte to pravé?
Nastavte si hlídacího psa. Nabídky vybrané na míru dostanete souhrnně 1× denně e-mailem. S Premium profilem máte k ruce hlídačů rovnou 5 a když se něco objeví, informují vás obratem.



















