Prodej domu • 340 m² bez realitkyZiegenhainer Straße 3, , Hessen
Ziegenhainer Straße 3, , HessenMHD 2 minuty pěšky • Parkování • GarážV žádané lokalitě okresního města Homberg se nachází fascinující obytný a komerční dům k prodeji, který stojí přímo naproti modernímu nákupnímu centru „Drehscheibe“. Tato nemovitost, jež nabízí obrovský investiční potenciál, otevírá řadu možností využití a spojuje nepřekonatelné umístění s promyšlenými designovými řešeními.
Tento prostorný bytový dům nabízí mimořádný rozvojový potenciál – ideální jak pro kapitálové investory, tak pro vícero generační bydlení.
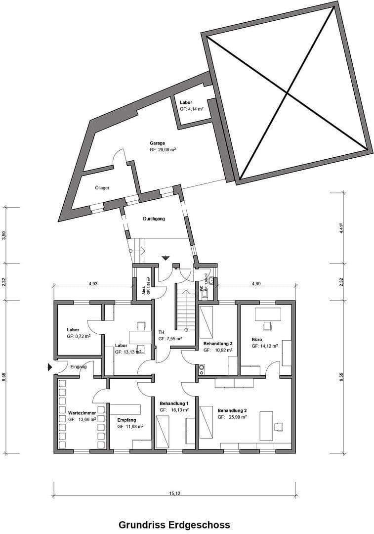
V přízemí se již nachází samostatná obytná jednotka resp. komerční prostor s vlastním vchodem a vlastním WC – ideální pro kancelář, ordinaci, ateliér či samostatný byt.
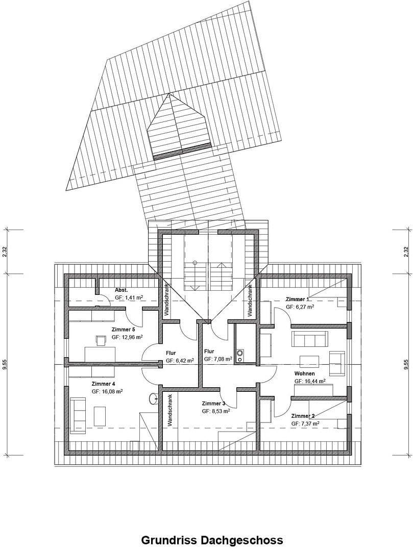
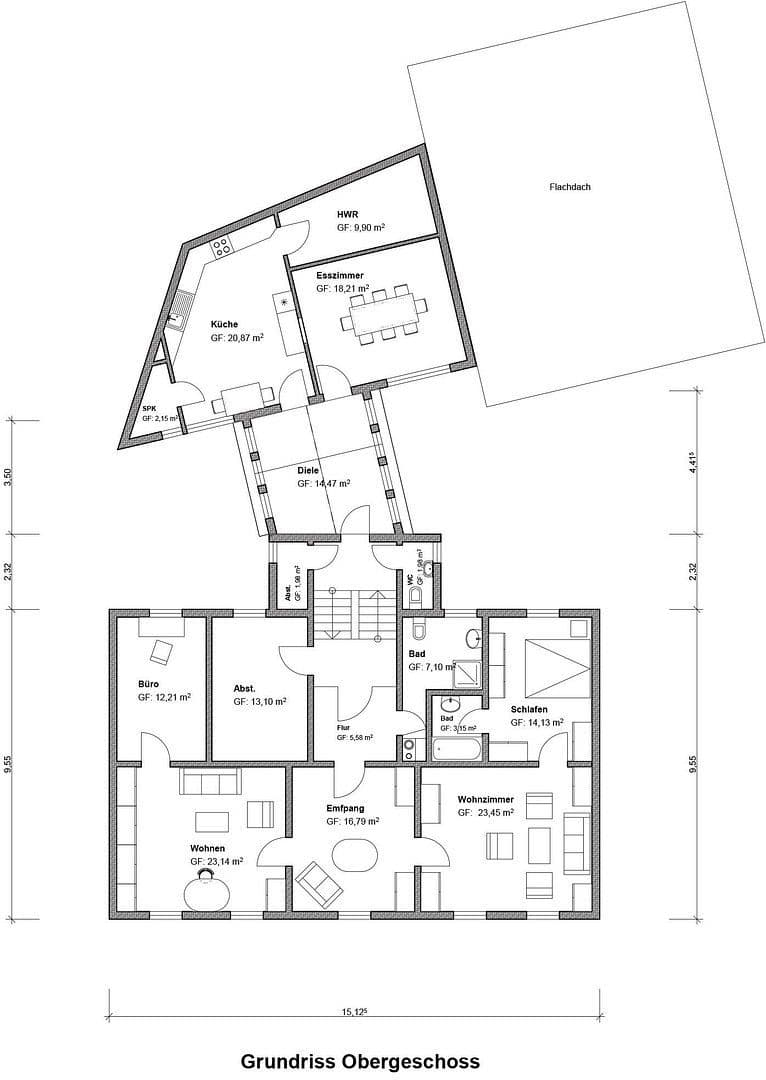
Nad tímto prostorem se nacházejí dvě patra s dalšími 19 místnostmi, 3 WC a 2 koupelnami. Stávající struktura budovy umožňuje rozdělení do několika uzavřených obytných jednotek.
Prostorné schodiště zajišťuje samostatný přístup ke všem patřím a poskytuje ideální předpoklady pro nákladově efektivní přestavbu na samostatné byty.
Objekt je tak vhodný jak pro klasické obytné využití, tak pro studentské bydlení, zaměstnanecké byty nebo kombinaci bydlení a práce.
Nemovitost těží z centrální polohy v dynamicky se rozvíjející čtvrti, což zaručuje udržitelný nárůst hodnoty.
Centrální umístění v okresním městě Homberg, přímo naproti nákupnímu centru Drehscheibe. Mnoho obchodních možností, škol, mateřských škol, lékařů i tržiště se nachází v bezprostřední pěší vzdálenosti.
Velká, dvojitě zasklená PVC okna zajišťují vynikající izolaci a prosvětlené místnosti. S ohromujícími výškami stropů 3 metry se vytváří prostorná a otevřená atmosféra. Pro další úložný prostor či jako technická místnost či prostor pro koníčky je k dispozici kompletně vybavený sklep.
Schválený plán sanace, který je kryt finanční podporou ve výši 98 000 €, podpoří připravované optimalizace.
Parametry nemovitosti
| Stáří | Nad 50 let |
|---|---|
| Stav | Před rekonstrukcí |
| PENB | E - Nehospodárná |
| Plocha pozemku | 405 m² |
| Cena za jednotku | 706 € / m2 |
| Dostupné od | 6. 12. 2025 |
|---|---|
| Číslo inzerátu | 968385 |
| Užitná plocha | 340 m² |
| Celkem podlaží | 3 |
Co tato nemovitost nabízí?
| Sklep | |
| MHD 2 minuty pěšky |
| Garáž | |
| Parkování |
V okolí nemovitosti najdete
Stále hledáte to pravé?
Nastavte si hlídacího psa. Nabídky vybrané na míru dostanete souhrnně 1× denně e-mailem. S Premium profilem máte k ruce hlídačů rovnou 5 a když se něco objeví, informují vás obratem.


























