Prodej domu • 255 m² bez realitkyDraußenberg 36B, , Braniborsko
Draußenberg 36B, , BraniborskoMHD 2 minuty autem • Parkování • GarážInvestice do nemovitosti v Dossow u Wittstock – Atraktivní investiční příležitost s potenciálem vícero generačního domu
Tato nemovitost v Dossow u 16909 Wittstock představuje slibnou příležitost pro investory. Nemovitost zaujme svou polohou v klidném, přírodním prostředí, jež je atraktivní jak pro nájemce, tak i pro budoucí uživatele.
Tato nemovitost nabízí široké možnosti využití. Zvlášť je třeba vyzdvihnout vhodnost pro vícero generační dům, což zvyšuje flexibilitu a potenciál pro různé koncepce využití.
Díky dobrému propojení s okolními městy a infrastrukturou ve Wittstocku je zajištěna stabilní obsazenost nájemci. Investoři zde dlouhodobě profitují z pevného růstu hodnoty a atraktivních nájmů. Umístění v žádané oblasti činí z této nemovitosti udržitelnou investici s velkým potenciálem.
Velikost pozemku: 678 m²
Rok výstavby: 1996
Domácí vodní zařízení pro zavlažování zahrady
Nemovitost je momentálně rozdělena do 2 listin vlastnictví.
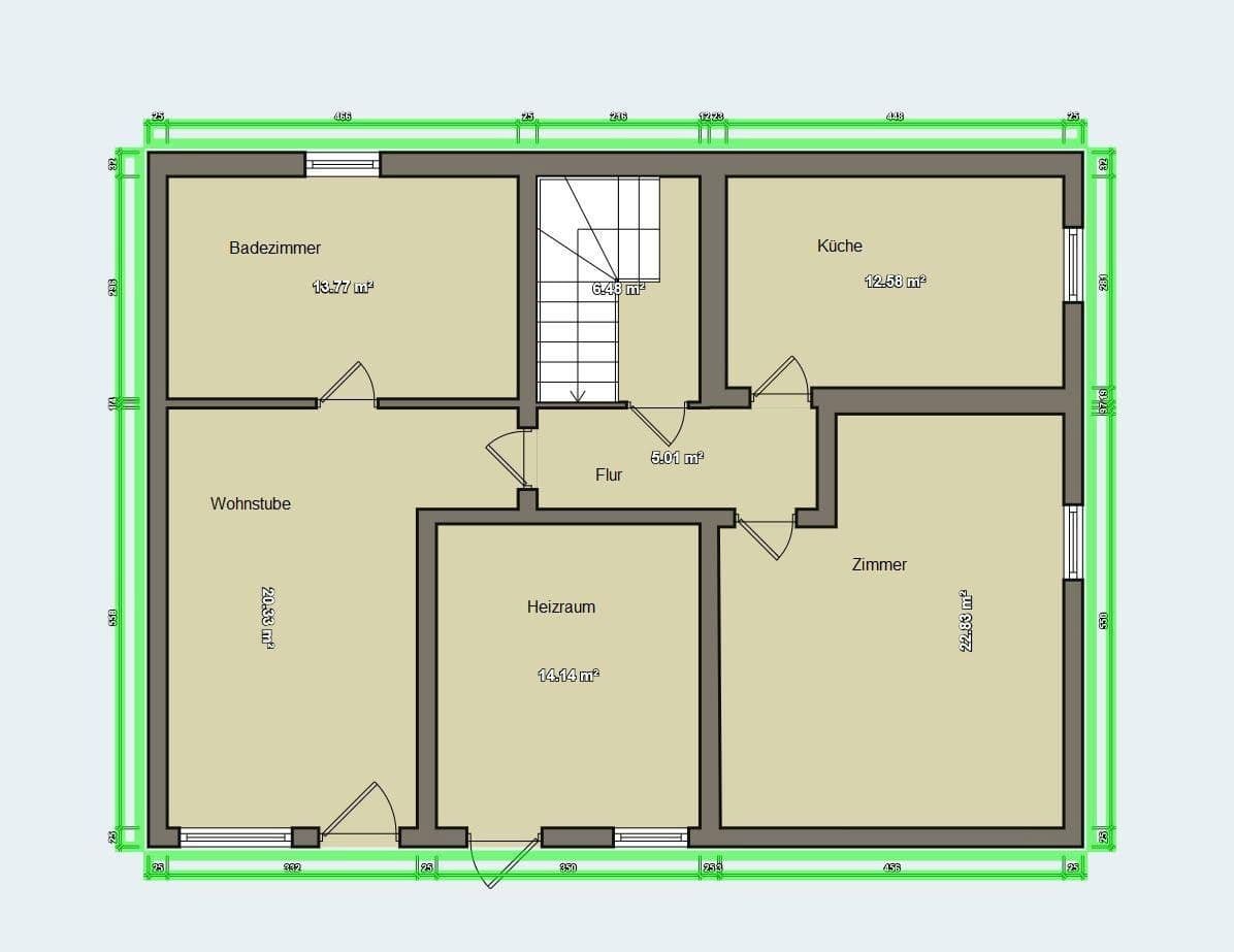
Přízemí: Byt č. 1 o rozloze cca 100 m²
Složený ze 4 pokojů, kuchyně, koupelny, haly a přístřešné terasy
Speciální vybavení:
- Krbový kamna v obývacím pokoji v přízemí
- Terasa 4 m x 8 m = 32 m² s krytem
- Koupelna s podlahovým vytápěním
- Garáž pod terasou 3 m x 7,5 m
Podkrovní patro: Byt č. 2 o rozloze cca 80 m²
Složený ze 3 pokojů, kuchyně, koupelny, haly a balkonu
Speciální vybavení:
- Kuchyně s podlahovým vytápěním
- Balkon
- Skladovací místnost na střešní podlaze
Sklepní podlaží: Přestavěno pro vlastní bydlení jako obytný sklep o rozloze cca 75 m²
Složený ze 2 pokojů, kuchyně, koupelny a haly
Speciální vybavení:
- Koupelna s elektrickým podlahovým vytápěním
- Koupelna s vířivkou a velkou sprchou
Každá jednotka je oddělená (elektřina, voda, teplá voda, měřič tepelné energie).
Všechny jednotky mají samostatné dveře bytu.
Nemovitost je momentálně pronajata.
Dům se nachází v okouzlující obci Dossow, která nabízí klidné a idylické umístění v blízkosti Wittstocku. Okolí je charakteristické zelenými lesy, poli a příjemnou venkovskou atmosférou, ideální pro všechny, kteří ocení klid a přírodu. Přestože se nachází na venkově, je infrastruktura dobře rozvinutá: nákupní možnosti, školy a zdravotní péče jsou ve Wittstocku, který je vzdálen jen několik kilometrů, snadno dostupné. Dobré napojení na dálnici umožňuje rychlý přístup k okolním městům. Celkově lokalita nabízí dokonalou kombinaci klidu, přírody a výborné dostupnosti – ideální pro rodiny, milovníky přírody či pro ty, kteří chtějí uniknout shonu.
Parametry nemovitosti
| Stáří | Nad 50 let |
|---|---|
| Číslo inzerátu | 968452 |
| Užitná plocha | 255 m² |
| Celkem podlaží | 3 |
| Stav | Dobrý |
|---|---|
| PENB | C - Úsporná |
| Plocha pozemku | 678 m² |
| Cena za jednotku | 1 627 € / m2 |
Co tato nemovitost nabízí?
| Balkón | |
| Garáž | |
| Parkování | |
| Terasa |
| Sklep | |
| MHD 2 minuty autem |
V okolí nemovitosti najdete
Stále hledáte to pravé?
Nastavte si hlídacího psa. Nabídky vybrané na míru dostanete souhrnně 1× denně e-mailem. S Premium profilem máte k ruce hlídačů rovnou 5 a když se něco objeví, informují vás obratem.

























