Prodej domu 6+1 • 189 m² bez realitky, Severní Porýní-Vestfálsko
, Severní Porýní-VestfálskoMHD 1 minuta pěšky • Parkování • GarážNa prodej je samostatně stojící, obkládaný rodinný dům třídy KfW 55, postavený v roce 2018. Dům spojuje moderní architekturu, vynikající stavební kvalitu a vysoce kvalitní technické vybavení na prostorné parcele o rozloze přibližně 794 m².
Nabízí přes tři patra přibližně 260 m² obytné plochy, kterou lze flexibilně přizpůsobit rodinám, domácím kancelářím nebo vícegeneračnímu bydlení.
• Obytná plocha (podle WoFIV): cca 188,8 m²
• Užitná plocha (podle DIN 277): cca 164,6 m²
• Celková užitná plocha (bez teras/balkonu/skládacího prostoru): cca 353,4 m²
Díky geotermální energii, řízenému větrání obytného prostoru, podlahovému chlazení/vytápění a smart-home technologii zažijete nejvyšší komfort bydlení při extrémně nízkých energetických nákladech.
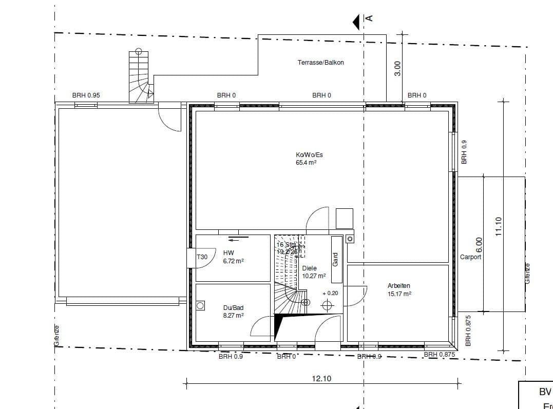
Půdorysy / rozložení místností
Přízemí:
• Otevřený obývací/jídelní/kuchyňský prostor
• Pracovna (volitelně)
• Hostinská toaleta se sprchou
• Technická místnost s dalším vstupem do garáže
• Prostorná hala s výhledem do horního patra
První patro:
• Hlavní ložnice s přístupem do šatny (klimatizované)
• Šatna s přímým vstupem do koupelny
• Dvě dětské pokoje (jeden s přidanou půdou)
• Rodinná koupelna se sprchou, vanou, dvojitým umyvadlem a toaletou
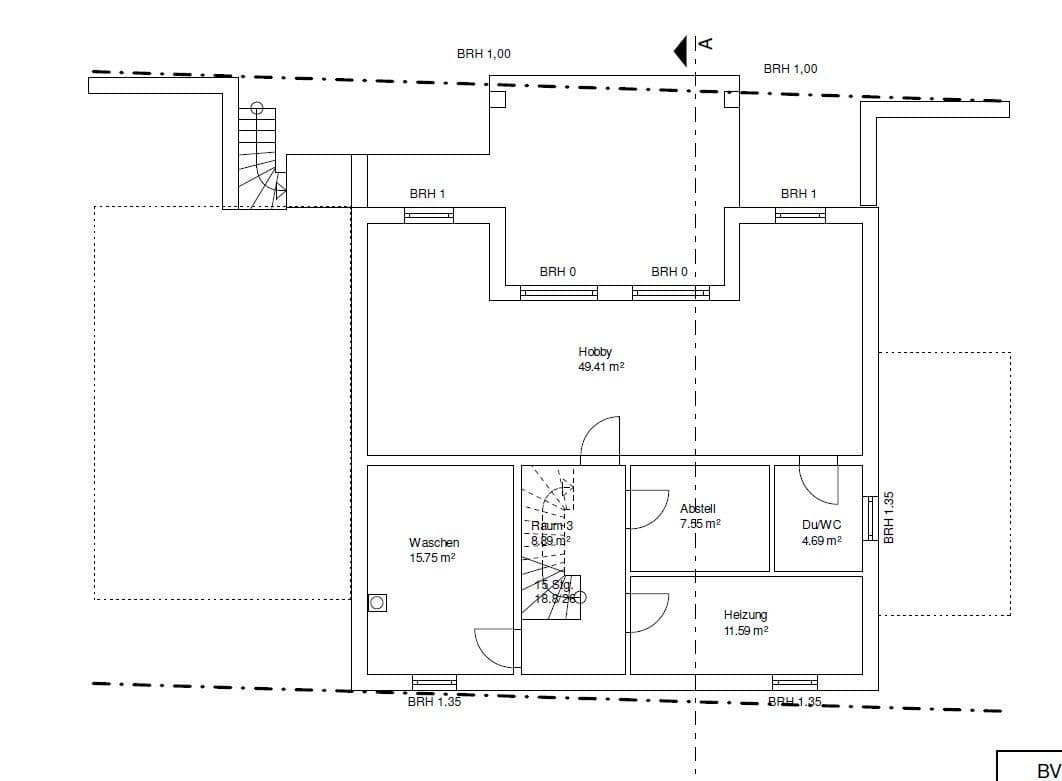
Suterén:
• Hobbymístnost (lze využít také jako kuchyň, obývací pokoj nebo ložnici)
• Koupelna se sprchou a toaletou
• Skladovací místnost (vhodná také jako další ložnice)
• Technická místnost pro topení
• Prádelna
• Chodba s bohatým úložným prostorem
Erftstadt-Erp je klidná část obce v bezprostřední blízkosti Lechenich s velmi dobrou dopravní dostupností do Kolína, Bonny a okolí.
Ideální pro rodiny: základní škola, mateřská škola, supermarket, lékař a lékárna se nacházejí přímo na místě.
V bezprostředním okolí nabízí Erftstadt různé střední školy, možnosti nákupů, zdravotní péči a vynikající volnočasové vyžití (Ville-Seen, cyklostezky/chodníky).
Dopravní spojení:
• A1, A61, A553 dosažitelné během několika minut
• Silnice B265 s přímým spojením do Kolína
• Nádraží Erftstadt-Liblar s přípojením na regionální dopravu (do Kolína/Bonny)
• Energetická účinnost: standard KfW 55, geotermální energie, centrální větrací systém
• Okna: trojitě zasklená okna značky Schüco se zvýšenou protivniklovou ochranou
• Podlahové vytápění/chlazení: v přízemí, prvním patře a suterénu (částečně také ve sprchách)
• Výška stropů: přízemí 2,72 / 5,60 m, suterén 2,59 m
• Smart Home: spínací systém Busch & Jäger, programovatelný a ovladatelný přes aplikaci
• Klimatizace: v hlavní ložnici
Vnitřní vybavení:
o Velkoformátové porcelánové dlaždice 120 x 60 cm
o Schodiště z přírodního kamene
o Vysoce kvalitní vinylová podlaha v ložnicové oblasti (průmyslový standard)
o Extra široké a vysoké dveře v celém domě
Garáž a parkovací místa:
o Dvojgaráž s přímým vstupem do domu a zahrady
o Carport s čirým skleněným krytem (přístupný pěšky)
o 3 krytá + 5 dalších parkovacích míst
• Střecha: glazované ploché tašky
• Suterén: plně dokončený, betonové stěny (36,5 cm) v zeminové části, obytně využitelný
• Zahrada: velmi udržovaná, se sluneční expozicí
Prodej formou dražby na nejvyšší nabídku
- Uvedená cena představuje minimální nabídku
Prohlídky jsou možné výhradně po předložení následujících dokladů:
• Platná kopie dokladu totožnosti
• Doklad o financování nebo kapitálový doklad ve výši alespoň 1 000 000 €
První kontakt prosím výhradně emailem.
• Přesnou adresu sdělíme po kvalifikovaném prvním kontaktu.
________________________________________
Údaje o energetice
• Typ energetického průkazu: průkaz energetické potřeby
• Energetická třída: A+
• Konečná energetická potřeba: 17,08 kWh/(m²·rok)
• Primární energetická potřeba: 30,74 kWh/(m²·rok)
• Druh vytápění: geotermální energie
• Rok výstavby dle energetického průkazu: 2018
V okolí nemovitosti najdete
Stále hledáte to pravé?
Nastavte si hlídacího psa. Nabídky vybrané na míru dostanete souhrnně 1× denně e-mailem. S Premium profilem máte k ruce hlídačů rovnou 5 a když se něco objeví, informují vás obratem.














































