Prodej domu 5+1 • 141 m² bez realitky, Šlesvicko-Holštýnsko
, Šlesvicko-HolštýnskoMHD 3 minuty pěškyStavebně "kámen na kameni" postavený dvojdům ohromuje svou moderní architekturou, prostornými prosklenými plochami a promyšleným uspořádáním interiéru. Velká okna a další střešní okna v horním patře zaplavují celý dům denním světlem a vytvářejí příjemnou atmosféru.
Každá polovina domu je k dispozici jak v již upraveném, tak v neupraveném stavu. Vy tak můžete sami rozhodnout, zda do bytu chcete přidat svůj osobní dotek, nebo si vybrat dům připravený k nastěhování.
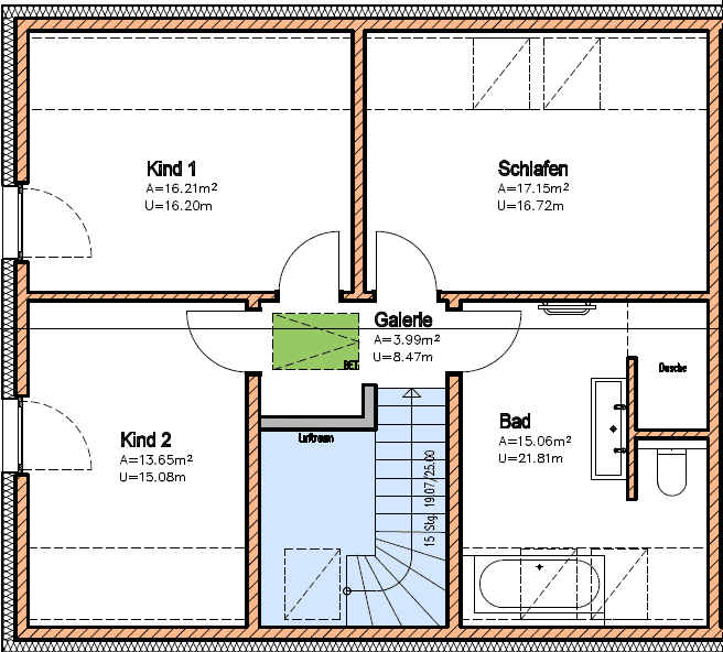
Tato polovina domu nabízí ideální obytnou plochu pro páry, rodiny nebo osoby potřebující dostatek místa pro práci na home office.
Dům se nachází v poklidné slepé uličce nově rozvíjené obytné čtvrti – ideální pro rodiny, milovníky přírody i pro ty, kteří hledají klid. Okolí nabízí mírné kopce, jezera a spoustu příležitostí k časování v přírodě.
Samotný Ascheberg disponuje dětským školkou, základní i komunitní školou, lékárnou a menšími obchody na každodenní potřeby. Lékaři a větší nákupní možnosti jsou rychle dostupné v Plónu nebo Kielu. Ascheberg má navíc železniční stanici na trati Kiel–Lübeck a leží přímo u břehu velkého Plöner jezera.
Tato prostorná a světlá dvojdůmová polovina nabízí nejen příjemnou bydlení atmosféru, ale také jedinečnou příležitost zcela si přizpůsobit vybavení podle vlastních představ a přání – ideální pro všechny, kteří si cení individuality a osobní kvality bydlení.
Firma: Vesta Immobilien & Finanzierungs GmbH
Kontaktní osoba: Konstantin Schreiner
Adresa: Walter-Zeidler-Str. 15, 24783 Osterrönfeld
Tel.: 04331 868880
E-mail: info@vesta-immo.de
V okolí nemovitosti najdete
Stále hledáte to pravé?
Nastavte si hlídacího psa. Nabídky vybrané na míru dostanete souhrnně 1× denně e-mailem. S Premium profilem máte k ruce hlídačů rovnou 5 a když se něco objeví, informují vás obratem.












