Pronájem bytu 5+1 • 218 m² bez realitkyBerthastraße 6 Bochum Nordrhein-Westfalen 44793
Berthastraße 6 Bochum Nordrhein-Westfalen 44793MHD 6 minut pěšky • Parkování • GarážVybírá se k pronájmu exkluzivní, prostorný a čerstvě zrenovovaný byt v prvním patře reprezentativní a samostatně stojící obytně-obchodní budovy v Bochum-Hordel.
Byt je obsazován poprvé po rekonstrukci. V roce 2025 byla vyměněna všechna okna, byl přebrúšen a olejován parketový podlahový kryt, byla obnovena elektroinstalace a zdi i stropy byly natřeny. Také byla nově natřena fasáda.
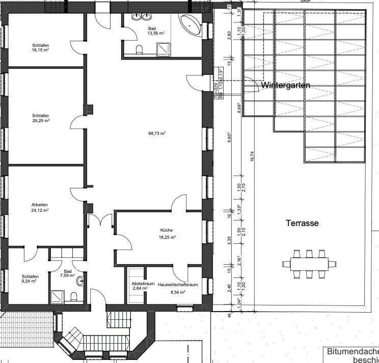
Všechny místnosti bytu se nacházejí v jedné úrovni (první patro):
• Chodba
• Koupelna se sprchou
• Spočinkový pokoj
• Dítě 1 / Pracovna
• Dítě 2
• Ložnice rodičů
• Koupelna s vanou s rohovou vanou a bezbariérovou sprchou
• Prostorný obývací pokoj
• Kuchyně
• Komora
• Terasa na střeše
• Zimní zahrada
• Prostorný úložný prostor (místo sklepa)
Zimní zahrada, střešní terasa a úložný prostor nejsou zahrnuty v uvedené dispozici podlahové plochy.
Místnosti Dítě 1 / Pracovna, Spočinkový pokoj a Koupelna se sprchou mohou být využity jako samostatný byt, například pro au pair či podobně.
V kuchyni je instalována vysoce kvalitní vestavěná kuchyňská linka značky Gaggenau (stáří cca 30 let). Ta může být při nastěhování převzata bezplatně, alternativně ji pronajímatel odstraní.
Dvojgaráž je volitelně k pronájmu (100 EUR).
V přízemí se nachází fyzioterapie a jesle (oba s vlastním vchodem).
Údržba venkovního areálu a zimní úklid jsou svěřeny dodavatelům služeb.
Samostatně stojící obytně-obchodní budova se nachází v zeleném prostředí na konci ulice Berthastraße, v bezprostřední blízkosti dolu Zeche Hannover. Je obklopena ze tří stran stromy. Park "Herne Park" začíná přímo před domem.
Autobusová zastávka je vzdálena 500 m a veze přímo do centra Bochumu.
Automobilem se dostanete během několika minut na dálnici A40, A448 a do všech nákupních center v příslušných čtvrtích.
- Kvalitní podlahové krytiny (pravé dřevěné parkety a mramor)
- Všechna okna nová v roce 2025
- Velká rohová vana a bezbariérová sprcha v hlavní koupelně
- Prostorná střešní terasa
- Prostorná zimní zahrada
- Velký "podkrovní" prostor (místo sklepa) na stejné úrovni
- Volitelná dvojgaráž k pronájmu (100 EUR)
V okolí nemovitosti najdete
Stále hledáte to pravé?
Nastavte si hlídacího psa. Nabídky vybrané na míru dostanete souhrnně 1× denně e-mailem. S Premium profilem máte k ruce hlídačů rovnou 5 a když se něco objeví, informují vás obratem.



















