Prodej domu • 343 m² bez realitky, Bavorsko
V Mengkofenu se prodává moderní, robustně postavený architektonický dům. Budova je kompletně podsklepená a nabízí celkem přibližně 441 m² obytné a užitkové plochy.
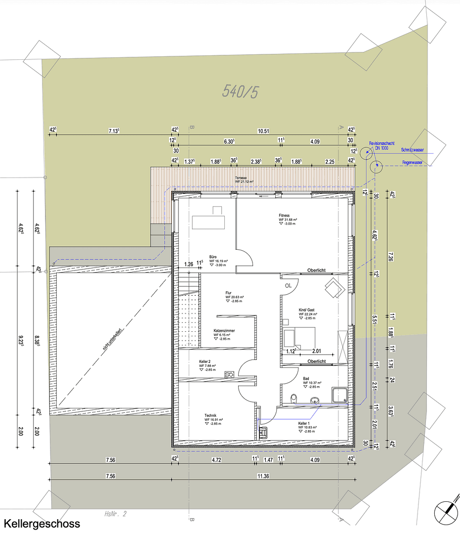
Ve sklepě byla využívána tři místnosti jako dětské pokoje. Jedna další dětská místnost disponuje posuvnými dveřmi s východem do zahrady. Navíc jsou zde dvě skladovací místnosti, dále pak kotelna a technická místnost. K dispozici je také koupelna se sprchou a světlíkem.
V přízemí se nachází prostorný obývací a jídelní prostor, který je spolu s kuchyní navržen jako otevřený koncept. Prostor je opticky oddělen regálem z modřínu, přesto však zůstává jako jeden celek. Z obývacího pokoje je vstup do zimní zahrady o rozloze přibližně 50 m².
Kuchyně je vybavena kvalitní vestavěnou sestavou, včetně vestavěné kávovaru a spotřebičů značky Neff. V kuchyňském bloku je integrován truhlářský stůl. Spižírna je přístupná ze dvou stran. Dále je zde také toaleta pro hosty. V obývacím pokoji se nachází výkonný kamnovod na dřevo. Garáž a dílna jsou obloženy dlažbou a poskytují prostor pro dvě vozidla i další využití.
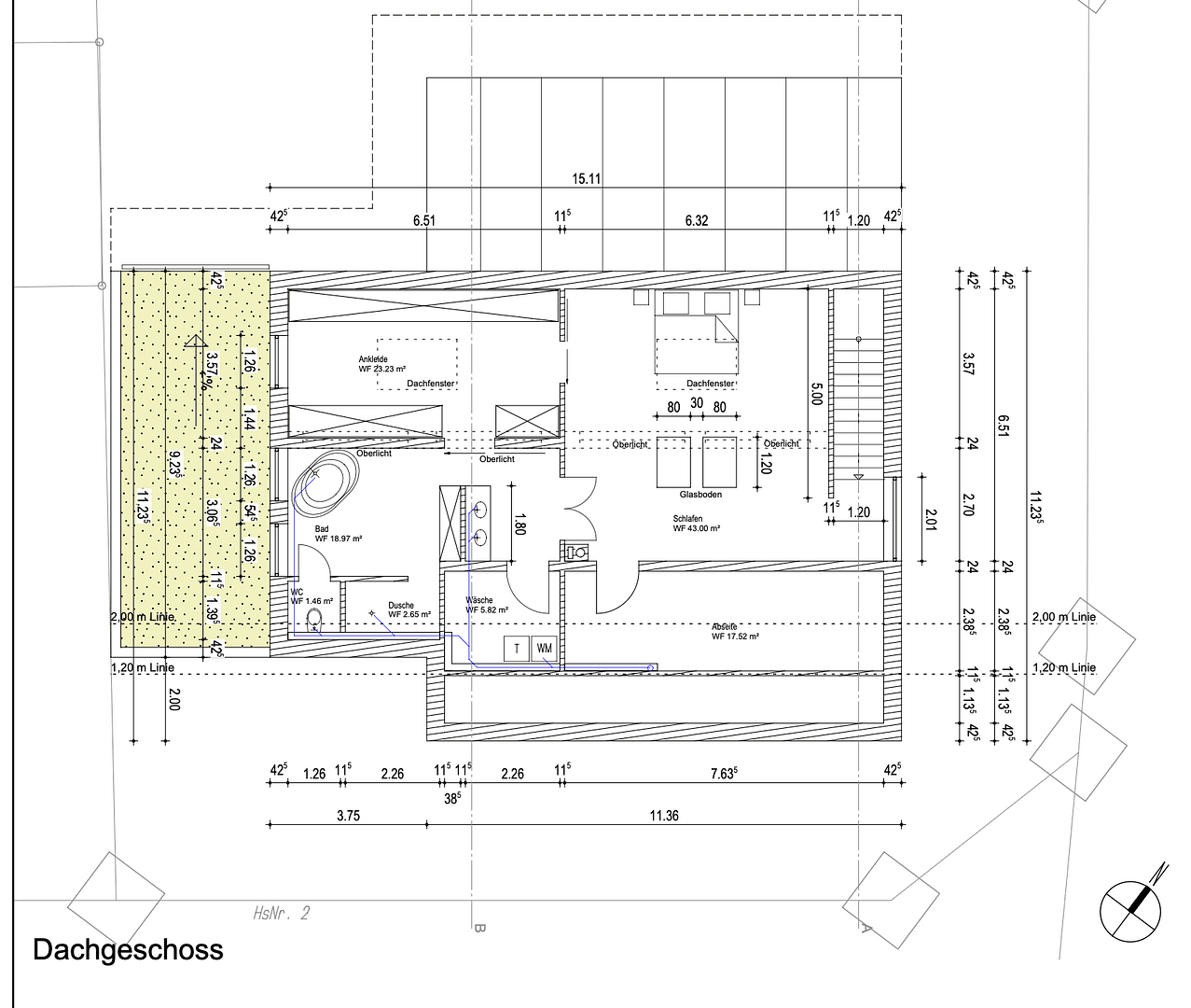
V patře jsou integrovány dvě přístupné skleněné plochy ve podlaze. Ty vedou denní světlo přímo do obytné části pod nimi a vytvářejí tak viditelné propojení mezi jednotlivými patry. Patro disponuje velkou koupelnou, velmi prostornou šatnou a samostatnou prádelnou. Celé patro je obloženo parketami. I v přízemí jsou položeny parkety, v designu rybí kost.
Topení je zajištěno pomocí vzduch-voda tepelného čerpadla IDM Aero Alm 4–12. Podlahové topení je instalováno v celém domě. Centrální ventilační systém značky Zehnder s předohřívačem zajišťuje kontrolované přivádění a odvod vzduchu. Na střeše je instalována solární elektrárna o výkonu 10 kWp s 18 kWh baterií a funkcí nouzového napájení.
Dům je koncipován jako chytrý dům. Základem je systém KNX, který je možné alternativně plně ovládat přes Apple HomeKit. Elektroinstalace je provedena se 5 vodiči, což umožňuje cílené spínání zásuvek. U vchodu je začleněna kamera a hlavní dveře jsou vybaveny čtečkou otisků prstů. V garáži se nachází nástěnná nabíječka o výkonu 11 kW.
Vnitřní dveře v domě jsou výsledkem truhlářské práce.
Dům je určen pro kupce, kteří hledají prostorné bydlení a kladou důraz na solidní konstrukci, promyšlené rozložení místností a moderní technologie.
Mengkofen je obec v okrese Dingolfing-Landau v Dolním Bavorsku. Lokalita domu „Am Freibad“ poskytuje klidné, ale přesto dobře dostupné bydlení. V bezprostředním okolí jsou dostupné obchody pro běžné potřeby, dále lékaři a školy. Dobrá dopravní dostupnost umožňuje rychlé cesty do okolních měst a k důležitým dopravním spojnici.
Parametry nemovitosti
| Stáří | Nad 50 let |
|---|---|
| Číslo inzerátu | 970277 |
| Užitná plocha | 343 m² |
| Celkem podlaží | 3 |
| Stav | Velmi dobrý |
|---|---|
| PENB | A - Mimořádně úsporná |
| Plocha pozemku | 657 m² |
| Cena za jednotku | 3 936 € / m2 |
Co tato nemovitost nabízí?
| Sklep | |
| MHD 1 minuta pěšky |
| Garáž | |
| Parkování | |
| Terasa |
V okolí nemovitosti najdete
Stále hledáte to pravé?
Nastavte si hlídacího psa. Nabídky vybrané na míru dostanete souhrnně 1× denně e-mailem. S Premium profilem máte k ruce hlídačů rovnou 5 a když se něco objeví, informují vás obratem.





























