
Pronájem bytu 2+1 • 61 m² bez realitky, Severní Porýní-Vestfálsko
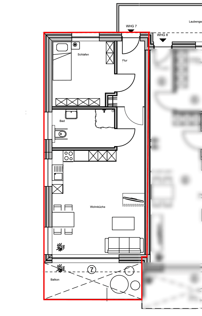
, Severní Porýní-VestfálskoMHD 1 minuta pěšky • Výtah • ParkováníK pronájmu je nabízena moderní dvoupokojový byt v horním patře rodinného domu. Byt se odevzdává po zrekonstruování. Obytná plocha činí 61 m², navíc je k dispozici vlastní úložna ve sklepě. Dále je možno pronajmout parkovací místo přímo na pozemku. Díky promyšlenému dispozičnímu řešení a průchodu před byty má každý byt samostatný přístup a samostatné vstupní dveře.
Světlý byt je vybaven až ke stropu sahajícími okny, vinylovými podlahovými krytinami a moderně obloženou koupelnou.
Užijte si široký výhled a klidnou polohu na okraji čtvrti s velmi dobrým spojením do Mindenu.
Trávníková plocha a vjezd na dvůr jsou společné prostory, které jsou udržovány a spravovány najatým domovním dozorem.
Samozřejmě jsou splněny požadavky energetické úsporné vyhlášky (EnEV) podle standardu KFW-55.
Nájem / Příplatky / Kauce
Základní nájem: 790,00 EUR
Příplatky (vedlejší náklady celkem): 150,00 EUR
Nájem parkovacího místa: 25,00 EUR
Kauce: 2.370,00 EUR
Popis lokality
Häverstädt je čtvrť města Minden ve východním Porýní-Vestfálsku a nachází se jihozápadně od centra, u úpatí pohoří Wiehen, přímo u Häverstädter Berg.
Nejbližší autobusová zastávka je dosažitelná pěšky. Také volnočasové atrakce, jako jsou památník císaře Viléma nebo kostel Kreuzkirche, jsou k vyzkoušení na krátký výlet.
Město či venkov, klid nebo ruch – Minden nabízí vše: práci, vzdělání, bydlení, volný čas – místo, kde se všechny aspekty spojují do obyvatelného a funkčního společného celku.
Specifikace bytu:
• 2 pokoje
• 1 koupelna
• Balkon
• Podlahové krytiny: vinyl, dlaždice
• Trojitě zasklená plastová okna
• Sprcha bez prahu
• Žaluzie
• Výtah
• Úložna ve sklepě
• Okenní parapety z přírodního kameninu
• Vzduchové tepelné čerpadlo
• Podlahové vytápění
• Travnatá plocha (společná)
SWE Immobilia GmbH
Schiederstr. 47
32839 Steinheim
+49 (0) 5233 9546763
info@swe-immobilia.de
Zastoupená jednatelem: Daniel Isaak
Registrační soud GmbH: Okresní soud v Paderbornu
Registrační číslo GmbH: HRB 15684
Dozorový orgán: Okres Höxter
Dotazy makléřů nejsou vítány! Podle § 7 UWG jsou nevyžádané kontakty makléřů bez výslovného souhlasu příjemce zakázány!
V okolí nemovitosti najdete
Stále hledáte to pravé?
Nastavte si hlídacího psa. Nabídky vybrané na míru dostanete souhrnně 1× denně e-mailem. S Premium profilem máte k ruce hlídačů rovnou 5 a když se něco objeví, informují vás obratem.





