
Pronájem bytu 3+1 • 95 m² bez realitky, Dolní Sasko
Příjemný světlý půdní byt ve středu města Hildesheim. Díky straně od ulice s nádherným výhledem přes střechy Hildesheimu nabízí byt naprostý klid. Obývací pokoj má velká ateliérová okna směrem na jih, a proto je obzvlášť světlý.
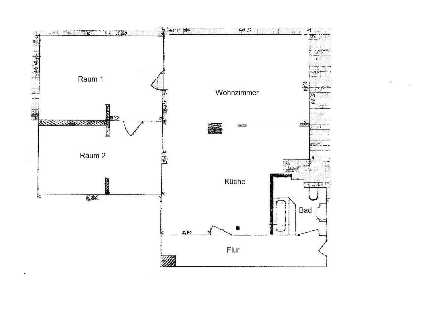
Byt se skládá ze tří velkých místností a hezké koupelny s vanou a oknem.
Byt se nachází v klidné vedlejší ulici v centru Hildesheimu.
Veškerá doprava, školy a možnosti nákupu jsou v bezprostřední blízkosti. V okolí je také několik parkovacích míst.
- Laminát ve všech obytných prostorách
- Vestavěná kuchyně s varnou deskou, troubou a myčkou na nádobí
- Koupelna s vanou a oknem, obklady v italsko-toskánském stylu s mušlovým lemem
- Pračka
- Laminát ve všech obytných místnostech
- Domovní interkom
Prosíme o první kontakt e-mailem se sdělením vašeho telefonního čísla.
Uveďte prosím informace o vaší soukromé a pracovní situaci včetně čistého příjmu a počtu osob.
V okolí nemovitosti najdete
Stále hledáte to pravé?
Nastavte si hlídacího psa. Nabídky vybrané na míru dostanete souhrnně 1× denně e-mailem. S Premium profilem máte k ruce hlídačů rovnou 5 a když se něco objeví, informují vás obratem.





