
Pronájem kanceláře • 120 m² bez realitkyBuckower Damm 235 Berlin Buckow Berlin 12349
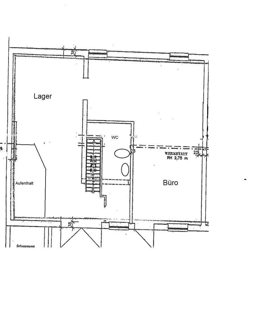
Buckower Damm 235 Berlin Buckow Berlin 12349MHD 1 minuta pěšky • ParkováníPronajímá se na dvoře pozemku Buckower Damm 235 obchodní jednotka s kanceláří, pokojem pro odpočinek a skladovou plochou v přízemí o přibližně 120 m². Na pozemku se dále nachází truhlářství/kuchyňské studio.
Obchodní jednotka se nachází nedaleko křižovatky Buckower Damm / Johannisthaler Chaussee a je díky několika autobusovým linkám dobře dopravně napojena. Nejbližší příjezdy AB (Gradestr. a Johannisthaler Chaussee) jsou vzdáleny asi 4 km.
Kancelář a přilehlý prostor jsou vybaveny laminátovou podlahou. Do skladu vede druhý, větší vstup.
Energetický průkaz je v žádosti.
Parametry nemovitosti
| Dostupné od | 1. 1. 2026 |
|---|---|
| Číslo inzerátu | 970392 |
| Cena za jednotku | 10 € / m2 |
| Stav | Dobrý |
|---|---|
| Plocha kanceláře | 120 m² |
Co tato nemovitost nabízí?
| MHD 1 minuta pěšky |
| Parkování |
V okolí nemovitosti najdete
Stále hledáte to pravé?
Nastavte si hlídacího psa. Nabídky vybrané na míru dostanete souhrnně 1× denně e-mailem. S Premium profilem máte k ruce hlídačů rovnou 5 a když se něco objeví, informují vás obratem.







