Pronájem kanceláře • 275 m² bez realitkyLandsberger Straße 187 München Laim Bayern 80687
Landsberger Straße 187 München Laim Bayern 80687MHD 1 minuta pěšky • Výtah • ParkováníVyužijte tuto jedinečnou příležitost a umístěte vaši společnost do strategicky výhodné lokality v Mnichově!
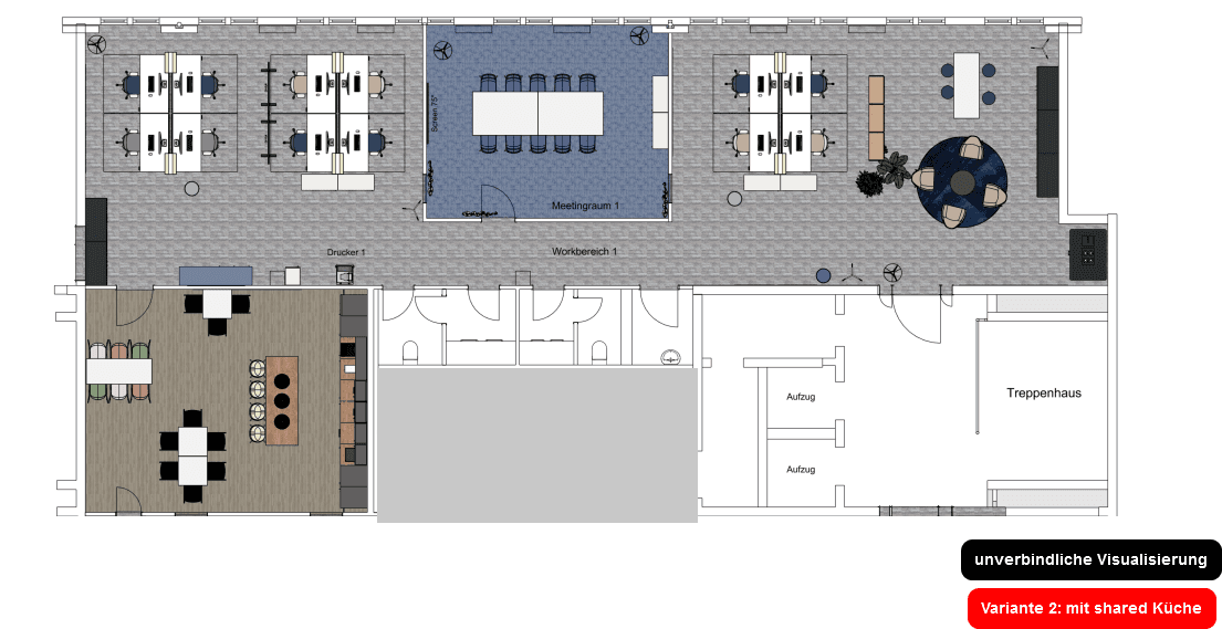
Nabízíme vám na základě podnájemní smlouvy působivě prostornou a rozlehlou částečnou průmyslovou plochu o celkové rozloze cca 275 m². Prostor se vyznačuje otevřeným a flexibilním řešením, které vám poskytne maximální volnost při realizaci vašich individuálních potřeb.
Ať už hledáte moderní open-space kancelář, reprezentativní showroom nebo agenturu s tvůrčím prostorem – zde prakticky neexistují hranice pro vaše nápady. Prostornost zaručuje produktivní a příjemnou pracovní atmosféru s dostatkem místa pro váš tým, zákazníky i další růst.
Vynikající kancelářská lokalita a infrastruktura
Nemovitost se nachází ve vynikající a zavedené obchodní čtvrti západní části Mnichova, v čtvrti Laim (PSČ 80687). Ulice Landsberger Straße patří mezi nejdůležitější a nejfrekventovanější tahy bavorské metropole, čímž zaručuje vysokou viditelnost a výbornou dostupnost.
Dopravní spojení
Osobní automobil: Přímá poloha ulice Landsberger Straße zajišťuje rychlé napojení na nadregionální silniční síť. Most Donnersbergerbrücke a tím i Mittlere Ring jsou vzdáleny jen několik minut jízdy. Podzemní garáž nabízí parkovací místa přímo v budově (pokud jsou k dispozici).
Veřejná doprava (ÖPNV): Napojení na veřejnou dopravu je ideální a zajišťuje rychlé spojení do centra města a k hlavním dopravním uzlům:
• S-Bahn: Zastávka Laim nebo Donnersbergerbrücke (v závislosti na přesné poloze a preferencích) nabízí napojení na různé linky S-Bahn.
• Tramvaj/Autobus: Několik tramvajových a autobusových linek projíždí v bezprostřední blízkosti a optimálně propojují lokalitu.
Novodobý stav: Kancelářské prostory byly v roce 2025 zcela znovu a kvalitně renovovány.
Otevřený pracovní svět: Moderní koncept open-space pro maximální flexibilitu a komunikaci.
Volitelně můžete využít zcela novou kuchyň nebo si zařídit vlastní menší kuchyňské řešení – volba je na vás!
Zcela nový, vysoce kvalitní koberec ve všech kancelářských prostorách.
Struktura prostoru: Světlá, moderní zasedací místnost, pracovní zóny vymezené v otevřeném uspořádání.
Další výhoda: Převzetí novodobého kancelářského vybavení
Ušetřete si čas a náklady na nákladnou novou pořízení! Existuje výlučná možnost převzít celé vysoce kvalitní a moderní kancelářské vybavení (zakoupené v roce 2024) za férovou kupní cenu:
• Čistá ergonomie: Výškově nastavitelná stoly (elektricky) pro zdravé pracovní prostředí.
• Komfort a design: Moderní kancelářské židle (ergonomicky optimalizované).
• Zasedací sestava: Elegantní nábytek pro zasedací místnosti s vysoce kvalitními židlemi (ze stylové filcoviny).
• Úložné prostory: Praktické a designově orientované příborní skříně v celém open space.
Vaše výhoda: Okamžitý a bezproblémový nastěhování do plně vybavené a moderní kanceláře!
Poskytovatel
Randstad Deutschland GmbH & Co. KG
Frankfurter Straße 100, 65760 Eschborn
Tel. 06196 4080
Email: realestate@randstad.de
Soud: AG Frankfurt am Main, HRA 30640
Komplementář: Randstad Deutschland GmbH, LG Wiener Neustadt, FN 433136 s
Pobočka: Eschborn, AG Frankfurt am Main, HRB 102380
Vedení: Hendrik Viswat (předseda), Dr. Sebastian Göbel, Susanne Wißfeld
DIČ: DE 123 047 934
Parametry nemovitosti
| Stáří | Nad 50 let |
|---|---|
| Podlaží | 3. podlaží |
| Plocha kanceláře | 275 m² |
| Stav | Velmi dobrý |
|---|---|
| Číslo inzerátu | 971297 |
| Cena za jednotku | 23 € / m2 |
Co tato nemovitost nabízí?
| Parkování |
| Výtah | |
| MHD 1 minuta pěšky |
V okolí nemovitosti najdete
Stále hledáte to pravé?
Nastavte si hlídacího psa. Nabídky vybrané na míru dostanete souhrnně 1× denně e-mailem. S Premium profilem máte k ruce hlídačů rovnou 5 a když se něco objeví, informují vás obratem.









