
Pronájem bytu 3+1 • 91 m² bez realitkyKarl-Marx-Straße 8, , Braniborsko
Novostavba činžovní domu s devíti pronajatelnými byty, bezbariérovým přístupem a výtahem, dokončeno v roce 2023.
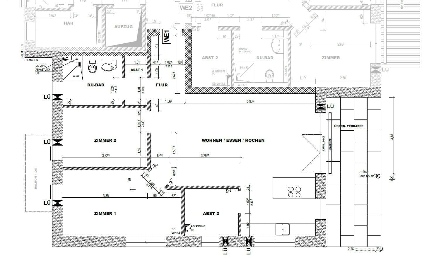
Třípokojový byt se nachází v přízemí a nabízí 90,4 m² obytné plochy, prostornou terasu s jihovýchodní orientací a zahradu.
Nemovitost je vybavena výtahem, podlahovým vytápěním i chlazením, terasami a balkony a zahrnuje také venkovní parkovací místa.
Budova byla navržena a postavena jako účinný dům (KfW 40+) s nejvyšší energetickou účinností.
Tepelná energie je zajištěna moderními vzduchovými tepelnými čerpadly, dále je k dispozici fotovoltaická elektrárna s modelem „nájemnické elektřiny“ a úložištěm elektřiny.
Nemovitost se vyznačuje moderní architekturou s otevřenými půdorysy a značkovou vestavěnou kuchyní.
Koupelny jsou moderně zařízené, vybavené bezprahovou dešťovou sprchou, velkoformátovými dlaždicemi z porcelánové keramiky a značkovými sanitárními zařízeními.
Byty disponují kvalitní designovou podlahou.
Byt je k nastěhování.
Hohen Neuendorf patří k okrsku Oberhavel ve spolkové zemi Braniborsko a nachází se na severním okraji hlavního města Německa, Berlína.
V docházkové vzdálenosti je zastávka autobusu linky 822. Nadregionální destinace jsou dobře dostupné díky nedaleké železniční lince RB20. Pěšky se dostanete k několika restauracím, pekárnám, kavárnám, lékařům a dvěma supermarketům. Také zde najdete několik zelených parků a rekreačních zón, fitness centra, módní obchody, dva bary a knihkupectví.
Díky spojení linkami S1 a S8 přes nádraží Hohen Neuendorf a dobrému přístupu na dálnici A111 se dostanete jak do čtvrti City West, tak na Friedrichstrasse přibližně za 30 minut.
Impresum
Berlisax Vermögensverwaltungs-GmbH
Birkbuschstr. 91
12167 Berlín
Zastoupeno jednatelem s plnou mocí:
Thorben Riesen
Kontakt:
Telefon: 030 897 45700
E-mail: info@berlisax.eu
Zápis do rejstříku:
Zapsáno u okresního soudu Charlottenburg
Registrační číslo: HRB 202341
V okolí nemovitosti najdete
Stále hledáte to pravé?
Nastavte si hlídacího psa. Nabídky vybrané na míru dostanete souhrnně 1× denně e-mailem. S Premium profilem máte k ruce hlídačů rovnou 5 a když se něco objeví, informují vás obratem.















