
Prodej domu 6+1 • 177 m² bez realitky, Bavorsko
, BavorskoMHD do minuty pěšky • ParkováníPři velmi pečlivě udržované poloduplicitní rodinné vily se jedná o atraktivní nemovitost s promyšleným dispozicemi a luxusním vnitřním vybavením.
Dům byl postaven v roce 2001 a je vytápěn plynem, ohřev teplé vody je podpořen solární termickým zařízením. Vlastní elektřina je vyráběna pomocí fotovoltaické elektrárny. K dispozici je dvojitý krytý parkovací stání (carport) a za ním umístěná skladovací místnost pro uložení dřeva, pneumatik a zahradního nářadí nebo k zaparkování kol.
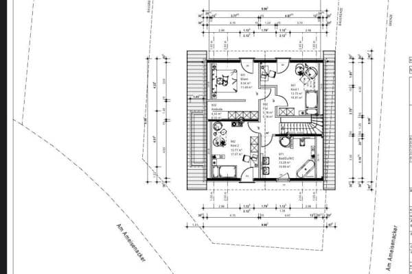
Přízemí:
– prostorná vstupní hala s chodbou, schodištěm, kuchyní, obývacím a jídelním pokojem s panoramatickým krbem, hostinskou toaletou, spižírnou a balkonem
Patro:
– 3 ložnice a velká relaxační koupelna
Podkrovní prostor je možný k dokončení.
Z venkovní schodiště vede do zahrady s terasou a do sklepa, který má samostatný přístup přes vedlejší vstupní dveře.
Sklep:
– velký obytný prostor, sprchová toaleta, prádelna, skladovací místnost, technická místnost a další úložný prostor
Vybavení:
Technika:
• Cisternu s kapacitou 4 300 litrů, pro toalety a zavlažování zahrady (domovní vodní čerpadlo)
• 4 vnější připojovací body
• Plynový kotel s podporou solární termie pro ohřev teplé vody s akumulační nádrží 405 l
• Fotovoltaická elektrárna o výkonu 11,0 kWp s 10 kWh solárním akumulátorem a inteligentní wallbox od 12/2023
• Dům je vhodný pro tepelná čerpadla (podpora byla schválena již v prosinci 2024 a je platná 3 roky)
• Napájení elektřiny pro ložnici a dětský pokoj
• SAT připojení se čtyřvysílačovým LNB (Quattro-LNB)
• Optické vlákno (fiber)
• Videovrátník, nový 2022
• Vstupní dveře, nové 2022
• Vedlejší vstupní dveře, renovovány 2022
• Sklep – příprava pro kuchyňská připojení
• Velká venkovní rolety připravené pro motorické ovládání
Interiér:
• Kvalitní interiérové dveře s dýhovaným masivním dřevem
• Parketová podlaha v obývacím a jídelním pokoji
• Dlažba v přízemí
• V obytném prostoru radiátory pro přímé vytápění, v koupelně kreativní radiátor a podlahové topení
• Panoramatický krb se skleněnou tabulí
• Kvalitní koupelnové vybavení
• Granitové parapety s zaoblenými okraji
• Sklep je vybudován ve výšce obytného prostoru s plnohodnotnou podlahovou maltou odpovídající obytnému prostoru
• Podlahy ve sklepě jsou obložené dlažbou
• Izolace šikmých střech a stropu mezi patrem a podkrovím
Exteriér:
• Přestřešený vstupní prostor
• Dvojitý carport s podkrovím a skladovací místností, který je přístupný také z kuchyně
• Jihozápadní balkon a terasa, oba s markýzami
• Vložené dachfenster (okna ve střeše) v ložnici, 2010
• Střešní okna s venkovními roletami, u dvou ze tří ovládaných solárně
• Exponovaná okna a dveře s bezpečnostním zasklením (VSG sklem) a proti vloupání odolnými klikami
• Všechna okna jsou vybavena dodatečnou ochranou proti vyklopení
• Proti hmyzu jsou u vybraných oken instalovány sítě
• Granitové parapety
• Balkon kompletně renovován v roce 2018 (podlahová krytina a kovové zábradlí, práškově lakované)
• Francouzské balkony s novými zábradlími, 2018
• Terasa s novou podlahovou úpravou (2020)
Dům byl udržován v excelentním stavu a průběžně modernizován.
Exkluzivní poloduplicitní rodinný dům se nachází na klidné příjezdové komunikaci na okraji oblíbené a tiché rezidenční čtvrti v Haibach-Grünmorsbach.
Z příjemného místa Haibach je velmi dobře dostupné město Aschaffenburg, oblast Vorspessart s půvabným okolím, jakož i metropolitní oblast Rýn-Mohan. Haibach nabízí obrovské možnosti pro volnočasové aktivity a vynikající infrastrukturu.
Haibach patří k nejoblíbenějším obcím v okolí Aschaffenburgu.
Místo disponuje:
• Rozsáhlými možnostmi nákupů běžných potřeb – potravinové trhy, řeznictví a pekárny, módní butiky, knihkupectví, poštou, obchod se zvířecími potřebami – dále prakticky umístěnými lékaři (praktickými, internisty, dětskými lékaři, zubními lékaři), veterinářem, lékárnami, fyzioterapeutickými ordinacemi;
• Bankami;
• Mateřskými školami a jeslemi, dále základními a středními školami, reálnkou školou v Bessenbachu a dalšími středními školami, jakož i vysokou školou v Aschaffenburgu.
Nejbližší autobusová zastávka je dosažitelná pěšky během pouhých 5 minut. Jezdí zde několik autobusových linek.
V obci je pestrá nabídka sportovních a kulturních aktivit, například sportovní kluby, krytý bazén, posilovna, kulturní a sportovní hala, kavárny, restaurace (italská, řecká, asijská, německá).
Největší nemocnice regionu – Klinikum Aschaffenburg – se nachází 1 km od Haibachu.
V blízkosti Haibacher Schweiz se nacházejí přírodní pěší trasy a stezky, dále vysokolezecká dráha a zvířecí park téměř přímo u domu.
Centrum Aschaffenburgu a hlavní nádraží jsou dosažitelné autem přibližně za 10 minut, veřejná doprava je centrálně navázána v Aschaffenburgu. K dispozici jsou také cyklostezky v okolí Haibachu, které rozšiřují možnosti dopravy.
Autostráda A3 (směrem na Frankfurt/Würzburg) s výjezdy AB Ost, Goldbach, Hösbach a Bessenbach je vzdálena maximálně 15 minut, letiště Frankfurt/Main je po A3 vzdáleno cca 45 km a Würzburg cca 75 km. Výborné dopravní spojení dále zajišťují dobře dostupné státní silnice B8, B26, B469.
Další detaily:
• Vložené dachfenster (okna ve střeše) v ložnici, 2010
• Balkon kompletně renovován v roce 2018 (podlahová krytina a kovové zábradlí, práškově lakované)
• Francouzské balkony s novými zábradlími, 2018
• Terasa s novou podlahovou úpravou (2020)
• Krásně upravená zahrada, ohraničená nově vybudovanou zahradní zdí s bránou vedoucí k pěší stezce (2020)
• Videovrátník, nový 2022
• Vstupní dveře, nové 2022
• Vedlejší vstupní dveře, renovovány 2022
• Fotovoltaická elektrárna o výkonu 11,0 kWp s 10 kWh solárním akumulátorem a inteligentní wallbox od 12/2023
• Dům je vhodný pro tepelná čerpadla – podpora pro instalaci tepelného čerpadla byla schválena již v prosinci 2024 a je platná 3 roky.
Po předložení dokladu o vlastním kapitálu a/nebo potvrzení o financování je možné domluvit prohlídku.
V okolí nemovitosti najdete
Stále hledáte to pravé?
Nastavte si hlídacího psa. Nabídky vybrané na míru dostanete souhrnně 1× denně e-mailem. S Premium profilem máte k ruce hlídačů rovnou 5 a když se něco objeví, informují vás obratem.




























