Pronájem domu 5+1 • 149 m² bez realitkyLerchenfelder Hof, , Bavorsko
Lerchenfelder Hof, , BavorskoMHD 6 minut pěšky • ParkováníTento exkluzivní rodinný dům s obytnou plochou 148,5 m² (užitná plocha 200 m²) se v současné době staví na pozemku o rozloze 316,84 m² v oceňované nové developerské čtvrti v Köferingu.
Dokončení naší nemovitosti v Lerchenfelder Hof je plánováno na začátek roku 2026 – nastěhování je možné od února/března 2026.
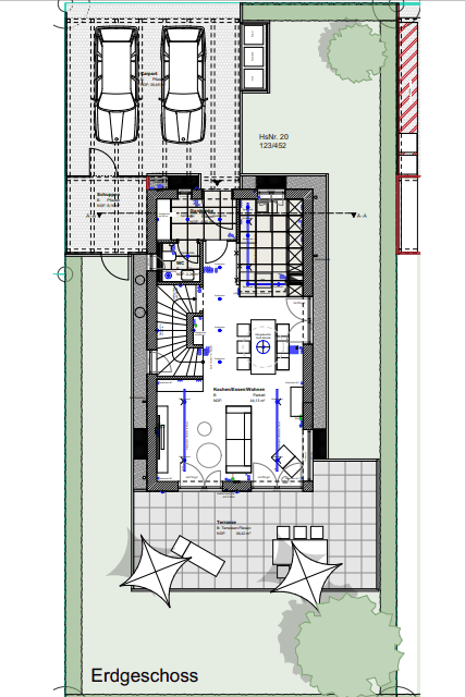
V přízemí vás přivítá prostorný a světlý obývací a jídelní kout s přístupem na terasu a do zahrady. Kvalitní vestavěná kuchyně z Kuchyňského domu Frey s kuchyňským ostrůvkem a značkovými elektrospotřebiči od výrobců Miele, Siemens a Neff nechává žádné přání neuspokojené a je dokonale integrována do obytného prostoru.
V patře se nacházejí dvě velká pokoje a moderní koupelna s luxusním vybavením. Kompletně dokončené podkroví nabízí dva další světlé pokoje a navíc další kvalitní koupelnu – ideální jako spací, pracovní či rekreační prostor.
Úplně zkrojený sklep přidává další prostor: kromě domácího a technického prostoru jsou k dispozici také skladové a hobby místnosti. Je zde také integrované připojení pro saunu.
Vybavení osloví kvalitními materiály, mezi něž patří luxusní parkety ve všech obytných místnostech a stylové dlažby v kuchyni, vstupní části a koupelnách.
Terasa s přilehlou zahradou nabízí volný, aktuálně nezastavěný výhled a v budoucnu bude přímo sousedit se zelenou plochou – perfektní pro relaxaci ve volném čase.
Dva parkovací místa před domem a malá předsíň doplňují nabídku.
Dům je stavěn podle nejmodernějších standardů: KfW-55 efektivní dům s tepelné čerpadlo, fotovoltaická elektrárna s úložištěm a decentralizovaným větracím systémem s rekuperací tepla – pro ekologické a nákladově efektivní bydlení.
Vezměte prosím na vědomí, že kromě nájemného se účtuje měsíční nájemné 100 € za fotovoltaiku.
Ať už jde o rodinný život, stylové bydlení nebo pohodové večery na terase – tento domov spojuje funkčnost, komfort a nadčasovou eleganci.
Domácí mazlíčci nejsou bohužel povoleni.
Köfering je okouzlující obec jižně od Regensburgu s vynikající infrastrukturou a vysokou kvalitou života.
Nakupovací možnosti, lékaři, mateřská školka a školy se nacházejí v bezprostřední blízkosti.
Díky výhodné dopravní dostupnosti jsou velcí zaměstnavatelé jako BMW, Krones, Osram, Aumovio, Schaeffler a Siemens dosažitelní během 10–15 minut, rovněž centrum města Regensburg nebo zaměstnavatelé jako Nemocnice Regensburg či Univerzita/OTH, které jsou snadno dostupné.
Okolí navíc nabízí řadu volnočasových aktivit a zve k relaxaci uprostřed přírody – ideální pro rodiny i dojíždějící.
V okolí domu vzniká moderní, rodinně orientovaná rezidenční čtvrť s malými zelenými plochami a příjemnou sousedskou atmosférou – ideální místo pro nastěhování a pocit domova.
Vybavení
• Kompletně zkrojený sklep (domácí prádelna, technická místnost, sklad, místnost pro koníčky)
• Kvalitní vestavěná kuchyně s kuchyňským ostrůvkem (značkové spotřebiče Miele, Siemens, Neff)
• Vzduch-voda tepelné čerpadlo
• Fotovoltaická elektrárna s úložištěm (plus 100 € měsíční nájemné)
• Podlahové vytápění
• Vysoce kvalitní parketové podlahy
• Elegantní schodiště
• Moderní koupelny s nadstandardním vybavením
• Decentralizované větrání s rekuperací tepla
• Koupelna v patře: přístupná sprcha, vana, WC, dvojité umyvadlo s podstavcem
• Koupelna v podkroví: přístupná sprcha, WC, umyvadlo s podstavcem
• Samostatné hostinské WC v přízemí
• Terasa se zajištěnou zahradou
• Elektrická žaluziová okna
• 2 parkovací místa před domem
• Kompletně zkrojený sklep s domácí prádelnou, místností pro koníčky a skladem
Pro pronájem si přejeme zájemce s prokazatelným vlastním příjmem.
V případě zájmu nás prosím nejprve kontaktujte e-mailem a zašlete nám následující dokumenty:
• Vyplněné prohlášení nájemce
• Aktuální výpis SCHUFA bonity
• Poslední tři výplatní pásky
• Stručné představení (počet osob, povolání, požadované datum nastěhování)
Prohlídky budou domluveny pouze s uchazeči, jejichž dokumentace je kompletní. Děkujeme za pochopení.
V okolí nemovitosti najdete
Stále hledáte to pravé?
Nastavte si hlídacího psa. Nabídky vybrané na míru dostanete souhrnně 1× denně e-mailem. S Premium profilem máte k ruce hlídačů rovnou 5 a když se něco objeví, informují vás obratem.











