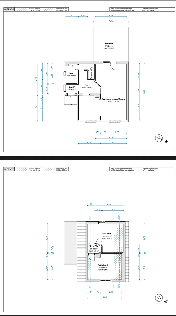
Prodej domu 4+1 • 89 m² bez realitkyBremerhaven Buschkämpen Niedersachsen 27576
Bremerhaven Buschkämpen Niedersachsen 27576MHD 4 minuty pěšky • GarážTento rodinný dům byl po celá léta s láskou udržován a opečováván s důrazem na detaily. Nabízí přesně tu správnou velikost pro rodiny a páry, které ocení světlý a příjemný obytný prostor. Přes útulnou dřevěnou terasu se dostanete do nádherně upravené zahrady se zahradním domkem – místa pro dlouhé letní večery, hry, grilování a odpočinek.
Klidná obytná lokalita v Bremerhavenu Buschkämpen s dobrou infrastrukturou čtvrti.
Nákupní možnosti: EDEKA (Hans-Böckler-Str. 32b, Leherheide): cca 1,5 km.
Zastávka veřejné dopravy „Stadthalle“ (u Stadthalle Bremerhaven): cca 2,6 km.
„Městský úřad“ (oblast městského úřadu): cca 2,6–2,8 km.
Nádraží Bremerhaven-Lehe (regionální vlaky směřující do Bremenu/Cuxhavenu): cca 1,3 km.
Speckenbütteler Park: cca 2,1 km.
Obvodní lékařská ordinace, Hans-Böckler-Str. 70: cca 1,7 km (např. Dr. med. K.-L. Jahn / tým).
Mateřská škola, AWO Kinder- & Therapiezentrum „Max & Moritz“, Hans-Böckler-Str. 50: cca 1,5–1,6 km.
Školy: Fritz-Husmann-Schule (Debstedter Weg 84): cca 1,9 km.
Karl-Marx-Schule (základní škola Leherheide): cca 2,0–2,2 km.
Dům je nabízen s vysoce kvalitní vestavěnou kuchyní!
Prosím, žádné dotazy od realitních makléřů!
V okolí nemovitosti najdete
Stále hledáte to pravé?
Nastavte si hlídacího psa. Nabídky vybrané na míru dostanete souhrnně 1× denně e-mailem. S Premium profilem máte k ruce hlídačů rovnou 5 a když se něco objeví, informují vás obratem.












