
Prodej bytu 3+1 • 73 m² bez realitkyJar. Haška, Třebíč - Třebíč, Kraj Vysočina
Jar. Haška, Třebíč - Třebíč, Kraj VysočinaMHD 4 minuty pěšky • Výtah • Parkování • Sklep 3 m² • Lodžie 4 m²Tato nemovitost již od 18 783 Kč měsíčně s roční úrokovou sazbou od 4,29 %.
Prodej bytu 3+1 – Třebíč, ul. H. Haška – výhled, dva balkony, sklep, komora
Nemovitost má celkovou dispozici o výměře 71 m² a nachází se v 6. podlaží ze sedmi celkem s výtahem, což zajišťuje klidné a mírně vyšší umístění.
Byt je nevybavený, což dává budoucímu majiteli možnost zařídit si jej podle vlastních představ. Parkování je zajištěno.
V klidné části Třebíče u lesa. Byt má dvě lodžie s krásným výhledem, vyzděné jádro a je připraven k dokončení – kupující si může zvolit vlastní obklady, podlahy i kuchyňskou linku.
Součástí bytu je komora přímo v bytě, sklepní kóje a v domě je k dispozici kočárkárna. Ústřední vytápění, nízké provozní náklady, parkování před domem.
Lokalita je ideální pro rodiny i investory – klidné prostředí u lesa, výborná dostupnost MHD, obchodů i škol. Vzhledem k plánované výstavbě Dukovany 2 je nemovitost i výbornou investicí.
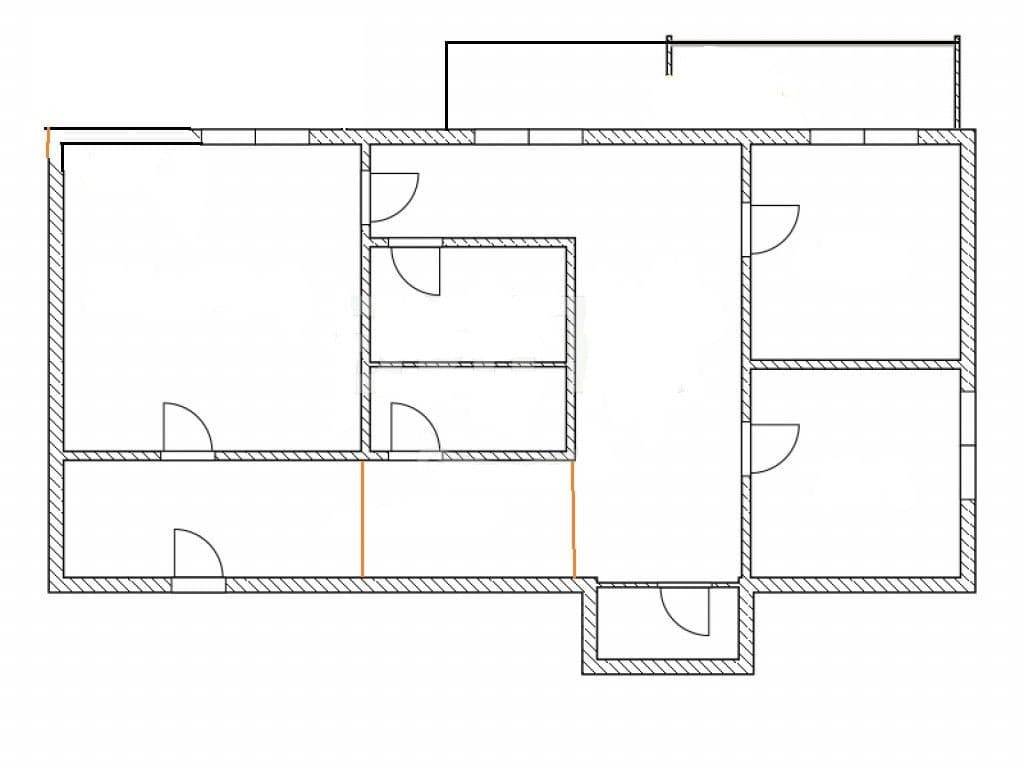
K půdorisu - oranžové je po vyzdění jádra, doplněn přibližně dvojtý balkón.
V případě zájmu mě prosím kontaktujte prostřednictvím komunikační platformy.
Dům je po celkové revitalizaci.
Nízké měsíční náklady.
Orientační cena k jednání.
Sale of 3+1 Apartment – Třebíč, H. Haška Street – view, two balconies, cellar, storage room
The property has a total area of 71 m² and is located on the 6th floor out of seven, with an elevator, ensuring a quiet and slightly elevated position.
The apartment is unfurnished, giving the future owner the opportunity to design it according to their own ideas. Parking is provided.
Located in a quiet part of Třebíč near the forest, the apartment features two loggias with a beautiful view, a solid brick core, and is ready to be finished – the buyer can choose their own wall coverings, flooring, and kitchen suite.
Included with the apartment is a storage room directly within the unit, a cellar compartment, and the building also offers a pram room. It comes with central heating, low operating costs, and parking available in front of the building.
The location is ideal for both families and investors – a peaceful environment near the forest with excellent access to public transport, shops, and schools. With the planned construction of Dukovany 2, the property also presents an excellent investment opportunity.
If interested, please contact me through the communication platform.
Parametry nemovitosti
| Dostupné od | 9. 12. 2025 |
|---|---|
| Konstrukce budovy | Panel |
| Vybaveno | Nevybaveno |
| Vytápění | Ústřední |
| Vlastnictví | Osobní |
| Umístění | Klidná část |
| Rizika | Prověřit » |
| Stav | Dobrý |
|---|---|
| Dispozice | 3+1 |
| Podlaží | 6. podlaží z 7 |
| Číslo inzerátu | 972196 |
| PENB | C - Úsporná |
| Užitná plocha | 73 m² |
| Cena za jednotku | 65 068 Kč / m2 |
Co tato nemovitost nabízí?
| Sklep 3 m² | |
| Výtah | |
| Parkování |
| Lodžie 4 m² | |
| MHD 4 minuty pěšky |
V okolí nemovitosti najdete
Tato nemovitost již od 18 783 Kč měsíčně s roční úrokovou sazbou od 4,29 %.
Stále hledáte to pravé?
Nastavte si hlídacího psa. Nabídky vybrané na míru dostanete souhrnně 1× denně e-mailem. S Premium profilem máte k ruce hlídačů rovnou 5 a když se něco objeví, informují vás obratem.










