Pronájem bytu 3+1 • 72 m² bez realitkyBergstraße 9, , Bádensko-Württembersko
Bergstraße 9, , Bádensko-WürttemberskoMHD do minuty pěšky • Výtah • GarážNabízený vícebytový dům se představuje jako moderní obytný celek postavený z kvalitního zděného materiálu. Celkově objekt obsahuje 6 prostorně navržených bytů k pronájmu, které zaujmou světlými dispozicemi, čistými liniemi a harmonickým pocitem z bydlení.
Ke každému bytu patří soukromá venkovní plocha ve formě balkonu nebo terasy, která rozšiřuje obytný prostor do volného prostředí a vytváří ideální místo pro uvolněné chvíle v každodenním životě.
Podzemní garáž nabízí obyvatelům chráněné parkovací možnosti, doplněné krátkými a praktickými cestami do domu. Navíc má každá bytová jednotka vlastní sklepní část.
Pro cyklisty jsou také k dispozici snadno přístupná parkovací místa pro kola, která usnadňují každodenní život a umožňují rychlé a bezproblémové využití.
Dům ve Windenreute se nachází v idylickém a klidném prostředí, obklopeném mírnými kopci a zelenými lesy. Umístění nabízí malebný výhled na okolní přírodu a je ideální pro milovníky přírody hledající klid a odpočinek. Současně je velmi dobré spojení s nedalekým městem Emmendingen, takže obchody, školy a další důležité zařízení jsou rychle dostupné. Blízkost turistických a cyklistických stezek činí dům atraktivním také pro venkovní aktivity. Windenreute je půvabná vesnice s přátelskou komunitou, což z ní činí ideální místo k životu.
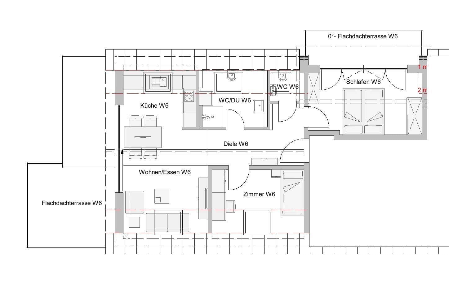
3+kk v přízemí | W6
s terasou, sklepním prostorem, parkovacím místem v podzemní garáži
a místem pro kolo
Obytná plocha: 67,73 m²
Vybavení:
• Kvalitní parketová a dlažební podlaha
• Přístup po schodišti nebo výtahu
• Bezbariérový přístup
• Podlahové vytápění
• Radiátory pro ohřev ručníků
• Moderně vybavené koupelny s WC a sprchou
Nájem: 1.656,00 €
plus provozní náklady: 300,00 €
plus parkovací místo: 90,00 €
V případě zájmu o byty prosíme o vyplnění osobního dotazníku (prostřednictvím QR kódu v inzerátu).
V okolí nemovitosti najdete
Stále hledáte to pravé?
Nastavte si hlídacího psa. Nabídky vybrané na míru dostanete souhrnně 1× denně e-mailem. S Premium profilem máte k ruce hlídačů rovnou 5 a když se něco objeví, informují vás obratem.

