
Pronájem bytu 3+1 • 91 m² bez realitkyBergstraße 9, , Bádensko-Württembersko
Bergstraße 9, , Bádensko-WürttemberskoMHD do minuty pěšky • Výtah • GarážNabízený vícebytový dům se představuje jako moderní obytný komplex postavený z kvalitního masivního materiálu. Celkově budova obsahuje 6 prostorných pronajímaných bytů, které zaujmou světlými prostorovými koncepty, čistými liniemi a harmonickým pocitem z bydlení.
Ke každému bytu náleží soukromá venkovní plocha ve formě balkonu nebo terasy, která rozšiřuje obytný prostor do volného vzduchu a vytváří ideální místo pro uvolněné chvíle v každodenním životě.
Podzemní garáž nabízí obyvatelům chráněné parkovací možnosti, doplněné krátkými, praktickými cestami do domu. Navíc má každá obytná jednotka vlastní sklepní část.
Pro cyklistické nadšence jsou rovněž k dispozici snadno přístupná místa na kola, která usnadňují každodenní život a umožňují jejich rychlé a bezproblémové využití.
Dům ve Windenreute se nachází v idylickém a klidném prostředí, obklopeném mírnými kopci a zelenými lesy. Poloha nabízí malebný výhled do okolní přírody a je ideální pro milovníky přírody, kteří hledají klid a odpočinek. Zároveň je výborně dostupné nedaleké město Emmendingen, takže obchody, školy a další důležitá zařízení jsou snadno dosažitelná. Blízkost turistických a cyklistických stezek činí dům atraktivním také pro venkovní aktivity. Windenreute je půvabná vesnice s přátelskou komunitou, což z ní činí ideální místo pro život.
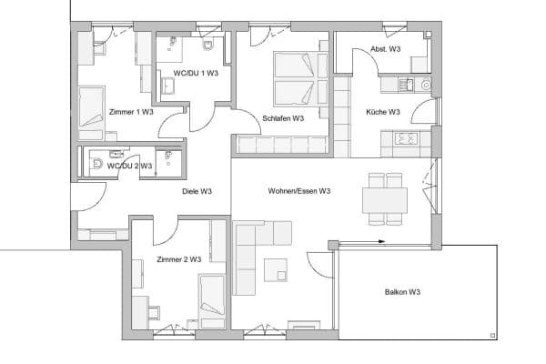
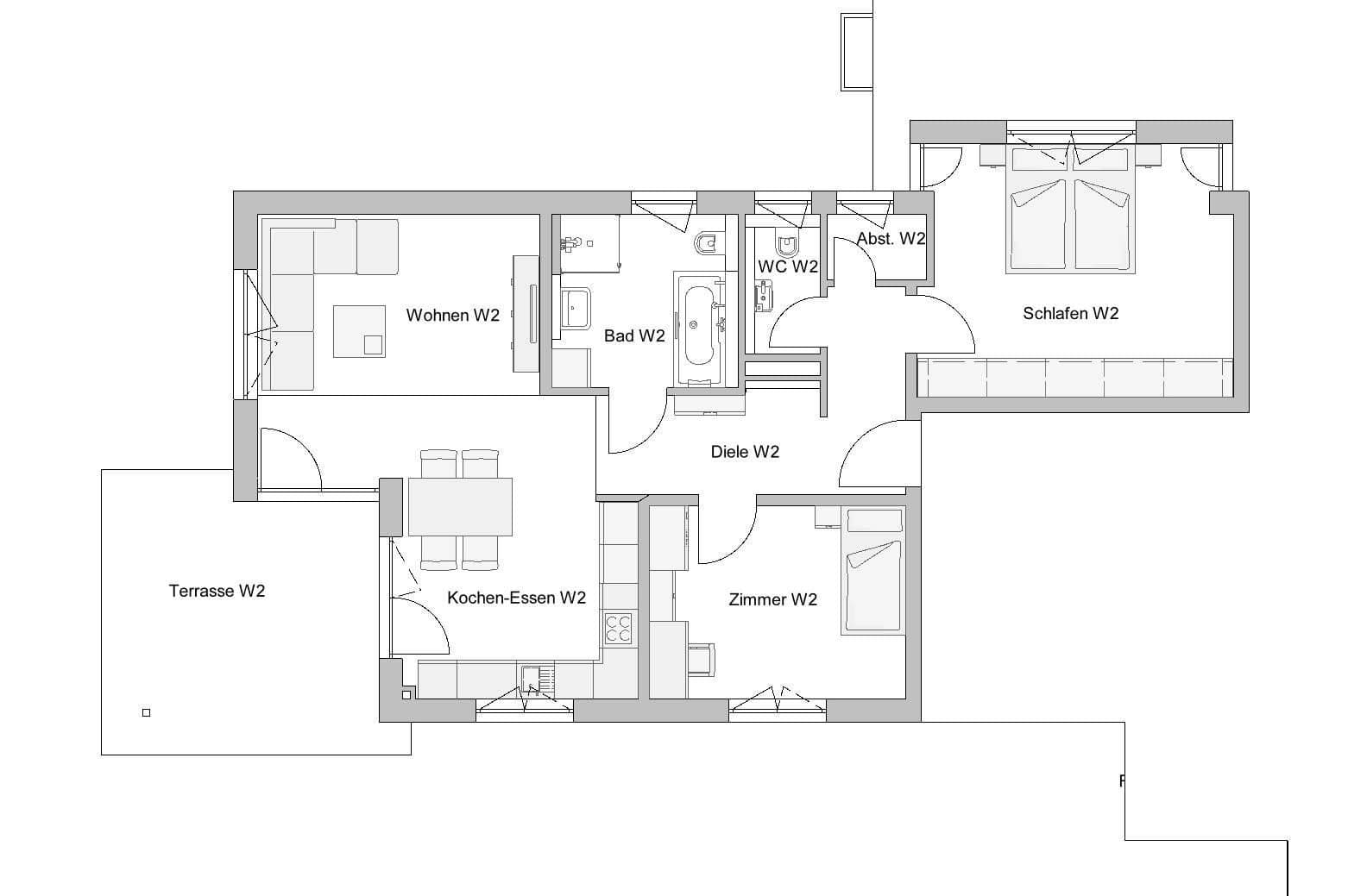
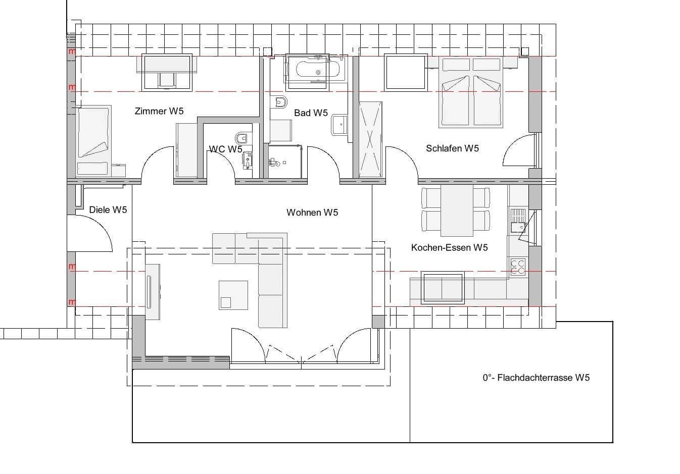
3-pokojový byt v přízemí a podkroví | W2 a W5 (podkroví 105,03 m², 1838 €)
s terasou, sklepní místností, místem v podzemní garáži a místem pro kolo
Obytná plocha: 104,94 m²
Vybavení:
• Kvalitní parketová a dlažební podlaha
• Přístup přes schodiště nebo výtah
• Bezbariérový přístup
• Podlahové vytápění
• Radiátor na ohřev ručníků
• Moderně vybavené koupelny s WC a sprchou
Nájem: 1.656,00 €
plus vedlejší náklady: 300,00 €
plus parkovací místo: 90,00 €
Máte-li zájem o byty, prosím vyplňte osobní údaje (přes QR kód v exposé).
V okolí nemovitosti najdete
Stále hledáte to pravé?
Nastavte si hlídacího psa. Nabídky vybrané na míru dostanete souhrnně 1× denně e-mailem. S Premium profilem máte k ruce hlídačů rovnou 5 a když se něco objeví, informují vás obratem.


