Pronájem kanceláře • 202 m² bez realitkyBremen Hemelingen Bremen 28207
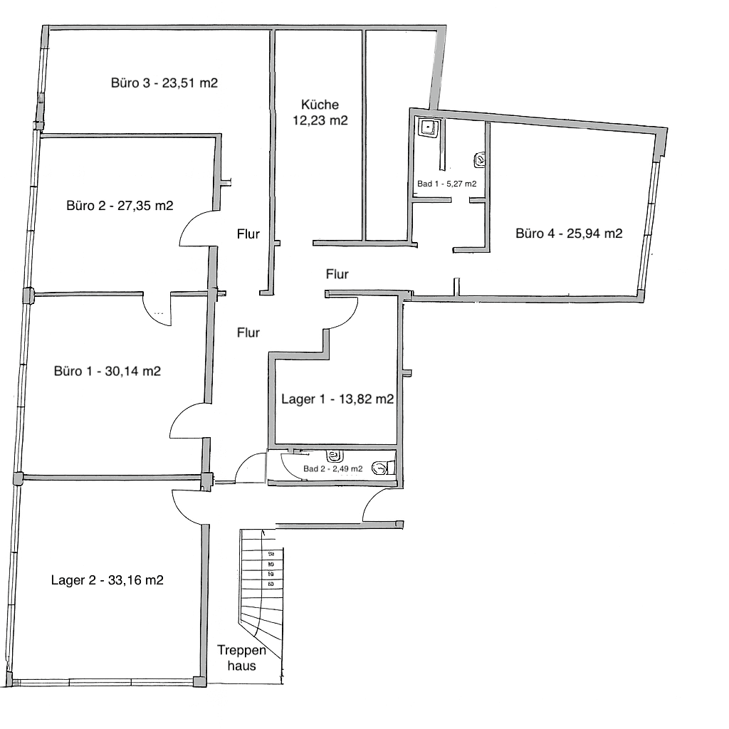
Bremen Hemelingen Bremen 28207MHD 3 minuty pěšky • ParkováníNabízená flexibilně využitelná obchodní plocha o rozloze 202 m² je ideální jako kancelářské nebo školící prostory. Jednotka se skládá ze čtyř dobře navržených kancelářských místností, několika skladových prostor, místnosti s kuchyňským připojením, koupelny se sprchou a samostatného WC pro zákazníky či hosty. Dispozice prostoru poskytuje funkční základ, který lze přizpůsobit různým koncepčním využitím. Přesný stav při předání lze individuálně stanovit ve vzájemné dohodě s novým nájemcem.
Prostor se nachází v 1. nadzemním podlaží nad momentálně prázdnou dílnou. Bývalá autoservisní dílna s využitelnou plochou přibližně 326 m² v současné době není provozována, což zajišťuje klidné prostředí. V případě potřeby může být tento prostor pronajat jako dodatečná výrobní, skladovací nebo pracovní plocha.
Další kapacity poskytují samostatně umístěné sklepy, které jsou obzvláště vhodné jako archivy nebo rozšířené skladové prostory. Na pozemku jsou k dispozici alespoň čtyři parkovací místa pro osobní automobily a/nebo garáže, částečně již vybavené elektrickými nabíjecími stanicemi.
Lokalita v městské části Bremen-Hastedt zaujme dobrou dopravní dostupností. Veřejná hromadná doprava, nádraží Sebaldsbrück, centrum Bremenu i dálnice A1 jsou rychle dosažitelné. To zajišťuje snadnou dostupnost pro zaměstnance, zákazníky a obchodní partnery a činí z této plochy praktické, funkční a dobře napojené místo podnikání.
Prostor se nachází v žádané městské části Bremen-Hastedt. Dopravní spojení je vynikající: v bezprostřední blízkosti projíždějí tramvajové linky 2 a 10 a autobusová linka 25. Modernizované nádraží Sebaldsbrück se nachází přibližně 200 metrů daleko a zajišťuje rychlou a pohodlnou dostupnost ze všech směrů. Díky ulici Stresemannstraße a přípojce Hemelingen k dálnici A1 existuje také přímé spojení, takže i regionální cíle jsou bez problémů dosažitelné.
Okolí nabízí živou kombinaci bydlení, obchodu a služeb. Nakupovací možnosti, gastronomie a supermarket se nacházejí v blízkosti. Pro přestávky či relaxaci po práci lákají Weserwehr a Pauliner Marsch na procházky nebo sportovní aktivity. Lokalita ideálně spojuje pracovní prostředí, urbanitu a odpočinek.
Nabízené prostory jsou vybaveny moderním technickým standardem a poskytují ideální podmínky pro všestranné využití jako kancelářské nebo školící prostory.
Celková plocha cca 202 m²
4 kancelářské místnosti
1–2 skladové místnosti. V případě potřeby jsou k dispozici další sklepy
Koupelna se sprchou a samostatné WC pro hosty/zákazníky
Moderní IT infrastruktura
Alespoň 4 garáže a/nebo parkovací místa pro osobní automobily, částečně s elektrickou nabíječkou
Detailní dispozici prostor naleznete v přiloženém půdorysu. Úpravy podle individuálních stavebních požadavků a stavu při předání (například instalace kuchyňky) jsou samozřejmé po vzájemné dohodě.
Parametry nemovitosti
| Stáří | Nad 50 let |
|---|---|
| Číslo inzerátu | 972569 |
| Cena za jednotku | 6 € / m2 |
| Podlaží | 1. podlaží |
|---|---|
| Plocha kanceláře | 202 m² |
Co tato nemovitost nabízí?
| MHD 3 minuty pěšky |
| Parkování |
V okolí nemovitosti najdete
Stále hledáte to pravé?
Nastavte si hlídacího psa. Nabídky vybrané na míru dostanete souhrnně 1× denně e-mailem. S Premium profilem máte k ruce hlídačů rovnou 5 a když se něco objeví, informují vás obratem.












